Gemütliches Appartement mit Ostseeblick in Holm

Osterwisch - 24217 - Holm

Objekt Nr.: 540-145801-111571
Gemütliches barrierearmes Appartement mit Balkon und Ostseeblick in Holm, nahe Strand und Marktplatz.
  • Badezimmer 1
  • Wohnfläche 30 m²
  • Haustiere Nicht erlaubt
  • Kurzurlaub möglich Nein
  • Internet Ja
  • Satelliten-/Kabel TV Ja
  • Nichtraucher Ja

Beschreibung

Ferienwohnung/App. für 2 Gäste mit 30m² in Holm (145801) (2. Stock)

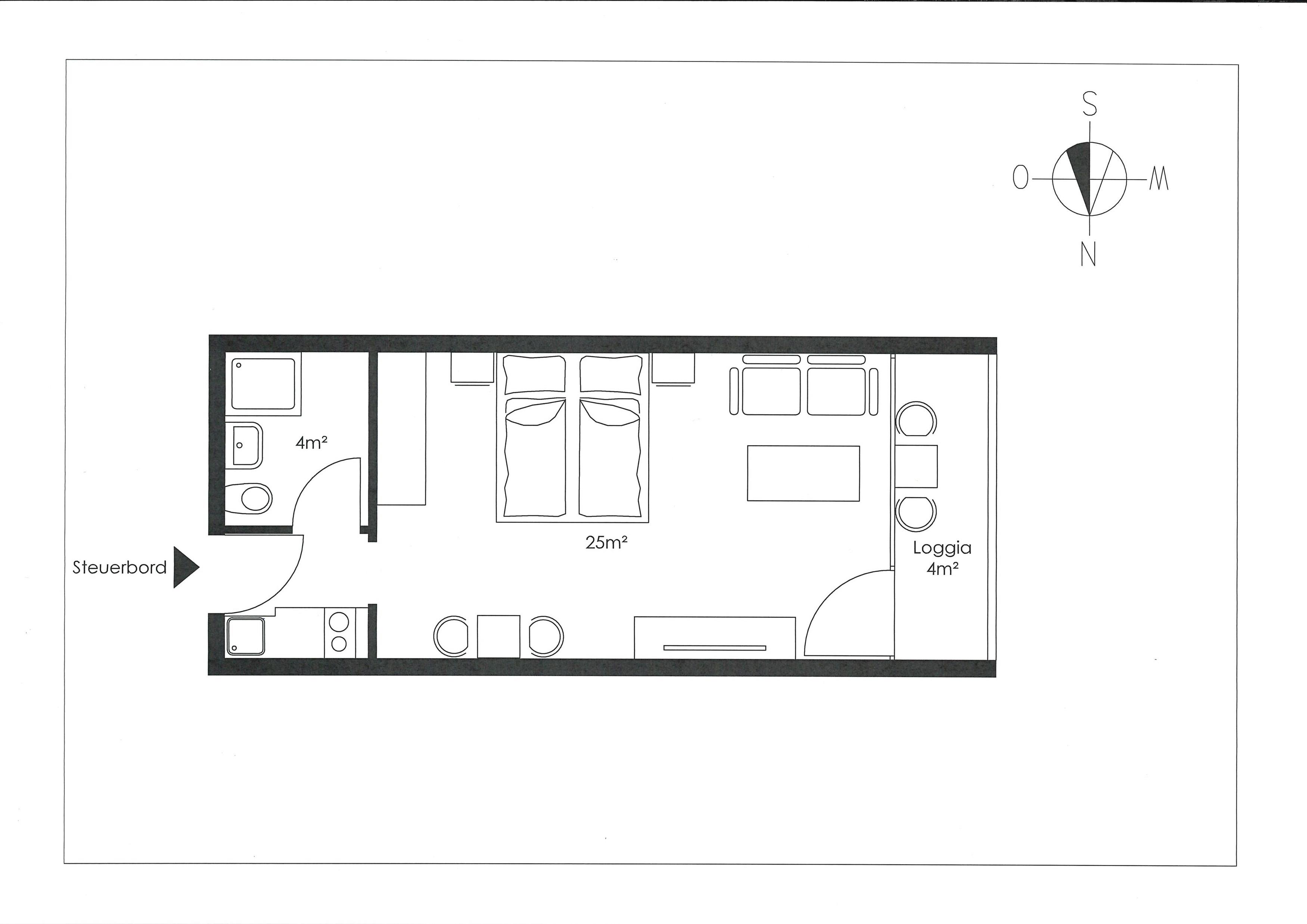
Unser 30 m² großes Appartement "Steuerbord" ist barrierearm mit dem Aufzug oder über das Treppenhaus zu erreichen. Es bietet einen gemütlichen Wohn und Schlafbereich, der mit einem Sofa, TV und einem bequemen Bett sowie einem kleinen Essbereich ausgestattet ist und bei schlechtem Wetter zum Verweilen einlädt. WLAN ist hier selbstverständlich ebenfalls verfügbar. Ebenso gibt es einen Balkon mit herrlichem Blick über die Probstei, auf dem Sie die angenehme Brise der nur 700 Meter entfernten Ostsee genießen können. Eine Pantryküche bietet die Möglichkeit, sich selbst zu versorgen und das Badezimmer mit Dusche und WC rundet die Einrichtung ab. Im Flur direkt gegenüber liegt unser zweites Appartement "Backbord", das ebenfalls buchbar ist.

Lediglich etwa 50 Meter von der Wohnung entfernt befindet sich der Holmer Marktplatz. In den Sommermonaten hat ein Bäcker und ein Bistro, sowie weitere kleine Läden geöffnet und unterschiedlichste Veranstaltungen für klein und groß, wie zum Beispiel Feste und Flohmärkte sorgen für Abwechslung. Angeschlossen an das Appartementhaus "Kiel", in dem sich unser Appartement befindet, sind eine Adventure-Minigolfanlage unter Palmen und ein griechisches Restaurant. Hotelflair entsteht in der großzügigen Lobby des Gebäudes, in der es zahlreiche bequeme Sitzgruppen gibt und ein kleiner Infopunkt Sie innerhalb der Saison mit Informationen und Highlights der Umgebung versorgt. Durch einen Nebeneingang erreichen Sie einen Gemeinschaftsraum, in dem Ihnen Waschmaschinen und Trockner gegen Entgelt zur Verfügung stehen. Kostenlose Parkmöglichkeiten finden Sie direkt vor dem Haus und auch Ihre Fahrräder können direkt neben dem Eingang an den dafür vorgesehenen Ständern abgeschlossen werden. In unmittelbarer Nähe steht die Ostseeklinik, die sowohl regional als auch überregional einen sehr guten Ruf in Sachen Rehabilitation genießt. Sie können vom örtlichen Angebot der Klinik profitieren und Kuranwendungen buchen, an ambulanten Therapien teilnehmen oder einfach in der Nähe sein, wenn einer Ihrer Liebsten dort verweilt. Für Strandliebhaber bieten sich in einigen Hundert Metern Entfernung zahlreiche wunderschöne Abschnitte an, die mit ihrem feinen, weißen Sand vergessen lassen, dass man sich noch in Deutschland befindet. Einkaufsmöglichkeiten bietet Ihnen während der Saison ein kleiner Supermarkt im Ortsteil Kalifornien. Vielfältigere Einkaufsmöglichkeiten sind im etwa 4 km entfernten Schönberg erreichbar. Hier laden ebenso ein wöchentlich stattfindender Markt sowie kleinere Geschäfte zum Schlendern, Bummeln und Schlemmen ein. Für Besitzer der Ostseecard ist Schönberg während der kurabgabepflichtigen Zeit flexibel und kostenlos mit dem Bus erreichbar. Wer noch weiter auf Erkundung gehen möchte, kann direkt vor dem Haus in den Bus steigen, der regelmäßig in das Ostseebad Laboe mit seinem einzigartigen Marineehrenmal fährt, von dessen Spitze man einen atemberaubenden Blick über die Kieler Bucht hat. Dieselbe Buslinie fährt auch in die Landeshauptstadt Kiel, in der es vieles zu entdecken gibt. Unser Appartement bietet Ihnen einen idealen Ausgangspunkt für alle Arten von Urlaub: ganz egal, ob Aktivität oder Entspannung, bei uns sind sie zu jeder Jahreszeit goldrichtig.

Wir freuen uns auf Ihren Besuch!
In den genannten Preisen sind die Nebenkosten (Strom, Wasser, Heizung) inbegriffen.

Ein Wäschepaket kann pro Person und Aufenthalt zum ausgewiesenen Preis dazu gebucht werden. Alternativ können Sie lediglich die Bettwäsche mieten. Bitte bringen Sie Laken und Handtücher für den Strand selbst mit.

Unsere Gästebewertungen Externe Bewertungen

Keine eigene Gästebewertungen
4,4
2 externe Bewertungen
4,4
Juni 2025
Einrichtungen:
4
Lage:
5
Preis-Leistung:
5
Reinigung:
3
Service vor Ort:
5
4,4
April 2025
Einrichtungen:
4
Lage:
5
Preis-Leistung:
4
Reinigung:
4
Service vor Ort:
5
Allgemein:
Für mich war die Unterkunft okay.

Ausstattung

  • Allg. Ausstattung

    • Fahrstuhl
    • Haustiere verboten
    • Nichtraucher
  • Außen

    • Balkon / Loggia
  • Außenanlage

    • Garten- u. Terrassenmöbel
    • Öffentl. Parkraum
  • Badezimmer

    • Dusche
  • Basic

    • Größe
      30 m²
    • Wohnzimmer/Schlafzimmer
      1
  • Entfernung

    • Bahnhof Kiel
      26 km
    • Freilichtmuseum Molfsee
      31 km
    • Insel Fehmarn
      77 km
    • Kiel-Innenstadt (Shopping)
      26 km
    • Kinderabenteuerland Wendtorf
      10 km
    • Marine-Ehrenmal Laboe
      15 km
    • Nord-Ostsee-Kanal (Holtenau)
      35 km
    • Schwimmbad Preetz
      26 km
    • Technisches Museum U 995 Laboe
      15 km
    • Tierpark Gettorf
      46 km
  • Küche

    • Kaffeemaschine
    • Küchenzeile/-block
    • Kühlschrank
    • Mikrowelle
    • Toaster
    • Wasserkocher
  • Küchenausstattung

    • 2-Platten-Herd
  • Service

    • Bettwäsche mietbar
    • Geschirrtücher inkl.
    • Handtücher mietbar
  • Sonstiges

    • Strandentfernung bis 1.000 m
  • Verpflegung und Einkauf

    • Einkauf bis 1.000 m
  • Wohn-/Schlafbereich

    • DVD- bzw. Bluray-Player
    • Föhn
    • Internet/WLAN
    • Matratzen-Breite = 90 cm
    • Stereoanlage mit CD
    • TV mit Flatscreen
  • Wohnen & Schlafen

    • Doppelbetten

Prices and calendar

Kalender

Ankunft
Vorheriger Monat
  • Dezember 2025
    MoDiMiDoFrSaSo
    491234567
    50891011121314
    5115161718192021
    5222232425262728
    1293031
    2
  • Januar 2026
    MoDiMiDoFrSaSo
    11234
    2567891011
    312131415161718
    419202122232425
    5262728293031
    6
   Verfügbarkeit am ausgewählten Datum prüfen
Frei
Nicht frei
   Ankunft möglich
Dauer

Preis

Zeitraum
Ankunft
Abreise
Dauer
2 Übernachtungen
Personen
Bis zu 2 Personen

Bitte beachten

Ankunftszeit wurde nicht ausgewählt.
Vertrags- und Mietbedingungen