Gemütliche Ferienwohnung mit Terrasse nahe dem Meer

Am Kampland - 23747 - Dahme

Objekt Nr.: 540-170129-135301
Gemütliche Ferienwohnung in Dahme mit Terrasse und nur 150 m zum Meer, ideal für erholsame Tage zu zweit.
  • Badezimmer 1
  • Wohnfläche 30 m²
  • Haustiere Nicht erlaubt
  • Kurzurlaub möglich Nein
  • Entfernung Wasser 150 m
  • Einkaufen 650 m
  • Internet Ja
  • Satelliten-/Kabel TV Ja
  • Geschirrspüler Ja
  • Nichtraucher Ja

Beschreibung

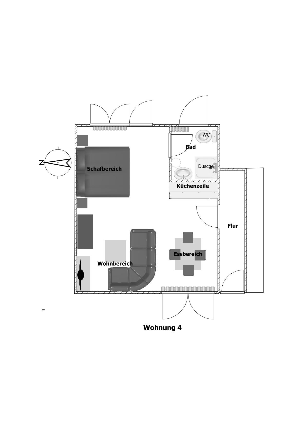
Ferienwohnung/App. für 2 Gäste mit 30m² in Dahme (170129) (Erdgeschoss)

Haus Wildfang Wohnung 4 -
Entfernung zum Meer ca. 150 m. Die Einzimmerwohnung liegt im Erdgeschoss mit eigener Terrasse und beinhaltet:

Doppelbett, ein bequemes Ecksofa und 81 cm Flachbildfernseher (DVBT), Küchezeile mit Esstisch, 2-Plattenherd, Minibackofen, Kühlschrank, Kaffemaschine, Wasserkocher, Toaster, Duschbad, Terrasse nach Südost mit Morgen- und Mittagssonne, Gartenmöbel.
Ebenfalls kostenlos stehen Ihnen bei uns Fahrräder und Bollerwagen zur Verfügung (im Arrangement mit den anderen Hausgästen)
Im Garten können sie den Grill und Grillplatz in Abstimmung mit unseren anderen Hausgästen nutzen.

Raumaufteilung

  • Wohn-/Schlafzimmer, 2 Personen
    • Doppelbett - Size: 151-180 cm

Unsere Gästebewertungen Externe Bewertungen

Keine eigene Gästebewertungen
4,8
7 externe Bewertungen
5,0
Oktober 2025
Einrichtungen:
5
Lage:
5
Preis-Leistung:
5
Reinigung:
5
Service vor Ort:
5
5,0
September 2025
Einrichtungen:
5
Lage:
5
Preis-Leistung:
5
Reinigung:
5
Service vor Ort:
5
5,0
Mai 2025
Einrichtungen:
5
Lage:
5
Preis-Leistung:
5
Reinigung:
5
Service vor Ort:
5
4,2
November 2024
Einrichtungen:
3
Lage:
4
Preis-Leistung:
4
Reinigung:
5
Service vor Ort:
5
Allgemein:
Der Spiegel im Bad hing leider viiiiel zu hoch,das war nicht so schön....
5,0
September 2024
Einrichtungen:
5
Lage:
5
Preis-Leistung:
5
Reinigung:
5
Service vor Ort:
5
Allgemein:
Wir waren schon zum 4ten Mal als Gast in dieser FeWo und hatten nichts negatives feststellen können. Wir waren rundum zufrieden. Es passte einfach alles. Besonders zu erwähnen ist die ruhige Lage und die Nähe zum Strand. Auch für unsere mitgebrachten Räder war eine Unterstellmöglichkeit vorhanden. Für das kommende Jahr haben wir auch schon wieder gebucht.
4,4
Juli 2024
Einrichtungen:
5
Lage:
4
Preis-Leistung:
5
Reinigung:
4
Service vor Ort:
4
5,0
Juni 2024
Einrichtungen:
5
Lage:
5
Preis-Leistung:
5
Reinigung:
5
Service vor Ort:
5

Gesamte Ausstattung

  • Allg. Ausstattung

    • Bollerwagen
    • Haustiere verboten
    • Internet
  • Allgemein

    • Nichtraucher
    • Raucher
    • Staubsauger
    • WLAN
    • Wäscheständer
  • Allgemeine Ausstattung

    • Allergikerfreundlich
    • Außenjalousie
    • Dusche ebenerdig/begehbar
    • Ecksofa
    • Fahrradschuppen
    • Wohn/Schlafzimmer
  • Außen

    • Garten/Liegewiese
    • Grill
    • Grillplatz
  • Außenanlage

    • Gartenstühle
    • Kostenfreier PKW Stellplatz
    • Rasengrundstück
    • Sonnenschirm
    • Terrasse
  • Badezimmer

    • Haartrockner
  • Basic

    • Größe
      30 m²
    • Wohnzimmer/Schlafzimmer
      1
  • Entfernung

    • Apotheke
      4,5 km
    • Arzt
      300 m
    • Autobahn
      15 km
    • Bar
      650 m
    • Bäcker
      550 m
    • Einkaufen
      650 m
    • Hafen
      15 km
    • Restaurant
      650 m
    • Schwimmbad
      15 km
    • Stadt
      20 km
    • Strand
      150 m
  • Küche

    • Geschirrspüler
    • Herd
    • Kaffeemaschine
    • Kühlschrank
    • Toaster
    • Wasserkocher
  • Küchenausstattung

    • Gefrierfach
    • Minibackofen
  • Service

    • Kinderhochstuhl
  • Service inklusive

    • FAHRRAD
  • Technik und weitere Ausstattung

    • LCD-Fernseher
    • Radio über TV
    • SAT TV
  • Wohnen & Schlafen

    • Doppelbett

Prices and calendar

Kalender

Ankunft
Nächster Monat
  • April 2026
    MoDiMiDoFrSaSo
    1412345
    156789101112
    1613141516171819
    1720212223242526
    1827282930
    19
  • Mai 2026
    MoDiMiDoFrSaSo
    18123
    1945678910
    2011121314151617
    2118192021222324
    2225262728293031
    23
   Verfügbarkeit am ausgewählten Datum prüfen
Frei
Nicht frei
   Ankunft möglich
Dauer

Preis

Zeitraum
Ankunft
Abreise
Dauer
1 Woche
Personen
Bis zu 2 Personen

Bitte beachten

Ankunftszeit wurde nicht ausgewählt.
Vertrags- und Mietbedingungen