Luxuriöses Wellness-Landhaus nahe Ostsee-Strand
- Dassow - 23942
Objekt Nr.: 305-DE2499.603.1
8 Personen
Exklusives Wellness-Landhaus mit Sauna, Whirlpools und direkter Strandnähe an der Ostsee.
-
Schlafzimmer 4
-
Badezimmer 4
-
Wohnfläche 150 m²
-
Haustiere Nicht erlaubt
-
Kurzurlaub möglich Ja
-
Entfernung Wasser 800 m
- Whirlpool Ja
-
Sauna Ja
-
Internet Ja
-
Kaminofen Ja
- Gute Angelmöglichkeiten Ja
-
Eingezäunter Bereich Ja
-
Waschmaschine Ja
-
Trockner Ja
-
Geschirrspüler Ja
-
Nichtraucher Ja
Beschreibung
Wellness-Landhaus***** Luxus, Sauna, 2xWhirlpools, Dampfbad, Kamin, Boxspringb., Bäder en suite, WLAN Das Landhaus 4 Jahreszeiten liegt in Groß Schwansee auf einem 1.000m² großen Traumgrundstück inmitten von bunten Blumenwiesen und goldgelben Raps- und Getreidefeldern. Die Ostsee liegt in Sichtweite und der Strand ist nur wenige Gehminuten entfernt. Groß Schwansee liegt an der Ostsee zwischen Travemünde (10km) und Boltenhagen (15km), inmitten der unberührten Mecklenburger Landschaft mit herrlichem Natursandstrand, Wiesen und Feldern.
Das Landhaus 4 Jahreszeiten ist bestens eingerichtet für Ihre Erholung! Das ruhig gelegene, moderne Fachwerkhaus wurde 2017 erbaut, hochwertig eingerichtet und mit viel Liebe zum Detail und Charme dekoriert. Der Fokus liegt darauf, Ihren Urlaub so komfortabel und angenehm wie möglich zu gestalten. Es soll Ihnen in dieser schönen Zeit an nichts fehlen. Der Deutsche Tourismus Verband hat unser Landhaus 2023 erneut für 8 Personen mit sehr gutem Ergebnis klassifiziert und mit 5 Sternen ausgezeichnet!!! Gruppen mit bis zu 16 Personen finden hier und in unserem zweiten baugleichen Landhaus auf demselben Grundstück Platz. Im Prüfbericht bescheinigt uns der DTV: "Ein sehr exklusives Haus mit viel Liebe zum Detail, super Einrichtung, eigener Wellnessbereich, hochwertig eingerichtet - einfach toll. Schöne Außenanlage mit Außenpool, Lounge-Möbeln und Spielplatz."
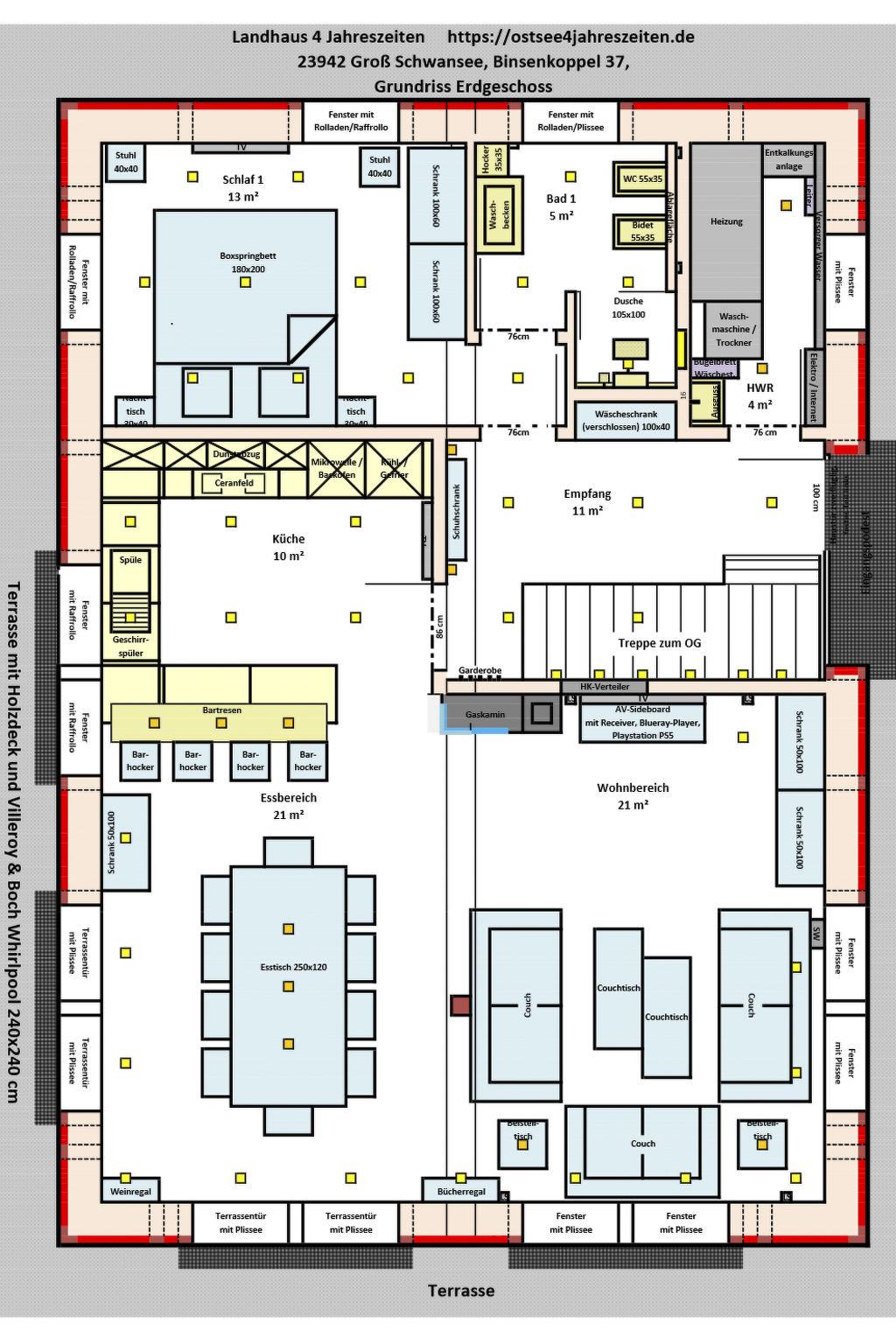
Auf insgesamt 150 m², die sich über zwei Etagen erstrecken, haben Sie die Möglichkeit mit bis zu 8 Erwachsenen und 2 Kleinkindern zu wohnen. Es gibt insgesamt 8 Betten in vier Schlafzimmern, eins im Erd- und drei im Obergeschoss. Drei Schlafzimmer haben direkt angrenzende „En-Suite-Badezimmer“. Zwei der Schlafzimmer, jeweils eins im OG und eins im EG, sind mit luxuriösen Boxspringbetten (180 cm x 200 cm) ausgestattet. Im dritten Schlafzimmer schlafen Sie auf einem komfortablen Doppelbett (180 cm x 200 cm) in Echtleder mit verstellbaren Kopfteilen. Das vierte, kleine Schlafzimmer besitzt zwei bequeme Einzelbetten (90 cm x 200 cm). Hier fühlen sich besonders Kinder und Jugendliche wohl. Das Aufstellen von Kinderbetten ist in den Schlafzimmern 1-3 möglich. Alle Schlafzimmer sind geschmackvoll dekoriert und mit geräumigen Kleiderschränken, Nachttischen mit Leselampen, Safes, Außenjalousien und SMART-TVs ausgestattet. Bei bis zu 4 Personen stehen Ihnen 2 Schlafräume zur Verfügung, bis zu 6 Personen 3 Schlafräume und bis zu 8 Personen 4 Schlafräume. Einzelbelegung ist mit Aufpreis möglich. Sollten 9 oder 10 Personen >3 Jahre untergebracht werden müssen, können wir bis zu 2 Gästebetten im Wohnraum oder Wellnessbereich aufstellen.
Die 3 modernen En-suite-Badezimmer verwöhnen mit ebenerdigen und stufenlosen Duschbereichen mit Rainduschen, eleganten Glaswänden und beleuchteten Ablagefächern. Die V&B-Waschtische mit Unterschränken sowie weitere Ablagen bieten Ihnen viel Platz für Ihre Bad- und Kosmetikaccesoires. In zwei Bädern befindet sich ein Bidet. Exklusive beleuchtete Badspiegel, Kosmetikspiegel und Bluetooth-Radios sind hier weitere Highlights.
Der Wohn- und Essbereich bietet mit seinen 50 m² genügend Platz für die ganze Familie oder größere Gruppen. An dem großen Eichen-Esstisch mit bequemen Armlehnstühlen und Platz für 8-10 Personen sowie im gemütlichen Wohnbereich, ausgestattet mit hochwertigen Sofas mit 8 Sitzplätzen, lassen sich entspannte Stunden verbringen. Für die perfekte Wohlfühl-Atmosphäre sorgt die Fußbodenheizung und der Gas-Kamin, der optional buchbar ist. Eine hochwertige Samsung/Marantz/Elac-Heimkino-Anlage mit 55"-SMART-TV, Blu-Ray-Player und High-End-Receiver stehen Ihnen hier zur Verfügung. Im TV ist Netflix-Streaming installiert. Ebenfalls können Sie eine Playstation PS 4 sowie unser DVD- und CD-Sortiment nutzen. Eine Spielesammlung und eine Urlaubsbibliothek mit Auswahl für Groß und Klein stehen auch bereit. Wir bieten Ihnen hier weiterhin ein Weindepot mit erlesenen internationalen Weinen zu moderaten Preisen.
Die offene moderne Küche mit Bartresen ist komplett und sehr hochwertig ausgestattet. Hier finden Sie alles, um Ihren Aufenthalt so angenehm wie möglich zu gestalten: eine Kühl- Gefrierkombination, Cerankochfeld mit Dunstabzugshaube, Geschirrspülmaschine und Backofen. Für Ihren Kaffeegenuss wählen Sie zwischen einem SAECO-Kaffeevollautomaten mit integriertem Milchbehälter für 6 Kaffeespezialitäten und einer Filterkaffeemaschine. An Elektrogeräten stehen Toaster, Eierkocher, Wasserkocher, Küchenmaschine und ein Mixer zur Nutzung bereit. Ein großes Pfannen- und Topfsortiment mit vielen Küchenutensilien ermöglichen Ihnen perfektes und angenehmes Kochen. Auch hier sorgt ein großer SMART-TV für Unterhaltung. Elegantes V&B-Geschirr, Silberbesteck und ein hochwertiges Gläser-Sortiment sorgen für den perfekt gedeckten Tisch.
Ein absolutes Highlight des Hauses ist der eigene 25 m² große Indoor-Wellnessbereich im Obergeschoss mit tollem Weitblick über Wiesen und Felder. Genießen Sie die Ruhe in der großen Sauna mit Glasfront für sechs Personen, dem Klima-Dampfbad und einem Innen-Whirlpool 190 cm x 120 cm für 2 Personen. Nach dem wohltuenden Saunagang können Sie sich unter der Regendusche sowie mit dem Kneippschlauch abkühlen, um sich danach in den zwei Kneipp-Fußbadebecken oder in den Liegestühlen vor dem großen SMART-TV zu entspannen. Zur sportlichen Betätigung nutzen Sie gerne unsere Fitnessgeräte: einen Crosstrainer, eine Sit-up-Bank, Hanteln und eine Gymnastikmatte. ACHTUNG: der Indoor-Wellnessbereich muss zusätzlich gebucht werden. Es können leider keine Einzelleistungen gebucht werden. Die Buchung kann nur für den gesamten Reisezeitraum erfolgen.
Im Haus gibt es eine eigene Telefonanlage, mit der Sie kostenfrei in alle deutschen Netze telefonieren können. Im Hauswirtschaftsraum stehen Ihnen eine Waschmaschine und ein Trockner kostenlos zur Verfügung.
Vom Wohn- und Essbereich gelangen Sie direkt in den wunderschönen Garten, der Ihnen mit insgesamt drei möblierten Terrassen mit Pool-, Lounge- und Essbereich viel Raum für Entspannung und Erholung bietet.
Unser Highlight Nr. 1 im Garten: Relaxen Sie im sprudelnden V&B Outdoor-Whirlpool (2,40 cm x 2,40 cm) für insgesamt fünf Personen bei ganzjährig 37,5° ACHTUNG: der Outdoor-Whirlpool muss zusätzlich gebucht werden. Die Buchung kann nur für den gesamten Reisezeitraum erfolgen.
Unser Highlight Nr. 2 im Garten, gleich neben dem Loungebereich, ist der neue Strandkorb "Sylt" von den Strandkorb-Profis aus Buxtehude. Unser Strandkorb garantiert Entspannung und Erholung pur! Ein großer Weber-Holzkohlegrill, Liegen, Liegestühle und Sonnenschirme machen den Urlaub perfekt.
Für die Kleinsten ist ein Kinder-Spielbereich mit genügend Platz zum Toben eingerichtet. Sandkiste, Klettergerüst, Spielhaus und ein Picknick-Tisch sorgen hier für viel Spaß und Freude. In einem separaten Gartenhaus befindet sich der Fahrrad-Abstellplatz. Vier Leih-Fahrräder und ein Bollerwagen können kostenfrei genutzt werden.
Es stehen drei PKW-Stellplätze zur Verfügung. Für E-Autos können Sie unsere 11kW-Wallbox nutzen. Abrechnng nach Verbrauch.
Das Haus ist ganz neu - erst ab 2017 genießen unsere Gäste hier ihren Traumurlaub. Freuen Sie sich auf ein großzügiges, gemütliches Ferienhaus, das Ihnen den gewissen Luxus bietet, den man sich für einen optimalen Urlaub wünscht. Der DTV hat unser Landhaus offiziell klassifiziert und mit 5 Sternen ausgezeichnet!!! Und wenn Sie mit bis zu 16 Personen kommen wollen, können Sie unser zweites baugleiches Landhaus auf demselben Grundstück dazu buchen.
Für unsere Gäste haben wir 20 Wander- und Fahrradtouren von 2km bis 100km mit Start und Ziel direkt bei unserem Landhaus ausgearbeitet. Die kostenlose komoot-Navigation bringt Sie durch die wunderschöne Landschaft sicher hin und zurück.
Die Umgebung ist geprägt durch Wiesen und Felder und die Ruhe der Mecklenburger Naturlandschaft. Echtes Highlight in der Nachbarschaft: das Schlossgut Groß Schwansee mit Restaurant und Brasserie sowie Schlosspark mit wunderschöner Allee direkt zum Strand. Auf dem Ostseeradwanderweg entlang der Küste radelt man mit bester Aussicht durch endlose goldgelbe Raps- und Getreidefelder. So ist man schnell mit dem Fahrrad in Boltenhagen oder in Travemünde, von wo Sie der Radweg weiter über Timmendorfer Strand nach Neustadt führt. Großstädtisches Flair genießen Sie in den 4 Hansestädten Lübeck, Wismar (je 35km) bzw. Rostock und Hamburg (je 100km).
Basisinformationen
- Erlaubte Haustiere: keins
- Art d. Gebäudes: Einfamilienhaus
- Gesamtanzahl d. Stockwerke im Gebäude über EG: 1
- Grundstücksfläche: 1000 m²
- Baujahr: 2017
- freistehend
- keine Einsicht von der Straße
- keine Jugendgruppen
- Nichtraucherunterkunft
- Schlafzimmeranzahl: 4
- Badezimmeranzahl: 4
- DTV ID: 257415
Top Merkmale
- WLAN
- Heizung: überall
- Fußbodenheizung: überall
- Terrasse
- Garten: zur alleinigen Nutzung
- komplett eingefriedet (mit Mauer, Zaun oder Hecke)
- Private PKW-Stellplätze insgesamt für diese Unterkunft: 3
- ? davon Garagenstellplätze: keinen
- ? davon Carport-Stellplätze: keinen
- ? davon private Außenstellplätze: 3
Schlafen
im Wohnbereich
- 2x Zustellbett
Schlafzimmer 1
- Doppelbett (1,80m Breite)
- Kinder-/Babybett
- Schlafzimmer abdunkelbar
Schlafzimmer 3
- Doppelbett (1,80m Breite)
- Kinder-/Babybett
- Schlafzimmer abdunkelbar
Schlafzimmer 5
- Doppelbett (1,80m Breite)
- Kinder-/Babybett
- Schlafzimmer abdunkelbar
Schlafzimmer 7
- 2x Einzelbett
- Schlafzimmer abdunkelbar
Badezimmer
Badezimmer 1
- Dusche
- Waschbecken
- Toilette
- Bidet
- Föhn
- Tageslicht
Badezimmer 3
- Dusche
- Waschbecken
- Toilette
- Bidet
- Föhn
- Tageslicht
Badezimmer 5
- Dusche
- Waschbecken
- Toilette
- Föhn
- Tageslicht
Badezimmer 7
- Dusche
Wellness
- Sauna
- Dampfkabine
- Whirlpool
- Outdoor Hot Tub
Kochen/Wohnen
- Kaffeemaschine: Filter-Kaffeemaschine, Kaffeemaschine
- Kühl-/Gefrierschrank: Tiefkühlschrank, Kühlschrank
- Herd: Glaskeramikkochfeld
- Dunstabzugshaube
- Backofen
- Toaster
- Mikrowelle
- Wasserkocher
- Spülmaschine
- Geschirrtücher
- Größe der Küche: 10 m²
- Anzahl Esstische: 1
- Gesamtzahl Sitzplätze: 8
- Anzahl Wohnzimmer: 1
- Kamin
Entertainment
- Fernseher: Sat.-TV
- DVD-Player
- Spielekonsole
- Musikanlage
- Radio
- CD-Player
- Gesellschaftsspiele für Erwachsene
- Fitnessgeräte
Für Kinder
- Kinderstuhl
- Kinderspielzeug
- Gesellschaftsspiele für Kinder
Hauswirtschaft
- Waschmaschine: zur alleinigen Nutzung im Objekt
- Wäschetrockner: zur alleinigen Nutzung im Objekt
- Bügeleisen
- Staubsauger
- Safe
Nachhaltigkeit
- Abfallrecycling
- Bioabfall verfügbar
- Wassersparende Geräte
- Aufladestation für Elektro-Autos
- Fahrrad kostenlos
- Erneuerbare Energien
- Solarenergie
- Hausisolierung
Außenbereich
- Grill: Holzkohlegrill
- Außendusche
Umgebung
- Aussicht: Garten, Wald, Wiese
- nächstgelegene Ortsmitte: 200 m
- Lebensmittelhandel: 3,0 km
- Bars/Clubs/Ausgehen: 300 m
- Cafés/Restaurants: 300 m
- Bahnhof: 12,0 km
- Flughafen: 100,0 km
- Autobahn: 20,0 km
- Hafen: 10,0 km
- nächste Haltestelle ÖPNV: 300 m
- Strand: 800 m
- Hundestrand: 1,0 km
- Grasstrand: 800 m
- Sandstrand: 800 m
- Wasser (Meer, See etc.): 800 m
- Meer: 800 m
- Wassersport: 15,0 km
- Anlegeplatz: 10,0 km
- Bootsverleih
- Angelplatz: 800 m
- Spielplatz: 300 m
- Öffentliches Schwimmbad: 16,0 km
- Golfplatz: 12,0 km
- Fahrrad-Verleih: 8,0 km
- Wanderweg: 800 m
- Reitmöglichkeit: 10,0 km
Besonderheiten
- Fachwerkhaus
Art d. Gebäudes: Einfamilienhaus. Grundstücksfläche: 1000m². Baujahr: 2017. keine Jugendgruppen.
Das Landhaus 4 Jahreszeiten ist bestens eingerichtet für Ihre Erholung! Das ruhig gelegene, moderne Fachwerkhaus wurde 2017 erbaut, hochwertig eingerichtet und mit viel Liebe zum Detail und Charme dekoriert. Der Fokus liegt darauf, Ihren Urlaub so komfortabel und angenehm wie möglich zu gestalten. Es soll Ihnen in dieser schönen Zeit an nichts fehlen. Der Deutsche Tourismus Verband hat unser Landhaus 2023 erneut für 8 Personen mit sehr gutem Ergebnis klassifiziert und mit 5 Sternen ausgezeichnet!!! Gruppen mit bis zu 16 Personen finden hier und in unserem zweiten baugleichen Landhaus auf demselben Grundstück Platz. Im Prüfbericht bescheinigt uns der DTV: "Ein sehr exklusives Haus mit viel Liebe zum Detail, super Einrichtung, eigener Wellnessbereich, hochwertig eingerichtet - einfach toll. Schöne Außenanlage mit Außenpool, Lounge-Möbeln und Spielplatz."
Auf insgesamt 150 m², die sich über zwei Etagen erstrecken, haben Sie die Möglichkeit mit bis zu 8 Erwachsenen und 2 Kleinkindern zu wohnen. Es gibt insgesamt 8 Betten in vier Schlafzimmern, eins im Erd- und drei im Obergeschoss. Drei Schlafzimmer haben direkt angrenzende „En-Suite-Badezimmer“. Zwei der Schlafzimmer, jeweils eins im OG und eins im EG, sind mit luxuriösen Boxspringbetten (180 cm x 200 cm) ausgestattet. Im dritten Schlafzimmer schlafen Sie auf einem komfortablen Doppelbett (180 cm x 200 cm) in Echtleder mit verstellbaren Kopfteilen. Das vierte, kleine Schlafzimmer besitzt zwei bequeme Einzelbetten (90 cm x 200 cm). Hier fühlen sich besonders Kinder und Jugendliche wohl. Das Aufstellen von Kinderbetten ist in den Schlafzimmern 1-3 möglich. Alle Schlafzimmer sind geschmackvoll dekoriert und mit geräumigen Kleiderschränken, Nachttischen mit Leselampen, Safes, Außenjalousien und SMART-TVs ausgestattet. Bei bis zu 4 Personen stehen Ihnen 2 Schlafräume zur Verfügung, bis zu 6 Personen 3 Schlafräume und bis zu 8 Personen 4 Schlafräume. Einzelbelegung ist mit Aufpreis möglich. Sollten 9 oder 10 Personen >3 Jahre untergebracht werden müssen, können wir bis zu 2 Gästebetten im Wohnraum oder Wellnessbereich aufstellen.
Die 3 modernen En-suite-Badezimmer verwöhnen mit ebenerdigen und stufenlosen Duschbereichen mit Rainduschen, eleganten Glaswänden und beleuchteten Ablagefächern. Die V&B-Waschtische mit Unterschränken sowie weitere Ablagen bieten Ihnen viel Platz für Ihre Bad- und Kosmetikaccesoires. In zwei Bädern befindet sich ein Bidet. Exklusive beleuchtete Badspiegel, Kosmetikspiegel und Bluetooth-Radios sind hier weitere Highlights.
Der Wohn- und Essbereich bietet mit seinen 50 m² genügend Platz für die ganze Familie oder größere Gruppen. An dem großen Eichen-Esstisch mit bequemen Armlehnstühlen und Platz für 8-10 Personen sowie im gemütlichen Wohnbereich, ausgestattet mit hochwertigen Sofas mit 8 Sitzplätzen, lassen sich entspannte Stunden verbringen. Für die perfekte Wohlfühl-Atmosphäre sorgt die Fußbodenheizung und der Gas-Kamin, der optional buchbar ist. Eine hochwertige Samsung/Marantz/Elac-Heimkino-Anlage mit 55"-SMART-TV, Blu-Ray-Player und High-End-Receiver stehen Ihnen hier zur Verfügung. Im TV ist Netflix-Streaming installiert. Ebenfalls können Sie eine Playstation PS 4 sowie unser DVD- und CD-Sortiment nutzen. Eine Spielesammlung und eine Urlaubsbibliothek mit Auswahl für Groß und Klein stehen auch bereit. Wir bieten Ihnen hier weiterhin ein Weindepot mit erlesenen internationalen Weinen zu moderaten Preisen.
Die offene moderne Küche mit Bartresen ist komplett und sehr hochwertig ausgestattet. Hier finden Sie alles, um Ihren Aufenthalt so angenehm wie möglich zu gestalten: eine Kühl- Gefrierkombination, Cerankochfeld mit Dunstabzugshaube, Geschirrspülmaschine und Backofen. Für Ihren Kaffeegenuss wählen Sie zwischen einem SAECO-Kaffeevollautomaten mit integriertem Milchbehälter für 6 Kaffeespezialitäten und einer Filterkaffeemaschine. An Elektrogeräten stehen Toaster, Eierkocher, Wasserkocher, Küchenmaschine und ein Mixer zur Nutzung bereit. Ein großes Pfannen- und Topfsortiment mit vielen Küchenutensilien ermöglichen Ihnen perfektes und angenehmes Kochen. Auch hier sorgt ein großer SMART-TV für Unterhaltung. Elegantes V&B-Geschirr, Silberbesteck und ein hochwertiges Gläser-Sortiment sorgen für den perfekt gedeckten Tisch.
Ein absolutes Highlight des Hauses ist der eigene 25 m² große Indoor-Wellnessbereich im Obergeschoss mit tollem Weitblick über Wiesen und Felder. Genießen Sie die Ruhe in der großen Sauna mit Glasfront für sechs Personen, dem Klima-Dampfbad und einem Innen-Whirlpool 190 cm x 120 cm für 2 Personen. Nach dem wohltuenden Saunagang können Sie sich unter der Regendusche sowie mit dem Kneippschlauch abkühlen, um sich danach in den zwei Kneipp-Fußbadebecken oder in den Liegestühlen vor dem großen SMART-TV zu entspannen. Zur sportlichen Betätigung nutzen Sie gerne unsere Fitnessgeräte: einen Crosstrainer, eine Sit-up-Bank, Hanteln und eine Gymnastikmatte. ACHTUNG: der Indoor-Wellnessbereich muss zusätzlich gebucht werden. Es können leider keine Einzelleistungen gebucht werden. Die Buchung kann nur für den gesamten Reisezeitraum erfolgen.
Im Haus gibt es eine eigene Telefonanlage, mit der Sie kostenfrei in alle deutschen Netze telefonieren können. Im Hauswirtschaftsraum stehen Ihnen eine Waschmaschine und ein Trockner kostenlos zur Verfügung.
Vom Wohn- und Essbereich gelangen Sie direkt in den wunderschönen Garten, der Ihnen mit insgesamt drei möblierten Terrassen mit Pool-, Lounge- und Essbereich viel Raum für Entspannung und Erholung bietet.
Unser Highlight Nr. 1 im Garten: Relaxen Sie im sprudelnden V&B Outdoor-Whirlpool (2,40 cm x 2,40 cm) für insgesamt fünf Personen bei ganzjährig 37,5° ACHTUNG: der Outdoor-Whirlpool muss zusätzlich gebucht werden. Die Buchung kann nur für den gesamten Reisezeitraum erfolgen.
Unser Highlight Nr. 2 im Garten, gleich neben dem Loungebereich, ist der neue Strandkorb "Sylt" von den Strandkorb-Profis aus Buxtehude. Unser Strandkorb garantiert Entspannung und Erholung pur! Ein großer Weber-Holzkohlegrill, Liegen, Liegestühle und Sonnenschirme machen den Urlaub perfekt.
Für die Kleinsten ist ein Kinder-Spielbereich mit genügend Platz zum Toben eingerichtet. Sandkiste, Klettergerüst, Spielhaus und ein Picknick-Tisch sorgen hier für viel Spaß und Freude. In einem separaten Gartenhaus befindet sich der Fahrrad-Abstellplatz. Vier Leih-Fahrräder und ein Bollerwagen können kostenfrei genutzt werden.
Es stehen drei PKW-Stellplätze zur Verfügung. Für E-Autos können Sie unsere 11kW-Wallbox nutzen. Abrechnng nach Verbrauch.
Das Haus ist ganz neu - erst ab 2017 genießen unsere Gäste hier ihren Traumurlaub. Freuen Sie sich auf ein großzügiges, gemütliches Ferienhaus, das Ihnen den gewissen Luxus bietet, den man sich für einen optimalen Urlaub wünscht. Der DTV hat unser Landhaus offiziell klassifiziert und mit 5 Sternen ausgezeichnet!!! Und wenn Sie mit bis zu 16 Personen kommen wollen, können Sie unser zweites baugleiches Landhaus auf demselben Grundstück dazu buchen.
Für unsere Gäste haben wir 20 Wander- und Fahrradtouren von 2km bis 100km mit Start und Ziel direkt bei unserem Landhaus ausgearbeitet. Die kostenlose komoot-Navigation bringt Sie durch die wunderschöne Landschaft sicher hin und zurück.
Die Umgebung ist geprägt durch Wiesen und Felder und die Ruhe der Mecklenburger Naturlandschaft. Echtes Highlight in der Nachbarschaft: das Schlossgut Groß Schwansee mit Restaurant und Brasserie sowie Schlosspark mit wunderschöner Allee direkt zum Strand. Auf dem Ostseeradwanderweg entlang der Küste radelt man mit bester Aussicht durch endlose goldgelbe Raps- und Getreidefelder. So ist man schnell mit dem Fahrrad in Boltenhagen oder in Travemünde, von wo Sie der Radweg weiter über Timmendorfer Strand nach Neustadt führt. Großstädtisches Flair genießen Sie in den 4 Hansestädten Lübeck, Wismar (je 35km) bzw. Rostock und Hamburg (je 100km).
Basisinformationen
- Erlaubte Haustiere: keins
- Art d. Gebäudes: Einfamilienhaus
- Gesamtanzahl d. Stockwerke im Gebäude über EG: 1
- Grundstücksfläche: 1000 m²
- Baujahr: 2017
- freistehend
- keine Einsicht von der Straße
- keine Jugendgruppen
- Nichtraucherunterkunft
- Schlafzimmeranzahl: 4
- Badezimmeranzahl: 4
- DTV ID: 257415
Top Merkmale
- WLAN
- Heizung: überall
- Fußbodenheizung: überall
- Terrasse
- Garten: zur alleinigen Nutzung
- komplett eingefriedet (mit Mauer, Zaun oder Hecke)
- Private PKW-Stellplätze insgesamt für diese Unterkunft: 3
- ? davon Garagenstellplätze: keinen
- ? davon Carport-Stellplätze: keinen
- ? davon private Außenstellplätze: 3
Schlafen
im Wohnbereich
- 2x Zustellbett
Schlafzimmer 1
- Doppelbett (1,80m Breite)
- Kinder-/Babybett
- Schlafzimmer abdunkelbar
Schlafzimmer 3
- Doppelbett (1,80m Breite)
- Kinder-/Babybett
- Schlafzimmer abdunkelbar
Schlafzimmer 5
- Doppelbett (1,80m Breite)
- Kinder-/Babybett
- Schlafzimmer abdunkelbar
Schlafzimmer 7
- 2x Einzelbett
- Schlafzimmer abdunkelbar
Badezimmer
Badezimmer 1
- Dusche
- Waschbecken
- Toilette
- Bidet
- Föhn
- Tageslicht
Badezimmer 3
- Dusche
- Waschbecken
- Toilette
- Bidet
- Föhn
- Tageslicht
Badezimmer 5
- Dusche
- Waschbecken
- Toilette
- Föhn
- Tageslicht
Badezimmer 7
- Dusche
Wellness
- Sauna
- Dampfkabine
- Whirlpool
- Outdoor Hot Tub
Kochen/Wohnen
- Kaffeemaschine: Filter-Kaffeemaschine, Kaffeemaschine
- Kühl-/Gefrierschrank: Tiefkühlschrank, Kühlschrank
- Herd: Glaskeramikkochfeld
- Dunstabzugshaube
- Backofen
- Toaster
- Mikrowelle
- Wasserkocher
- Spülmaschine
- Geschirrtücher
- Größe der Küche: 10 m²
- Anzahl Esstische: 1
- Gesamtzahl Sitzplätze: 8
- Anzahl Wohnzimmer: 1
- Kamin
Entertainment
- Fernseher: Sat.-TV
- DVD-Player
- Spielekonsole
- Musikanlage
- Radio
- CD-Player
- Gesellschaftsspiele für Erwachsene
- Fitnessgeräte
Für Kinder
- Kinderstuhl
- Kinderspielzeug
- Gesellschaftsspiele für Kinder
Hauswirtschaft
- Waschmaschine: zur alleinigen Nutzung im Objekt
- Wäschetrockner: zur alleinigen Nutzung im Objekt
- Bügeleisen
- Staubsauger
- Safe
Nachhaltigkeit
- Abfallrecycling
- Bioabfall verfügbar
- Wassersparende Geräte
- Aufladestation für Elektro-Autos
- Fahrrad kostenlos
- Erneuerbare Energien
- Solarenergie
- Hausisolierung
Außenbereich
- Grill: Holzkohlegrill
- Außendusche
Umgebung
- Aussicht: Garten, Wald, Wiese
- nächstgelegene Ortsmitte: 200 m
- Lebensmittelhandel: 3,0 km
- Bars/Clubs/Ausgehen: 300 m
- Cafés/Restaurants: 300 m
- Bahnhof: 12,0 km
- Flughafen: 100,0 km
- Autobahn: 20,0 km
- Hafen: 10,0 km
- nächste Haltestelle ÖPNV: 300 m
- Strand: 800 m
- Hundestrand: 1,0 km
- Grasstrand: 800 m
- Sandstrand: 800 m
- Wasser (Meer, See etc.): 800 m
- Meer: 800 m
- Wassersport: 15,0 km
- Anlegeplatz: 10,0 km
- Bootsverleih
- Angelplatz: 800 m
- Spielplatz: 300 m
- Öffentliches Schwimmbad: 16,0 km
- Golfplatz: 12,0 km
- Fahrrad-Verleih: 8,0 km
- Wanderweg: 800 m
- Reitmöglichkeit: 10,0 km
Besonderheiten
- Fachwerkhaus
Art d. Gebäudes: Einfamilienhaus. Grundstücksfläche: 1000m². Baujahr: 2017. keine Jugendgruppen.
Unsere Gästebewertungen Externe Bewertungen
Gesamte Ausstattung
-
Entfernung
-
Golf12 km
-
Meer800 m
-
Wasser800 m
-
Zentrum200 m
-
Öffentlicher Verkehr300 m
-
-
Hausinfo
-
Angeln
-
Anzahl Badezimmer4
-
Anzahl der Zimmer9
-
Anzahl Schlafzimmer4
-
Backofen
-
Bettwäsche kostenlos
-
Bikingebenen
-
DSL
-
Dusche
-
DVD
-
Extrabetten1
-
Fitness
-
Freistehend
-
Garten
-
Gefrierfach
-
Golfplätze
-
Grill
-
Handtücher kostenlos
-
Heizung
-
Internet
-
ISDN
-
Kamin
-
Keine Gruppen
-
Keine Haustiere erlaubt
-
Keine Jugendgruppen
-
Kinderbetten1
-
Kühlschrank
-
Microwelle
-
Natur
-
Nichtraucher
-
Parkplatz bedeckt
-
Reiten
-
Sauna
-
Spielplatz
-
Spülmaschine
-
Terrasse
-
Umzäunt
-
Waschmaschine
-
Whirlpool
-
WLAN
-
Wohnfläche in m²150 m²
-
Wäschetrockner
-
-
Thema
-
Sonnenstrand
-
Kurzurlaub
Es besteht eine begrenzte Möglichkeit das ganze Jahr einen Kurzurlaub zu machen, typischerweise ausserhalb der Hochsaison.
Prices and calendar
Kalender
Dauer
Personen
Preis
Zeitraum
- Ankunft
- Abreise
- Dauer
- 1 Woche
Personen
Keine Personen ausgewählt
Bitte beachten
Ankunftszeit wurde nicht ausgewählt.
Es wurden keine Personen ausgewählt.