Gemütliche Dachgeschosswohnung nahe Ostseestrand
Rosengang - 24340 - Eckernförde
Objekt Nr.: 540-28865-26987
4 Personen
Gemütliche Ferienwohnung im Dachgeschoss in Eckernförde, nur 100 Meter vom Ostseestrand und der Altstadt entfernt.
-
Schlafzimmer 2
-
Badezimmer 1
-
Wohnfläche 63 m²
-
Haustiere Nicht erlaubt
-
Kurzurlaub möglich Nein
-
Entfernung Wasser 400 m
-
Internet Ja
-
Satelliten-/Kabel TV Ja
-
Waschmaschine Ja
-
Trockner Ja
-
Geschirrspüler Ja
-
Nichtraucher Ja
Beschreibung
Ferienwohnung/App. für 4 Gäste mit 63m² in Eckernförde (28865) (Dachgeschoss)
Genießt die Sonne, den weitläufigen Ostseestrand und die wunderschöne Altstadt von Eckernförde in einem unserer gemütlichen Ferienappartements, in Eurer ECKE!
Vor dem Frühstück in die Ostsee hüpfen, danach auf den Eckernförder Markt, nachmittags am Strand liegen und den Abend in einem der Restaurants am Hafen ausklingen lassen. Das Alles ist kein Problem bei dieser Lage! Unsere top renovierten und modern ausgestatteten Ferienappartements liegen mitten in der wunderschönen Altstadt von Eckernförde. In nur 100 Schritten seid Ihr am Strand, am Hafen oder in der Einkaufsstraße von Eckernförde. Hier könnt Ihr die schnuckeligen Geschäfte, Restaurants und Cafés in unmittelbarer Nähe von morgens bis abends genießen.
Damit für Euch der Urlaub gleich beginnen kann und ihr den Aufenthalt bei uns so richtig genießen könnt, sind viele Dinge für Euch inklusive. So erwarten Euch frisch bezogene Betten, Handtücher und Strandlaken. Außerdem liegen für Euch Dinge des täglichen Bedarfs bereit (bspw. Seife, Haushaltsrolle, Geschirrspülertabs, Waschmittel, Toilettenpapier, Kerzen, Küchenkräuter, Pfeffer, Öl, etc.) und auch der morgendliche Nespresso oder Tee gehört mit dazu.
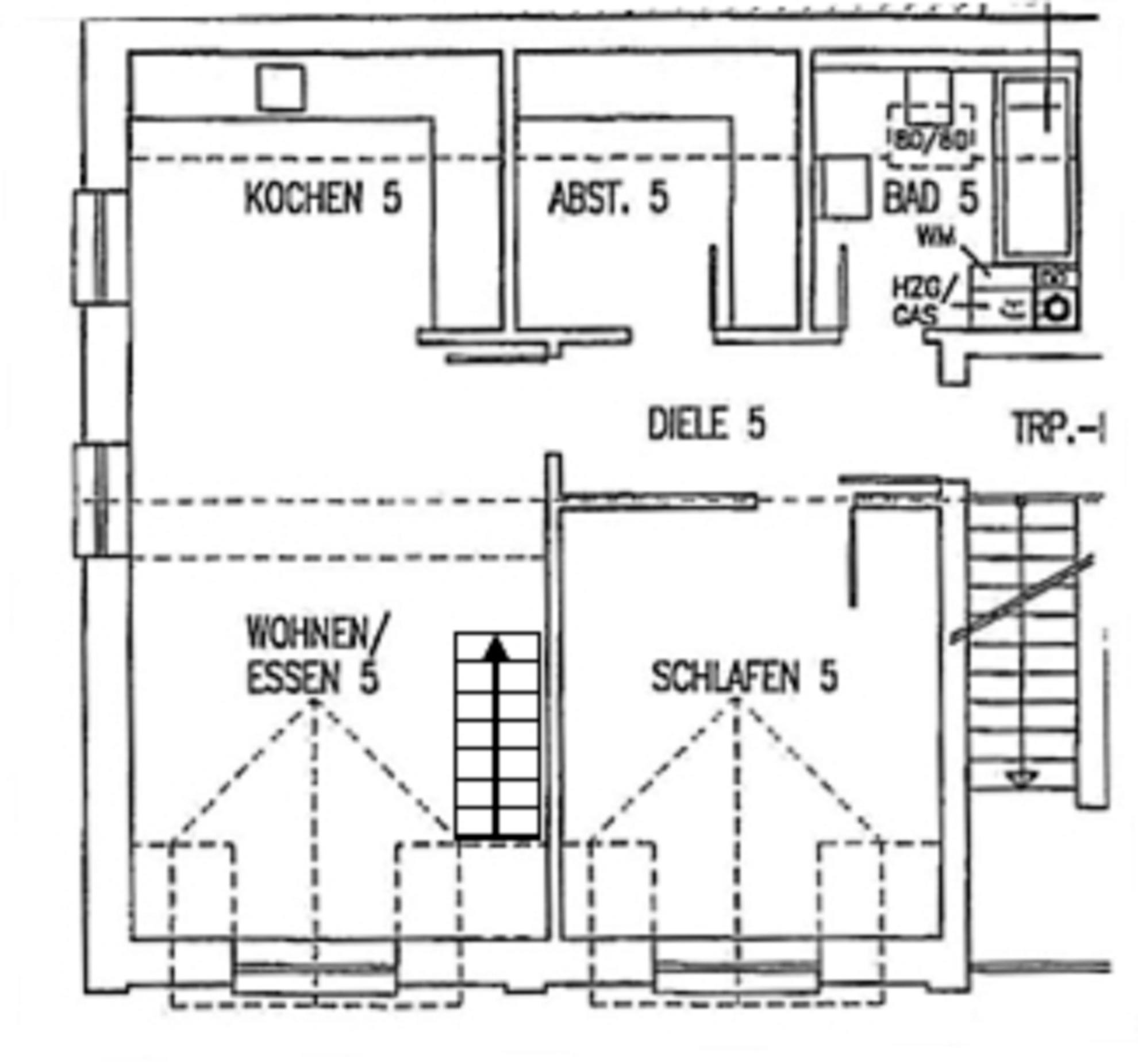
Unser Ferienappartement Meine ECKE 1 befindet sich im Dachgeschoss (2. Obergeschoss) eines Mehrfamilienhauses und wurde 2016 komplett renoviert. Die Wohnfläche von ca. 63 qm bietet mit einem Schlafzimmer, einem Wohn- und Essbereich, einem Abstellraum sowie einer Galerie (offener Spitzboden) über die gesamte Wohnung Platz für bis zu 4 Personen. Damit Ihr Euch wohl fühlt, haben wir unsere Betten komfortabel ausgestattet. In der unteren SchlafECKE (Hauptschlafzimmer) findet Ihr ein Doppel-Boxspringbett vor, oben auf der Galerie/Spitzboden befindet sich ebenfalls ein gemütliches Doppelbett. Unsere Betten und Bettwaren werden professionell gereinigt. Der Zugang zur Galerie erfolgt über eine steile Raumspartreppe. Auf der Galerie befindet sich zudem eine RelaxECKE zum Entspannen oder Lesen.
Die Dachschrägen und der offene Wohn- und Essbereich verleihen dem Appartement eine schöne Gemütlichkeit. Aus den Fenstern könnt Ihr die Altstadt von Eckernförde überschauen und von der Galerie einen Blick auf den Hafen erhaschen.
Die Küche ist neben den üblichen Dingen wie Kühlschrank, Herd, Backofen, Mikrowelle mit einer Nespresso-Maschine ausgestattet. Im Wohnbereich stehen ein Fernseher, Blue Ray Player inkl. kleiner Filmauswahl sowie Bluetooth-Lautsprecher für das Abspielen von Eurer Lieblingsmusik zur Verfügung. Ein Internetzugang über WLAN ist inklusive.
Für Kleinkinder stellen wir einen Hochstuhl und ein Reisebett bereit.
Der Rosengang ist eine kleine Straße in der Altstadt von Eckernförde. Von hier aus lassen sich sowohl der Strand und der Hafen als auch die Fußgängerzone von Eckernförde in nur wenigen Schritten bequem erreichen. Damit befinden sich auch zahlreiche Restaurants und Cafés direkt in der Nähe und das Auto kann den ganzen Urlaub stehen bleiben.
Um einen Parkplatz müsst Ihr Euch keine Gedanken machen, denn dieser befindet sich am Haus und ist im Mietpreis enthalten. Hier sei erwähnt, dass der Platz in der Altstadt sehr begrenzt ist. Daher ist der Parkplatz etwas schmaler und das Einparken sollte achtsam erfolgen. Die Parkmöglichkeiten in der Altstadt und in Strandnähe sind ansonsten nicht kostenfrei.
Vor dem Frühstück in die Ostsee hüpfen, danach auf den Eckernförder Markt, nachmittags am Strand liegen und den Abend in einem der Restaurants am Hafen ausklingen lassen. Das Alles ist kein Problem bei dieser Lage! Unsere top renovierten und modern ausgestatteten Ferienappartements liegen mitten in der wunderschönen Altstadt von Eckernförde. In nur 100 Schritten seid Ihr am Strand, am Hafen oder in der Einkaufsstraße von Eckernförde. Hier könnt Ihr die schnuckeligen Geschäfte, Restaurants und Cafés in unmittelbarer Nähe von morgens bis abends genießen.
Damit für Euch der Urlaub gleich beginnen kann und ihr den Aufenthalt bei uns so richtig genießen könnt, sind viele Dinge für Euch inklusive. So erwarten Euch frisch bezogene Betten, Handtücher und Strandlaken. Außerdem liegen für Euch Dinge des täglichen Bedarfs bereit (bspw. Seife, Haushaltsrolle, Geschirrspülertabs, Waschmittel, Toilettenpapier, Kerzen, Küchenkräuter, Pfeffer, Öl, etc.) und auch der morgendliche Nespresso oder Tee gehört mit dazu.
Unser Ferienappartement Meine ECKE 1 befindet sich im Dachgeschoss (2. Obergeschoss) eines Mehrfamilienhauses und wurde 2016 komplett renoviert. Die Wohnfläche von ca. 63 qm bietet mit einem Schlafzimmer, einem Wohn- und Essbereich, einem Abstellraum sowie einer Galerie (offener Spitzboden) über die gesamte Wohnung Platz für bis zu 4 Personen. Damit Ihr Euch wohl fühlt, haben wir unsere Betten komfortabel ausgestattet. In der unteren SchlafECKE (Hauptschlafzimmer) findet Ihr ein Doppel-Boxspringbett vor, oben auf der Galerie/Spitzboden befindet sich ebenfalls ein gemütliches Doppelbett. Unsere Betten und Bettwaren werden professionell gereinigt. Der Zugang zur Galerie erfolgt über eine steile Raumspartreppe. Auf der Galerie befindet sich zudem eine RelaxECKE zum Entspannen oder Lesen.
Die Dachschrägen und der offene Wohn- und Essbereich verleihen dem Appartement eine schöne Gemütlichkeit. Aus den Fenstern könnt Ihr die Altstadt von Eckernförde überschauen und von der Galerie einen Blick auf den Hafen erhaschen.
Die Küche ist neben den üblichen Dingen wie Kühlschrank, Herd, Backofen, Mikrowelle mit einer Nespresso-Maschine ausgestattet. Im Wohnbereich stehen ein Fernseher, Blue Ray Player inkl. kleiner Filmauswahl sowie Bluetooth-Lautsprecher für das Abspielen von Eurer Lieblingsmusik zur Verfügung. Ein Internetzugang über WLAN ist inklusive.
Für Kleinkinder stellen wir einen Hochstuhl und ein Reisebett bereit.
Der Rosengang ist eine kleine Straße in der Altstadt von Eckernförde. Von hier aus lassen sich sowohl der Strand und der Hafen als auch die Fußgängerzone von Eckernförde in nur wenigen Schritten bequem erreichen. Damit befinden sich auch zahlreiche Restaurants und Cafés direkt in der Nähe und das Auto kann den ganzen Urlaub stehen bleiben.
Um einen Parkplatz müsst Ihr Euch keine Gedanken machen, denn dieser befindet sich am Haus und ist im Mietpreis enthalten. Hier sei erwähnt, dass der Platz in der Altstadt sehr begrenzt ist. Daher ist der Parkplatz etwas schmaler und das Einparken sollte achtsam erfolgen. Die Parkmöglichkeiten in der Altstadt und in Strandnähe sind ansonsten nicht kostenfrei.
Damit für Euch der Urlaub gleich beginnen kann, ist für Euch die Basisausstattung des täglichen Bedarf (bspw. Toilettenpapier, Seife, Haushaltsrolle, Geschirrspülertabs, Waschmittel, Küchenkräuter, Pfeffer, Öl, etc.) inklusive. Auch der morgendliche Nespresso gehört gerne dazu.
Ausstattung
-
Allgemeines zur Wohnung
-
Haustiere verboten
-
-
Außenanlage
-
PKW-Parkplatz
-
-
Badezimmer
-
Dusche
-
Haartrockner
-
-
Basic
-
Größe63 m²
-
Wohnzimmer1
-
-
Besonderheiten
-
Nichtraucher
-
-
Entfernung
-
Autobahn19 km
-
Bahnhof500 m
-
Bushaltestelle500 m
-
Flughafen (nächster)118 km
-
Kiel28 km
-
Nord-Ostseekanal14 km
-
Ostsee/Strand400 m
-
Schleswig25 km
-
-
Küche
-
Backofen
-
Espressomaschine
-
Gefrierfach
-
Kaffeemaschine
-
Küchenzeile/-block
-
Kühlschrank
-
Mikrowelle
-
Toaster
-
Waschmaschine
-
Wasserkocher
-
-
Küchenausstattung
-
Herd (4 Platten)
-
Rührgerät
-
Spülmaschine
-
-
Ortschaft (intern)
-
Eckernförde
-
-
Service
-
Bettwäsche inkl.
-
Geschirrtücher inkl.
-
Handtücher inkl.
-
Wäschetrockner
-
-
Wohn-/Schlafbereich
-
Babybett
-
Doppelbetten
-
DVD Spieler
-
Einzelbetten
-
Internet/WLAN
-
Kinderbett
-
Kinderhochstuhl
-
TV mit Sat/Kab./DVB-T
-
TV ohne Sat/Kab./DVB-T
-
Prices and calendar
Kalender
Ankunft
-
Dezember 2025
Mo Di Mi Do Fr Sa So 49 1 2 3 4 5 6 7 50 8 9 10 11 12 13 14 51 15 16 17 18 19 20 21 52 22 23 24 25 26 27 28 1 29 30 31 2 -
Januar 2026
Mo Di Mi Do Fr Sa So 1 1 2 3 4 2 5 6 7 8 9 10 11 3 12 13 14 15 16 17 18 4 19 20 21 22 23 24 25 5 26 27 28 29 30 31 6
Verfügbarkeit am ausgewählten Datum prüfen
Frei
Nicht frei
Ankunft möglich
Dauer
Preis
Zeitraum
- Ankunft
- Abreise
- Dauer
Personen
Bis zu 4 Personen
Bitte beachten
Kann derzeit nicht gebucht werden.