Gemütliche Ferienwohnung mit Balkon und Gartenblick

Wilhelm-Ehrich-Str. - 23714 - Malente

Objekt Nr.: 530-267613
Gemütliche Ferienwohnung Emmi in ruhiger Lage mit Balkon und moderner Ausstattung für 2 Personen in Bad Malente-Gremsmühlen.
  • Schlafzimmer 1
  • Badezimmer 1
  • Wohnfläche 40 m²
  • Haustiere Nicht erlaubt
  • Kurzurlaub möglich Ja
  • Entfernung Wasser 20 km
  • Einkaufen 1 km
  • Internet Ja
  • Satelliten-/Kabel TV Ja
  • Nichtraucher Ja
  • Ladestation für Elektroauto Ja
  • Klimafreundlich Ja

Beschreibung

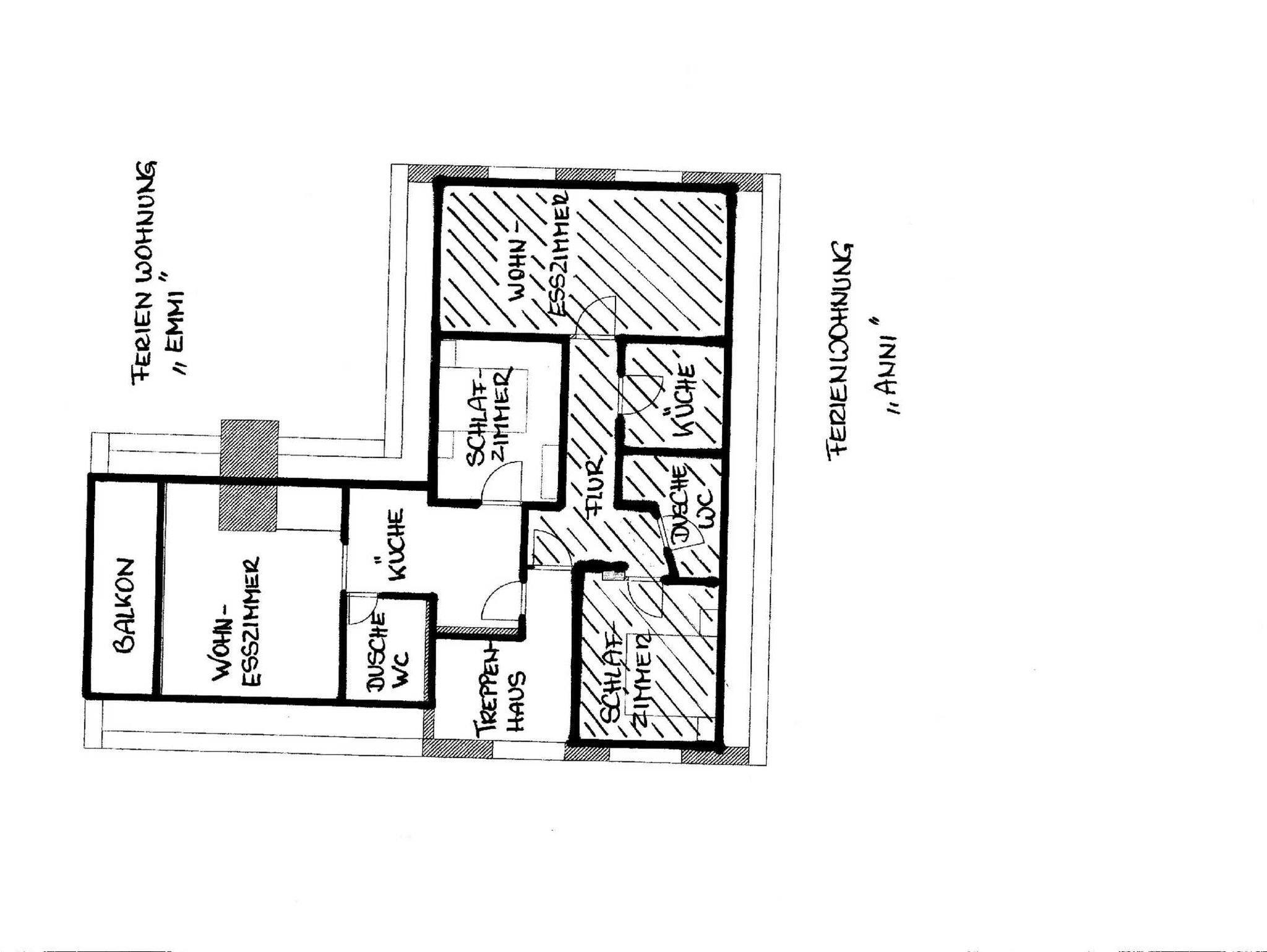
Ferienwohnung Emmi

Die renovierte und gemütliche Ferienwohnung „Emmi“ liegt im 1. Stock eines Mehrfamilienhauses in einer ruhigen Wohngegend in Bad Malente-Gremsmühlen.

Sie bietet Platz für bis zu 2 Personen, ist ca. 40 m² groß und verfügt über ein Wohnzimmer mit Essgelegenheit, ein Schlafzimmer mit Doppelbett, ein Badezimmer mit Dusche und WC, eine separate Küche sowie einen überdachten Balkon mit Blick in den Garten.

Im Wohnzimmer und Schlafzimmer wurden neue Teppichböden verlegt. Das Wohnzimmer ist ausgestattet mit einem Sofa und Couchtisch, einer Wohnwand mit Flachbild-TV, einem Esstisch mit 4 Sitzmöglichkeiten, einem kleinen Wandschrank sowie einer Leseecke mit Sessel und Beleuchtung.
Die Küche hat eine neue Küchenzeile mit Backofen, Ceranfeld und Kühlschrank bekommen.

Vor dem Haus steht Ihnen ein PKW-Stellplatz zur Verfügung. Fahrräder und andere Sportgeräte können in der Garage des Hauses abgestellt und eingeschlossen werden. Die nächste Einkaufmöglichkeit liegt ca. 1 Kilometer entfernt.

Bettwäsche und Handtücher sind im Reisepreis inklusive.

Aufladestation für E-Autos (Wallbox) vorhanden, Strom wird nach Verbrauch berechnet.

Die Ferienwohnungin einer ruhigen Sackgasse bietet Platz für bis zu 2 Personen, ist ca. 40 m² groß und verfügt über ein Wohnzimmer mit Essgelegenheit, ein Schlafzimmer mit Doppelbett, ein Badezimmer mit Dusche und WC, eine separate Küche sowie einen überdachten Balkon mit Blick in den Garten.

PKW-Stellplatz und Abstellmöglichkeiten für Fahrräder sind vorhanden.

Vor Ort
Kurtaxe ist bei Anreise zu zahlen.

Unsere Gästebewertungen Externe Bewertungen

Keine eigene Gästebewertungen
4,9
Einrichtungen:
4,3
Reinigung:
4,9
Komfort:
5,0
Freundlichkeit:
5,0
Lage:
4,7
Insgesamt:
5,0
Zimmer:
5,0
Service vor Ort:
5,0
Preis-Leistung:
4,9
1 externe Bewertung
4,9
August 2022
Einrichtungen:
4
Reinigung:
5
Komfort:
5
Freundlichkeit:
5
Lage:
5
Insgesamt:
5
Zimmer:
5
Service vor Ort:
5
Preis-Leistung:
5
Grund für die Wahl:
Hat uns im Internet sehr gefallen.
Verbesserungen:
Ein vollständiges Kaffeeservice und Kuchengabeln wäre sehr wünschenswert.

Gesamte Ausstattung

  • Aktivität einrichtungen

    • Radfahren
  • Entfernungen

    • Höhe über dem Meeresspiegel
      30 m
    • Zum (Kur-)Park/Wald
      2 km
    • Zum Arzt
      1,6 km
    • Zum Bahnhof
      2,2 km
    • Zum Bäcker
      1,3 km
    • Zum Freizeitpark
      28 km
    • Zum Geldautomaten/Bank
      1,7 km
    • Zum Golfplatz
      15 km
    • Zum Krankenhaus/Klinik
      10,3 km
    • Zum Radweg
      400 m
    • Zum Schwimm-/Spaßbad
      3 km
    • Zum Strand
      20 km
    • Zum Supermarkt
      1 km
    • Zum Wanderweg
      400 m
    • Zum Zentrum
      1,5 km
    • Zur Autobahn
      25 km
    • Zur Badestelle/Gewässer
      1,4 km
    • Zur Bushaltestelle
      400 m
    • Zur Therme
      33 km
    • Zur Tourist-Information
      2,2 km
  • Grundeinrichtungen

    • Größe
      40 m²
    • Jahr renoviert
      2017
  • Kinder einrichtungen

    • Familienfreundlich
  • Serviceeinrichtungen

    • Backofen
    • Balkon
    • Bettwäsche
    • Doppelbett
    • Dusche/WC
    • Gefriermöglichkeit
    • Handtücher
    • Heizung
    • Haartrockner
    • Internet - WLAN
    • Kabel / Sat
    • Kühlschrank
    • Mikrowelle
    • Nichtraucher
    • Schlafzimmer
    • Separate Küche
    • Teppichboden
    • Tiere nicht erlaubt
    • TV
    • TV - Flachbild
  • Umliegende einrichtungen

    • Fahrradunterstellmöglichkeit
    • Parkplatz
  • Unterkünfte

    • E-Auto Ladestation
    • E-Bike Ladestation
    • Energiespar-Beleuchtung
    • Fahrradraum abschließbar
    • Internet im öff. Bereich
    • Nichtraucherhaus
    • Radfreundlich
    • Wanderfreundlich

Kurzurlaub

Sie haben das ganze Jahr die Möglichkeit einen Kurzurlaub zu machen.

Prices and calendar

Kalender

Ankunft
Nächster Monat
  • April 2026
    MoDiMiDoFrSaSo
    1412345
    156789101112
    1613141516171819
    1720212223242526
    1827282930
    19
  • Mai 2026
    MoDiMiDoFrSaSo
    18123
    1945678910
    2011121314151617
    2118192021222324
    2225262728293031
    23
   Verfügbarkeit am ausgewählten Datum prüfen
Frei
Nicht frei
   Ankunft möglich
Dauer

Preis

Zeitraum
Ankunft
Abreise
Dauer
1 Woche
Personen
Bis zu 2 Personen

Bitte beachten

Ankunftszeit wurde nicht ausgewählt.
Vertrags- und Mietbedingungen