XL-Reetdachhaus mit Kamin und Garten in Rerik
XL- Reetdachhaus, Urlaub mit Hund, Ferien für 11 Personen - 18230 - Rerik
Objekt Nr.: 530-343798
7 Personen
davon 1 Kind (0-3 Jahre alt)
Charmantes XL-Reetdachhaus in Rerik mit Kamin, Garten und kinderfreundlicher Ausstattung für entspannte Ostseeferien.
-
Schlafzimmer 3
-
Badezimmer 2
-
Wohnfläche 96 m²
-
Haustiere 1
-
Kurzurlaub möglich Ja
-
Entfernung Wasser 1.500 m
-
Einkaufen 1.500 m
-
Internet Ja
-
Satelliten-/Kabel TV Ja
-
Kaminofen Ja
-
Barrierefrei Ja
-
Eingezäunter Bereich Ja
-
Waschmaschine Ja
-
Trockner Ja
-
Geschirrspüler Ja
-
Nichtraucher Ja
-
Klimafreundlich Ja
Beschreibung
L7 Ferienhaus Strandhafer Ostseebad Rerik - XL, 4-Raum-Ferienhaus mit Kamin (max. 6 Personen) - links
XL Reetdach-Ferienhaus im Ferienpark Ostseebad Rerik mit 2 Doppelhaushälften, die auch zusammen für XL Ostseeurlaub gebucht werden können. Die Doppelhaushälfte links ist für 6 Personen geeignet, die Doppelhaushälfte rechts für 5 Personen = insgesamt gibt es bei XL Buchung genügend Platz für 11 Personen.
Gemeinschaftlicher Eingang, gemeinschaftliche Nutzung von Waschmaschine und Trockner.
Insgesamt finden Sie hier 6 separate Schlafzimmer (3x je 1 Doppelbett + 2x je 2 Einzelbetten + 1x 1 Einzelbett). In der linken Haushälfte befindet sich ein Kamin, wo man einen erlebnisreichen Tag gemütlich ausklingen lassen kann.
Sonnen- Terrassen mit Gartenmöbeln (Sitz-/ Essgruppe und Lounge Garnitur) sowie abschließbarer Schuppen mit Ladestation für E-Bikes für alle Gäste nutzbar.
Kinderfreundliche Ausstattung:
Babybett (Reisebett ohne Bettwäsche), Hochstuhl, kindersichere Steckdosen, Treppenschutzgitter, großer, eingezäunter Garten. Zusätzlich gibt es einen Gemeinschaftsgarten mit Strandkorb und Sandkasten, der bitte tierfrei bleibt.
Ostseeurlaub mit Hund:
Im Ferienhaus sind Haustiere willkommen. Je Haus bietet ein eingezäunter Garten Schutz. Ein zusätzlicher Gemeinschaftsgarten für Kinder ist eingezäunt und bleibt tierfrei! Gebühr je Haustier und Tag 10 EUR. Ihr Hund darf nicht unbeaufsichtigt im Ferienhaus bleiben. Gassi- und Auslaufwege starten direkt am Haus Richtung Wald, Feld oder Strand.
Ausstattung des Ferienhauses:
Waschmaschine, Trockner, WLAN, Elektro- Tisch- Grill, Parkplatz. Smart-TV´s für Streamingdienste Sky, Netflix & Amazon Prime u.a.
Reetdach-/ Schilfdachhäuser:
Da es sich in dem Wohngebiet um Häuser mit Reet handelt, ist das Abfeuern von Feuerwerk und Silvesterraketen verboten. Rauchen im Haus nicht gestattet.
Extra- Service auf Wunsch (Gebühr):
Wäschepaket & Handtücher gg. Gebühr buchbar - ohne Kinderbettwäsche - bei Anreise NICHT bezogen
Gemeinschaftlicher Eingang, gemeinschaftliche Nutzung von Waschmaschine und Trockner.
Insgesamt finden Sie hier 6 separate Schlafzimmer (3x je 1 Doppelbett + 2x je 2 Einzelbetten + 1x 1 Einzelbett). In der linken Haushälfte befindet sich ein Kamin, wo man einen erlebnisreichen Tag gemütlich ausklingen lassen kann.
Sonnen- Terrassen mit Gartenmöbeln (Sitz-/ Essgruppe und Lounge Garnitur) sowie abschließbarer Schuppen mit Ladestation für E-Bikes für alle Gäste nutzbar.
Kinderfreundliche Ausstattung:
Babybett (Reisebett ohne Bettwäsche), Hochstuhl, kindersichere Steckdosen, Treppenschutzgitter, großer, eingezäunter Garten. Zusätzlich gibt es einen Gemeinschaftsgarten mit Strandkorb und Sandkasten, der bitte tierfrei bleibt.
Ostseeurlaub mit Hund:
Im Ferienhaus sind Haustiere willkommen. Je Haus bietet ein eingezäunter Garten Schutz. Ein zusätzlicher Gemeinschaftsgarten für Kinder ist eingezäunt und bleibt tierfrei! Gebühr je Haustier und Tag 10 EUR. Ihr Hund darf nicht unbeaufsichtigt im Ferienhaus bleiben. Gassi- und Auslaufwege starten direkt am Haus Richtung Wald, Feld oder Strand.
Ausstattung des Ferienhauses:
Waschmaschine, Trockner, WLAN, Elektro- Tisch- Grill, Parkplatz. Smart-TV´s für Streamingdienste Sky, Netflix & Amazon Prime u.a.
Reetdach-/ Schilfdachhäuser:
Da es sich in dem Wohngebiet um Häuser mit Reet handelt, ist das Abfeuern von Feuerwerk und Silvesterraketen verboten. Rauchen im Haus nicht gestattet.
Extra- Service auf Wunsch (Gebühr):
Wäschepaket & Handtücher gg. Gebühr buchbar - ohne Kinderbettwäsche - bei Anreise NICHT bezogen
Reetdach-Ferienhaus im Ostseebad Rerik mit 2 Doppelhaushälften.
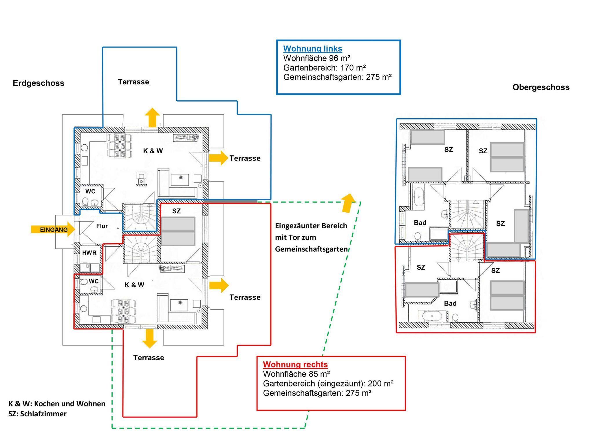
Doppelhaushälfte links (96m²) für 6 Personen + 1 Baby. 3 Schlafräume, Dusche; Badewanne, Gäste-WC
Im Erdgeschoss EG:
• großzügiger Wohn-/ Essbereich mit Kamin, Esstisch
• integrierte Küche mit Backofen, 4-Platten-Herd, Mikrowelle, Geschirrspüler, Kühl-/ Gefrierkombination, Kaffeemaschine
• Gäste-WC
• Gemeinschaftlicher HWR mit Waschmaschine und Trockner
Im Obergeschoss OG:
• insgesamt 3 Schlafzimmer:
• Schlafraum 1 mit Doppelbett (1,80 x 2m) & TV
• Schlafraum 2 zwei Einzelbetten (je 0,90x2 m)
• Schlafraum 3 zwei Einzelbetten (je 0,90x2 m)
• Geräumiges Bad mit Dusche/ WC sowie Badewanne
• 1 Babybett ist stellbar und vorhanden
Am Haus
• Eigener eingezäunter Garten (170m²) & Garten zur gemeinschaftlichen Nutzung (275 m²)
• Terrasse mit Gartenmöbeln (Sitz-/ Essgruppe und Lounge Garnitur)
• abschließbarer Gemeinschaftsschuppen für fahrräder und Kinderwagen
• Ladestation für E-Bikes
• Elektro- Tisch- Grill
Kinderfreundliche Ausstattung:
1 Babybett (Reisebett - ohne Kinderbettwäsche!), Hochstuhl, kindersichere Steckdosen, Treppenschutzgitter, großer, eingezäunter Garten für jede Wohnung vorhanden. Zusätzlich gibt es einen Gemeinschaftsgarten mit Strandkorb und Sandkasten), in dem keine Haustiere zulässig sind.
Ostseeurlaub mit Hund:
Im Ferienhaus sind Haustiere willkommen. Je Haus eingezäunter Garten. Ein zusätzlicher Gemeinschaftsgarten für Kinder ist eingezäunt und bleibt bitte tierfrei! Gebühr je Haustier und Tag 10 EUR. Ihr Hund darf nicht unbeaufsichtigt im Ferienhaus bleiben.
Ausstattung Ferienhaus:
Waschmaschine, Trockner, WLAN, Parkplatz. E-Bike-Ladestation.
Grillen, Silvester und Feuer:
Da es sich in dem Wohngebiet um Häuser mit Reet handelt, ist das Abfeuern von Feuerwerk und Silvesterraketen verboten. Das Rauchen ist im Ferienhaus nicht gestattet.
Extra- Service auf Wunsch (Gebühr):
Wäschepaket (Bettwäsche = bei Anreise NICHT bezogen, Handtücher & Geschirrtuch). Kinderbettwäsche bitte selbst mitbringen.
Doppelhaushälfte links (96m²) für 6 Personen + 1 Baby. 3 Schlafräume, Dusche; Badewanne, Gäste-WC
Im Erdgeschoss EG:
• großzügiger Wohn-/ Essbereich mit Kamin, Esstisch
• integrierte Küche mit Backofen, 4-Platten-Herd, Mikrowelle, Geschirrspüler, Kühl-/ Gefrierkombination, Kaffeemaschine
• Gäste-WC
• Gemeinschaftlicher HWR mit Waschmaschine und Trockner
Im Obergeschoss OG:
• insgesamt 3 Schlafzimmer:
• Schlafraum 1 mit Doppelbett (1,80 x 2m) & TV
• Schlafraum 2 zwei Einzelbetten (je 0,90x2 m)
• Schlafraum 3 zwei Einzelbetten (je 0,90x2 m)
• Geräumiges Bad mit Dusche/ WC sowie Badewanne
• 1 Babybett ist stellbar und vorhanden
Am Haus
• Eigener eingezäunter Garten (170m²) & Garten zur gemeinschaftlichen Nutzung (275 m²)
• Terrasse mit Gartenmöbeln (Sitz-/ Essgruppe und Lounge Garnitur)
• abschließbarer Gemeinschaftsschuppen für fahrräder und Kinderwagen
• Ladestation für E-Bikes
• Elektro- Tisch- Grill
Kinderfreundliche Ausstattung:
1 Babybett (Reisebett - ohne Kinderbettwäsche!), Hochstuhl, kindersichere Steckdosen, Treppenschutzgitter, großer, eingezäunter Garten für jede Wohnung vorhanden. Zusätzlich gibt es einen Gemeinschaftsgarten mit Strandkorb und Sandkasten), in dem keine Haustiere zulässig sind.
Ostseeurlaub mit Hund:
Im Ferienhaus sind Haustiere willkommen. Je Haus eingezäunter Garten. Ein zusätzlicher Gemeinschaftsgarten für Kinder ist eingezäunt und bleibt bitte tierfrei! Gebühr je Haustier und Tag 10 EUR. Ihr Hund darf nicht unbeaufsichtigt im Ferienhaus bleiben.
Ausstattung Ferienhaus:
Waschmaschine, Trockner, WLAN, Parkplatz. E-Bike-Ladestation.
Grillen, Silvester und Feuer:
Da es sich in dem Wohngebiet um Häuser mit Reet handelt, ist das Abfeuern von Feuerwerk und Silvesterraketen verboten. Das Rauchen ist im Ferienhaus nicht gestattet.
Extra- Service auf Wunsch (Gebühr):
Wäschepaket (Bettwäsche = bei Anreise NICHT bezogen, Handtücher & Geschirrtuch). Kinderbettwäsche bitte selbst mitbringen.
Vor Ort
Ortsübliche Kurtaxe plus Schlüsselkaution 25 EUR bar bei Anreise. Die Schlüssel-Kaution wird bei Anreise bar hinterlegt und bei Abreise bar ausgezahlt. Keine ec- oder Kreditkartenzahlung.
Ortsübliche Kurtaxe plus Schlüsselkaution 25 EUR bar bei Anreise. Die Schlüssel-Kaution wird bei Anreise bar hinterlegt und bei Abreise bar ausgezahlt. Keine ec- oder Kreditkartenzahlung.
Unsere Gästebewertungen Externe Bewertungen
Gesamte Ausstattung
-
Aktivität einrichtungen
-
Fahrradverleih
-
Kutschfahrten
-
Minigolf
-
Radfahren
-
Reiten
-
Surfen
-
-
Entfernungen
-
Zum Arzt1,5 km
-
Zum Bahnhof12 km
-
Zum Bäcker1,5 km
-
Zum Geldautomaten/Bank1,5 km
-
Zum Krankenhaus/Klinik22 km
-
Zum Radweg500 m
-
Zum Restaurant1,5 km
-
Zum Strand1,5 km
-
Zum Supermarkt1,5 km
-
Zum Wanderweg500 m
-
Zum Zentrum1,5 km
-
Zur Autobahn25 km
-
Zur Badestelle/Gewässer1,5 km
-
Zur Bushaltestelle1,5 km
-
Zur Tourist-Information1,5 km
-
-
Grundeinrichtungen
-
Baujahr2018
-
Größe96 m²
-
Jahr renoviert2020
-
-
Kinder einrichtungen
-
Familienfreundlich
-
Kleinkinderausstattung
-
-
Serviceeinrichtungen
-
Backofen
-
Bad/WC
-
BADEWANNE
-
Behindertenfreundlich
-
Bettwäsche
-
Brötchenservice
-
Doppelbett
-
Dusche
-
Dusche/WC
-
Ebenerdig
-
Einzelbett
-
Frühstücksservice
-
Gefriermöglichkeit
-
Getrennt stehende Betten
-
Gäste-WC
-
Handtücher
-
Haustiere erlaubt oder auf Anfrage
-
Heizung
-
Hochstuhl
-
Insektenschutz/Gaze
-
Internet - WLAN
-
Kabel / Sat
-
Kaffeemaschine
-
Kamin/-ofen
-
Kissen
-
Küche (offen)
-
Kühlschrank
-
Mehrere Schlafzimmer
-
Mikrowelle
-
Nichtraucher
-
Reinigungsutensilien
-
Reise-/Kinderbett
-
Smart TV
-
Spülmaschine
-
Streaming-Dienste
-
Terrasse
-
Tiere auf Anfrage
-
Toaster
-
Toilettenpapier
-
TV
-
TV - Flachbild
-
Waschmaschine
-
Wasserkocher
-
Wäschetrockner
-
-
Umliegende einrichtungen
-
Fahrradunterstellmöglichkeit
-
Garten zur Nutzung
-
Parkplatz
-
Sitzecke im Garten
-
Surfschule
-
Umzäuntes Grundstrück
-
-
Unterkünfte
-
Barrierefreiheit
-
Behindertenfreundlich
-
Bewusste Müllvermeidung
-
E-Bike Ladestation
-
Energiespar-Beleuchtung
-
Erweiterte Reinigungsmethoden im Einsatz
-
Fahrradraum abschließbar
-
Grillmöglichkeit
-
Internet im öff. Bereich
-
Klasse A Haushaltsgeräte
-
Kontaktloser Checkin/Checkout
-
Nichtraucherhaus
-
Radfreundlich
-
Wanderfreundlich
-
Wäscheservice
-
Ökologische Reinigungsmittel
-
-
Verpflegungsmöglichkeiten
-
Brötchenservice
-
Frühstück möglich
-
Kurzurlaub
Es besteht eine begrenzte Möglichkeit das ganze Jahr einen Kurzurlaub zu machen, typischerweise ausserhalb der Hochsaison.
Prices and calendar
Kalender
Dauer
Personen
Preis
Zeitraum
- Ankunft
- Abreise
- Dauer
- 1 Woche
Personen
Keine Personen ausgewählt
Bitte beachten
Ankunftszeit wurde nicht ausgewählt.
Es wurden keine Personen ausgewählt.