Modernes Ferienhaus nahe Ostsee mit Spa-Bereich

Gronenberger Mühle - 23684 - Scharbeutz

Objekt Nr.: 552-138318
Bild 3
7 Übernachtungen
Ab EUR 840,-
4 Erwachsene 0 Kinder
Genießen Sie modernen Komfort und Ruhe in stilvollem Ferienhaus nahe Ostsee und Seen in Scharbeutz.
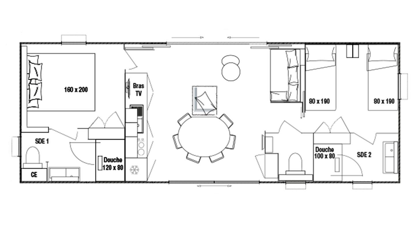
  • Schlafzimmer 2
  • Badezimmer 2
  • Wohnfläche 40 m²
  • Haustiere Nicht erlaubt
  • Kurzurlaub möglich Ja
  • Internet Ja
  • Klimaanlage Ja
  • Nichtraucher Ja

Beschreibung

Mitten im Grünen, umgeben von malerischen Seen und nicht einmal 3 km von der Ostsee entfernt, wohnen Sie hier in stilvollen, modernen Ferienhäusern. Entspannung und Ruhe können hier ebenso auf dem Urlaubsprogramm stehen, wie Baden und Wandern.

Im komfortablen Haus 24 vereinen sich optimale Raumaufteilung mit Komfort und Ausstattung auf höchstem Niveau. Das Haus mit 2 Schlafzimmern und 2 Bädern bietet der Familie optimalen Komfort und wahrt die Privatsphäre von jedermann. Mit dem luxuriösem Elternschlafzimmer mit angrenzendem Bad, dem Kinderzimmer- oder Gästezimmer mit viel raffiniertem Stauraum und dem hellen Wohnraum mit Mittelinsel garantiert Haus 24 einen Premium-Urlaub. Sie wohnen hier im Ambiente einer denkmalgeschützten, sanierten Wassermühle mit Restaurant und Weinbar. Nutzen Sie auch den Spa-Bereich mit Whirlpool und Sauna oder buchen Sie sich eine unserer zahlreichen Anwendungen dazu. Wer Baden möchte, hat in der Umgebung reichlich Gelegenheit, denn es gibt mehrere Badeseen in der Nähe, es ist nur 1 km zu einer Badeanstalt und die Ostsee ist auch nur 2,8 km entfernt. Am Strand stehen einige kostenlose Parkplätze zur Verfügung.

Raumaufteilung

  • Schlafzimmer, 2 Personen
    • Privates Badezimmer, Verdunklungsvorhänge, Kleiderschrank
    • Kleines Doppelbett
  • Schlafzimmer, 2 Personen
    • Privates Badezimmer, Verdunklungsvorhänge, Kleiderschrank
    • Einzelbett
    • Einzelbett

Unsere Gästebewertungen Externe Bewertungen

Keine eigene Gästebewertungen
5,0
6 externe Bewertungen
5,0
Oktober 2025
5,0
September 2025
5,0
September 2025
5,0
Mai 2025
5,0
April 2025
Allgemein:
Die Anlage ist sehr schön und ruhig. Wir haben uns über die gute Heizung gefreut, da es über die Ostertage sehr kalt war. Wir konnten unseren Urlaub genießen. Dort waren auch sehr viele nette Menschen unterwegs. Sehr schön!
5,0
September 2022

Gesamte Ausstattung

  • Aktivitäten

    • Fitnesstraining
    • Joggen
    • Mountainbiking
    • Radfahren
    • Reiten
    • Schwimmen
    • Tennis
    • Wandern
    • Wassersport
    • Yoga
  • Bad

    • Badezimmerfenster
    • Dusche
    • Haartrockner
    • Waschbecken
    • WC
  • Basic

    • Kinder willkommen
    • Nichtraucher
    • Quadratmeter
      40 m²
    • Zimmer
      3
  • Draußen

    • Anzahl der Parkplätze
      1
    • Barbeque
    • Gartenmöbel
    • Terrasse
  • Küche

    • Espressomaschine
    • Kaffeemaschine
    • Kochutensilien
    • Küche
    • Kühlschrank
    • Teller
    • Toaster
    • Wasserkocher
  • Unterkunft

    • Anzahl der Fernseher
      1
    • Betten
      4
    • Blick auf die Landschaft
    • Brötchenservice
    • Einkaufen
    • Einzelbetten
      2
    • Feueralarm
    • Freistehend
    • Gartenaussicht
    • Heizung
    • Herd
    • Internet
    • Kleiderschrank
    • Klimaanlage
    • Mülleimer
    • Möglichkeit zur Raumverdunkelung
    • Sitzgelegenheiten im Esszimmer
    • Sofa
    • Spiegel
    • Staubsauger
    • Tages-Spa
    • TV
    • Warmes Wasser
    • WLAN

Kurzurlaub

Es besteht eine begrenzte Möglichkeit das ganze Jahr einen Kurzurlaub zu machen, typischerweise ausserhalb der Hochsaison.

Prices and calendar

Kalender

Ankunft
Nächster Monat
   Verfügbarkeit am ausgewählten Datum prüfen
Frei
Nicht frei
   Ankunft möglich
Dauer
Personen

Preis

Zeitraum
Ankunft
Abreise
Dauer
1 Woche
Personen
Keine Personen ausgewählt

Bitte beachten

Ankunftszeit wurde nicht ausgewählt.
Es wurden keine Personen ausgewählt.
Vertrags- und Mietbedingungen