Modernes Ferienhaus mit Spa nahe Ostsee

Gronenberger Mühle - 23684 - Scharbeutz

Objekt Nr.: 552-138324
Bild 3
7 Übernachtungen
Ab EUR 797,-
4 Erwachsene 0 Kinder
Erleben Sie stilvolle Ferienhäuser nahe der Ostsee mit Spa, Sauna und traumhafter Naturkulisse in Scharbeutz.
  • Schlafzimmer 2
  • Badezimmer 2
  • Wohnfläche 40 m²
  • Haustiere 1
  • Kurzurlaub möglich Ja
  • Internet Ja
  • Geschirrspüler Ja
  • Nichtraucher Ja

Beschreibung

Mitten im Grünen, umgeben von malerischen Seen und nicht einmal 3 km von der Ostsee entfernt, wohnen Sie hier in stilvollen, modernen Ferienhäusern. Entspannung und Ruhe können hier ebenso auf dem Urlaubsprogramm stehen, wie Baden und Wandern.

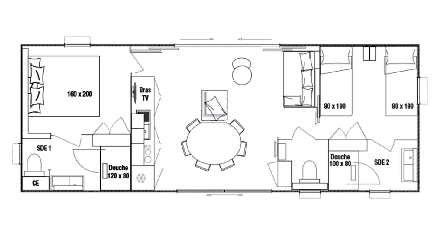
Im komfortablen Haus 29 vereinen sich optimale Raumaufteilung mit Komfort und Ausstattung auf höchstem Niveau. Das Haus mit 2 Schlafzimmern und 2 Bädern bietet der Familie optimalen Komfort und wahrt die Privatsphäre von jedermann. Mit dem luxuriösem Elternschlafzimmer mit angrenzendem Bad, dem Kinderzimmer- oder Gästezimmer mit viel raffiniertem Stauraum und dem hellen Wohnraum mit Mittelinsel garantiert Haus 29 einen Premium-Urlaub. Sie wohnen hier im Ambiente einer denkmalgeschützten, sanierten Wassermühle mit Restaurant und Weinbar. Nutzen Sie auch den Spa-Bereich mit Whirlpool und Sauna oder buchen Sie sich eine unserer zahlreichen Anwendungen dazu. Wer Baden möchte, hat in der Umgebung reichlich Gelegenheit, denn es gibt mehrere Badeseen in der Nähe, es ist nur 1 km zu einer Badeanstalt und die Ostsee ist auch nur 2,8 km entfernt. Am Strand stehen einige kostenlose Parkplätze zur Verfügung.

Raumaufteilung

  • Schlafzimmer, 2 Personen
    • Privates Badezimmer, Verdunklungsvorhänge, Kleiderschrank
    • Kleines Doppelbett
  • Schlafzimmer, 2 Personen
    • Privates Badezimmer, Verdunklungsvorhänge, Kleiderschrank
    • Einzelbett
    • Einzelbett

Unsere Gästebewertungen Externe Bewertungen

Keine eigene Gästebewertungen
5,0
4 externe Bewertungen
5,0
Oktober 2025
Allgemein:
In diesem gemütlich und geschmackvoll ausgestattetem Häuschen haben wir uns zum wiederholten Mal ausgesprochen wohl gefühlt. Die Ausstattung ist wunderbar durchdacht und sollte es doch einmal Extrawünsche geben ( z.B. 2. Bettdecke) ist euer Service sofort hilfreich! All dies hat uns ( vier Freundinnen) zu " Wiederholungstätern" gemacht und wir freuen uns schon auf ein nächstes Mal !
0,0
Oktober 2025
5,0
Juni 2025
5,0
Februar 2025

Gesamte Ausstattung

  • Aktivitäten

    • Angeln
    • Fitnesstraining
    • Joggen
    • Mountainbiking
    • Radfahren
    • Reiten
    • Schwimmen
    • Segeln
    • Sportliche Aktivitäten
    • Tauchen
    • Tennis
    • Wandern
    • Wasserski
    • Wassersport
    • Wellness
    • Yoga
  • Bad

    • Badezimmerfenster
    • Dusche
    • Gäste-WCs
      1
    • Haartrockner
    • Waschbecken
    • WC
  • Basic

    • Kinder willkommen
    • Nichtraucher
    • Quadratmeter
      40 m²
    • Zimmer
      3
  • Draußen

    • Anzahl der Parkplätze
      1
    • Barbeque
    • Gartenmöbel
    • Terrasse
  • Küche

    • Espressomaschine
    • Kaffeemaschine
    • Kochutensilien
    • Küche
    • Kühlschrank
    • Microwelle
    • Spülmaschine
    • Teller
    • Toaster
    • Wasserkocher
  • Unterkunft

    • Betten
      4
    • Blick auf die Landschaft
    • Brötchenservice
    • Einkaufen
    • Einzelbetten
      2
    • Esstisch
    • Esszimmer
    • Familie
    • Feueralarm
    • Freistehend
    • Gartenaussicht
    • Heizung
    • Herd
    • Internet
    • Kleiderschrank
    • Mülleimer
    • Möglichkeit zur Raumverdunkelung
    • Sitzgelegenheiten im Esszimmer
    • Sofa
    • Spiegel
    • Staubsauger
    • Tages-Spa
    • TV
    • Warmes Wasser
    • WLAN
    • Wohnzimmer

Kurzurlaub

Es besteht eine begrenzte Möglichkeit das ganze Jahr einen Kurzurlaub zu machen, typischerweise ausserhalb der Hochsaison.

Prices and calendar

Kalender

Ankunft
Nächster Monat
  • April 2026
    MoDiMiDoFrSaSo
    1412345
    156789101112
    1613141516171819
    1720212223242526
    1827282930
    19
  • Mai 2026
    MoDiMiDoFrSaSo
    18123
    1945678910
    2011121314151617
    2118192021222324
    2225262728293031
    23
   Verfügbarkeit am ausgewählten Datum prüfen
Frei
Nicht frei
   Ankunft möglich
Dauer
Personen

Preis

Zeitraum
Ankunft
Abreise
Dauer
1 Woche
Personen
Keine Personen ausgewählt

Bitte beachten

Ankunftszeit wurde nicht ausgewählt.
Es wurden keine Personen ausgewählt.
Vertrags- und Mietbedingungen