Stilvolles Ferienhaus mit Spa nahe Ostsee

Gronenberger Mühle - 23684 - Scharbeutz

Objekt Nr.: 552-138325
Bild 3
7 Übernachtungen
Ab EUR 797,-
4 Erwachsene 0 Kinder
Modernes Ferienhaus nahe Ostsee und Seen mit Spa, Sauna und stilvollem Ambiente.
  • Schlafzimmer 2
  • Badezimmer 2
  • Wohnfläche 40 m²
  • Haustiere Nicht erlaubt
  • Kurzurlaub möglich Ja
  • Internet Ja
  • Geschirrspüler Ja
  • Nichtraucher Ja

Beschreibung

Mitten im Grünen, umgeben von malerischen Seen und nicht einmal 3 km von der Ostsee entfernt, wohnen Sie hier in stilvollen, modernen Ferienhäusern. Entspannung und Ruhe können hier ebenso auf dem Urlaubsprogramm stehen, wie Baden und Wandern.

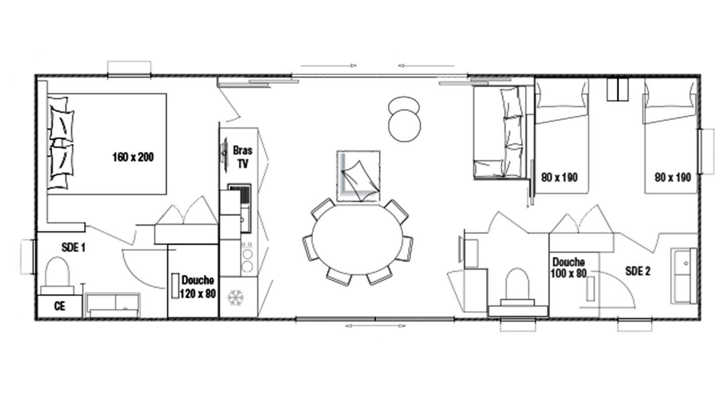
Im komfortablen Haus 31 vereinen sich optimale Raumaufteilung mit Komfort und Ausstattung auf höchstem Niveau. Das Haus mit 2 Schlafzimmern und 2 Bädern bietet der Familie optimalen Komfort und wahrt die Privatsphäre von jedermann. Mit dem luxuriösem Elternschlafzimmer mit angrenzendem Bad, dem Kinderzimmer- oder Gästezimmer mit viel raffiniertem Stauraum und dem hellen Wohnraum mit Mittelinsel garantiert Haus 31 einen Premium-Urlaub. Sie wohnen hier im Ambiente einer denkmalgeschützten, sanierten Wassermühle mit Restaurant und Weinbar. Nutzen Sie auch den Spa-Bereich mit Whirlpool und Sauna oder buchen Sie sich eine unserer zahlreichen Anwendungen dazu. Wer Baden möchte, hat in der Umgebung reichlich Gelegenheit, denn es gibt mehrere Badeseen in der Nähe, es ist nur 1 km zu einer Badeanstalt und die Ostsee ist auch nur 2,8 km entfernt. Am Strand stehen einige kostenlose Parkplätze zur Verfügung.

Raumaufteilung

  • Schlafzimmer, 2 Personen
    • Privates Badezimmer, Verdunklungsvorhänge, Kleiderschrank
    • Kleines Doppelbett
  • Schlafzimmer, 2 Personen
    • Privates Badezimmer, Verdunklungsvorhänge, Kleiderschrank
    • Einzelbett
    • Einzelbett

Unsere Gästebewertungen Externe Bewertungen

Keine eigene Gästebewertungen
4,7
6 externe Bewertungen
5,0
Oktober 2025
Allgemein:
Das Resort bietet Erholung pur, man badet im Wald. Das Haus ist sehr gut geplant und wir hatten alles und mehr was wir erwartet haben. Der Brötchen Service ist perfekt und gemütliche Stunden in der Hofmühle zu verbringen sind sehr zu empfehlen. Das Essen, die Getränke und der Service sind extrem gut. Wir kommen auf jeden Fall wieder in die Gronenberger Mühle
5,0
September 2025
4,0
September 2025
4,0
August 2025
Allgemein:
Es lohnt sich auf jeden Fall dort ein paar Tage zu verbringen . Die Ruhe und Atmosphäre ist sehr schön. Man kann wunderbare Radtouren unternehmen.
5,0
Juli 2025
5,0
Juli 2025

Gesamte Ausstattung

  • Aktivitäten

    • Angeln
    • Fitnesstraining
    • Joggen
    • Mountainbiking
    • Radfahren
    • Reiten
    • Schwimmen
    • Segeln
    • Sportliche Aktivitäten
    • Tauchen
    • Tennis
    • Wandern
    • Wasserski
    • Wassersport
    • Wellness
    • Yoga
  • Bad

    • Badezimmerfenster
    • Dusche
    • Haartrockner
    • Waschbecken
    • WC
  • Basic

    • Kinder willkommen
    • Nichtraucher
    • Quadratmeter
      40 m²
    • Zimmer
      3
  • Draußen

    • Anzahl der Parkplätze
      1
    • Barbeque
    • Gartenmöbel
    • Terrasse
  • Küche

    • Espressomaschine
    • Kaffeemaschine
    • Kochutensilien
    • Küche
    • Kühlschrank
    • Microwelle
    • Spülmaschine
    • Teller
    • Toaster
    • Wasserkocher
  • Unterkunft

    • Betten
      4
    • Blick auf die Landschaft
    • Brötchenservice
    • Einkaufen
    • Einzelbetten
      2
    • Esstisch
    • Esszimmer
    • Familie
    • Feueralarm
    • Freistehend
    • Gartenaussicht
    • Heizung
    • Herd
    • Internet
    • Kleiderschrank
    • Mülleimer
    • Möglichkeit zur Raumverdunkelung
    • Sitzgelegenheiten im Esszimmer
    • Sofa
    • Spiegel
    • Staubsauger
    • Tages-Spa
    • TV
    • Warmes Wasser
    • WLAN
    • Wohnzimmer

Kurzurlaub

Es besteht eine begrenzte Möglichkeit das ganze Jahr einen Kurzurlaub zu machen, typischerweise ausserhalb der Hochsaison.

Prices and calendar

Kalender

Ankunft
Nächster Monat
   Verfügbarkeit am ausgewählten Datum prüfen
Frei
Nicht frei
   Ankunft möglich
Dauer
Personen

Preis

Zeitraum
Ankunft
Abreise
Dauer
1 Woche
Personen
Keine Personen ausgewählt

Bitte beachten

Ankunftszeit wurde nicht ausgewählt.
Es wurden keine Personen ausgewählt.
Vertrags- und Mietbedingungen