Luxussuite mit Sauna und Balkon am Strand

Strandallee - 23669 - Timmendorfer Strand

Objekt Nr.: 552-85550
Luxuriöse 2-Zimmer-Suite mit Sauna, Balkon und Terrasse, nur 100 m vom Strand in Timmendorfer Strand entfernt.
  • Schlafzimmer 2
  • Badezimmer 1
  • Wohnfläche 106 m²
  • Haustiere 1
  • Kurzurlaub möglich Ja
  • Entfernung Wasser 100 m
  • Einkaufen 700 m
  • Sauna Ja
  • Internet Ja
  • Satelliten-/Kabel TV Ja
  • Geschirrspüler Ja
  • Nichtraucher Ja

Beschreibung

Luxussuite 0.04 mit Terrasse, Sauna & Balkon in Timmendorfer Strand - Strandnah!

Moderne Luxussuite für 5 Personen mit Balkon, Sauna, Terrasse & Tiefgaragenplatz - die Ostsee vor der Tür in Timmendorfer Strand!

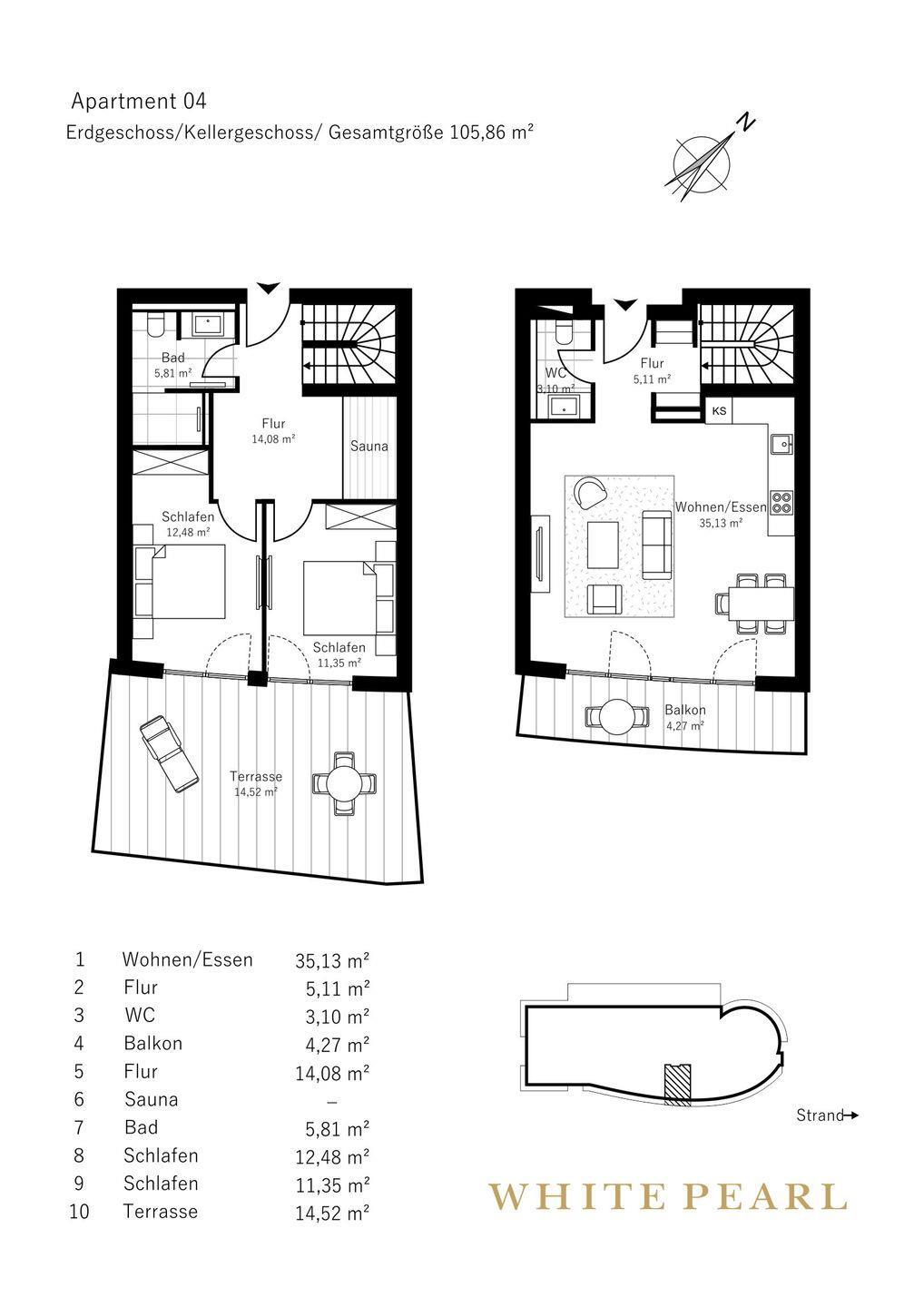
Die großzügige Luxussuite 0.04 im Erdgeschoss des "White Pearl" erstreckt sich über zwei Etagen und bietet Platz für 5 Personen auf 106 m² - auch Ihr Hund ist willkommen. Im Untergeschoss befinden sich zwei Schlafzimmer mit Boxspring-Doppelbetten - beide Schlafzimmer haben Zugang zur großen, möblierten Terrasse. Ergänzt wird das Untergeschoss durch ein modernes Badezimmer mit Dusche sowie eine eigene Sauna (2,37m × 1,19m) im Flur. Im Erdgeschoss erwartet Sie eine offene, gut ausgestattete Küchenzeile mit anschließender Essecke. Abgerundet wird der Wohnbereich durch ein gemütliches Sofa, das als weitere Schlafmöglichkeit dient, sowie Sessel. Des Weiteren gibt es ein Gäste-WC. Ein Highlight des Apartments ist der Balkon, der entspannte Stunden an der frischen Meeresluft ermöglicht! Zur Wohnung gehört ein Tiefgaragenstellplatz - die Tiefgarage erreichen Sie vom Flur im Untergeschoss. Erleben Sie eine virtuelle Reise durch das Apartment mit dem 360° Rundgang!

Raumaufteilung

  • Schlafzimmer, 2 Personen
    • Verdunklungsvorhänge, Kleiderschrank
    • Kingsize-Boxspringbett (Extra hoch, Extra lang, Offenes Fußteil)
  • Schlafzimmer, 2 Personen
    • Verdunklungsvorhänge, Kleiderschrank
    • Kingsize-Boxspringbett (Extra hoch, Extra lang, Offenes Fußteil)

Unsere Gästebewertungen Externe Bewertungen

Keine eigene Gästebewertungen
4,7
60 externe Bewertungen
5,0
März 2026
5,0
März 2026
5,0
Dezember 2025
5,0
August 2025
4,5
August 2025
Allgemein:
Top Unterkunft am Timmendorfer Strand
4,8
Juli 2025
Allgemein:
Moderne, saubere und voll ausgestattete Suite in Strand und Promenadennähe. Sehr freundliches Personal und absolut hilfsbereit - Danke dafür! Wir haben bereits erneut gebucht, weil wir uns super wohl gefühlt haben.
4,3
Juli 2025
5,0
April 2025
4,8
April 2025
5,0
März 2025
Allgemein:
Das Appartement ist sehr zu empfehlen. Es war super sauber, die Küche ist nahezu voll ausgestattet. Die ganze Anlage ist sehr ruhig, in den unten liegenden Schlafzimmern konnte man traumhaft schlafen. Die Betten sind megabequem. Hier waren wir nicht zum letzten Mal.
4,8
März 2025
4,5
März 2025
Allgemein:
Sehr erholsame Woche in einer schönen gepflegten Anlage. Äußerst freundliche und zuvorkommende Mitarbeiter
4,5
Januar 2025
Allgemein:
Wir waren zum zweiten Mal in der Anlage White Pearl. Die Lage ist hervorragend, man ist schnell am Strand und in der Einkaufszone. Das Haus selbst macht einen sehr positiven Eindruck mit gehobenem Standard. Alles ist sehr gepflegt und alle Mitarbeiter sehr aufmerksam, freundlich und zuvorkommend! Die Appartements sind etwas nüchtern eingerichtet, aber es fehlt an nichts. Alles ist top gepflegt und sauber. Man hat einen Stellplatz in der Tiefgarage und Hunde sind ebenfalls willkommen in ausgewählten Appartements. Wir können die Unterkunft uneingeschränkt empfehlen!
5,0
Dezember 2024
5,0
Oktober 2024
Allgemein:
Wir kommen schon seit einigen Jahren in dieses Objekt und bewohnen immer die 0.04. Die Wohnung ist optimal aufgeteilt. Im Sommer ist es in den Schlafzimmern im UG angenehm kühl. Die Wohnung ist sehr ruhig gelegen und sehr gemütlich. Immer wieder gern!
5,0
Oktober 2024
4,8
September 2024
Allgemein:
Tolle Einrichtung und super Lage. Unterkunft war perfekt
4,0
August 2024
4,0
Juli 2024
5,0
April 2024
5,0
März 2024
Allgemein:
Es war wieder wunderbar - vielen Dank! Wir kommen sehr gerne wieder.
4,8
Dezember 2023
4,5
November 2023
4,8
Oktober 2023
4,5
Oktober 2023
5,0
September 2023
4,5
September 2023
5,0
August 2023
Allgemein:
Sehr schöne Lage, hochwertige Ausstattung mit allem, was man braucht. Nettes Personal und angemessenes Preis/-Leistungsverhältnis. Das Appartement ist ruhig gelegen, nur wenige Schritte zum Strand und tollen Restaurants - sehr empfehlenswert, wir kommen wieder!
4,5
August 2023
Allgemein:
Das White Pearl ist eine super Anlage in Strandnähe. Wir besuchen Diese bereits das vierte Mal mit 2 kleinen Kindern. Die Wände sind gut Schall isoliert so dass man seine Nachbarn kaum wahrnimmt. Besonders gut gefällt uns die Aufteilung der Schlafräume im unteren Bereich und die Wohnebene auf Erdgeschosshöhe. (Zu Mindestens bei unserem Zimmer) sobald die Kinder schlafen, kann oben noch entspannt den Abend ausklingen lassen ohne die ganze Zeit flüstern zu müssen. Auch das Personal an der Rezeption ist immer freundlich und hilfsbereit. Allgemein immer wieder ein Urlaub wert
4,5
Juni 2023
Allgemein:
Sehr moderne und hochwertige Unterkunft. Es fehlt ein wenig die Liebe zum Detail. Es war keine Seife auf den Toiletten und keine Liegen im Außenbereich, das erwarte ich für diesen Preis.
4,8
Oktober 2022
5,0
Oktober 2022
5,0
Oktober 2022
5,0
Oktober 2022
4,8
September 2022
4,8
August 2022
4,8
Mai 2022
Allgemein:
Vielen Dank. Es hat uns alles gefallen, nur an dem Wetter müssen wir noch etwas arbeiten. ;-) Bis zum nächsten Mal.
4,5
März 2022
5,0
Dezember 2021
Allgemein:
Super schöne Anlage , super freundliche Mitarbeiter . Kobalt per Telefon super nett , Kontakt in der Anlage super freundlich und hilfsbereit
4,5
November 2021
5,0
September 2021
Allgemein:
Sehr empfehlenswert
4,3
September 2021
4,0
August 2021
4,3
Juli 2021
5,0
Oktober 2020
4,8
September 2020
4,7
September 2020
4,3
August 2020
5,0
August 2020
5,0
August 2020
5,0
Juli 2020
Allgemein:
Wir haben uns mit unserem Enkelkind sehr wohl gefühlt. Die Lage und Ausstattung war super. Werden das Apartment weiterempfehlen und selbst aber auch wieder buchen.
4,5
Juli 2020
4,8
Januar 2020
Allgemein:
Die Anlage liegt sehr schön. Zum Strand sind es über einen nahegelegenen Fußweg nur 2 Minuten. Die Ausstattung der Wohnung 0.04 ist hochwertig. Auf der oberen Etage (in der Wohung 0.04 Erdgeschoss) befindet sich das Wohn-Esszimmer mit integrierter Küchenzeile. Alles, was nötig ist, war in ausreichender Anzahl vorhanden.Trotz der vorbeiführenden Straße war in den Schlafzimmern im Untergeschoss auch bei geöffnetem Fenster kein Straßengeräusch zu hören. Die Betten sind sehr bequem. Zudem sind in jedem Schlafzimmer zusätzlich Fernseher vorhanden. Das Badezimmer hat eine ausreichende Größe und ein Gäste-WC ist ebenfalls vorhanden. Wir würden die Unterkunft jederzeit wieder buchen.
5,0
Dezember 2019
Allgemein:
Erstklassige und weit überdurchschnittliche Wohnungen mit besonders hochwertiger Ausstattung in bester, ruhiger Lage. Das Team vom Verwalter Hoff macht hervorragende Arbeit.
5,0
Dezember 2019
4,8
Oktober 2019
Allgemein:
Super Austattung, einfach nur zum Wohlfühlen
4,8
September 2019
Allgemein:
Wunderschöne komfortable Unterkunft, Strand- und Zentrumsnah, sehr gute Ausstattung, modern und hell.
4,8
September 2019
Allgemein:
Sehr hochwertige Appartements mit stilvoller, moderner Ausstattung in einem ebensolchen Gebäude. Beste Lage.
5,0
August 2019
Allgemein:
Eine wunderschöne Appartement Anlage zum Wohlfühlen und Entspannen. Der kurze Weg zur Ostsee ist optimal.
4,8
August 2019

Gesamte Ausstattung

  • Aktivitäten

    • Golf
    • Joggen
    • Minigolf
    • Mountainbiking
    • Nordic Walking
    • Radfahren
    • Schwimmen
    • Sportliche Aktivitäten
    • Surfen
    • Tauchen
    • Wasserski
    • Wassersport
  • Bad

    • Anzahl der Duschen
      1
    • Badezimmerfenster
    • Dusche
    • Gäste-WCs
      1
    • Haartrockner
    • Waschbecken
    • WC
    • Wäschetrockner
  • Basic

    • Anzahl der Stockwerke
      4
    • Baujahr
      2019
    • Kinder willkommen
    • Nichtraucher
    • Quadratmeter
      106 m²
    • Zimmer
      3
  • Draußen

    • Anzahl der Parkplätze
      1
    • Garage
    • Privater P-Platz
    • Terrasse
  • Entfernung

    • Entfernung Einkauf
      700 m
    • FlughafenEntfernung
      75000 km
    • MeerEntfernung
      100 m
    • RestaurantEntfernung
      400 m
    • Strandentfernung
      100 m
  • Küche

    • Backofen
    • Espressomaschine
    • Gefrierfach
    • Kaffeemaschine
    • Kochutensilien
    • Küche
    • Kühlschrank
    • Microwelle
    • Spülmaschine
    • Teller
    • Toaster
    • Wasserkocher
  • Unterkunft

    • Anzahl der Fernseher
      3
    • Aufzug
    • Balkon
    • Betten
      5
    • Digitales Fernsehen
    • Einkaufen
    • Esstisch
    • Familie
    • Fußbodenheizung
    • Ganzkörperspiegel
    • Heizung
    • Herd
    • Internet
    • Jalousie
    • Kleiderschrank
    • Luxus
    • Mülleimer
    • Möglichkeit zur Raumverdunkelung
    • Radio
    • Rauchmelder
    • Safe
    • Sauna
    • Schminkspiegel
    • Sessel
    • Sitzgelegenheiten im Esszimmer
    • Sofa
    • Spiegel
    • Staubsauger
    • TV
    • Warmes Wasser
    • Waschmaschine
    • WLAN
    • Wohnzimmer
    • Überdachte Terrasse

Kurzurlaub

Es besteht eine begrenzte Möglichkeit das ganze Jahr einen Kurzurlaub zu machen, typischerweise ausserhalb der Hochsaison.

Prices and calendar

Kalender

Ankunft
Nächster Monat
  • April 2026
    MoDiMiDoFrSaSo
    1412345
    156789101112
    1613141516171819
    1720212223242526
    1827282930
    19
  • Mai 2026
    MoDiMiDoFrSaSo
    18123
    1945678910
    2011121314151617
    2118192021222324
    2225262728293031
    23
   Verfügbarkeit am ausgewählten Datum prüfen
Frei
Nicht frei
   Ankunft möglich
Dauer
Personen

Preis

Zeitraum
Ankunft
Abreise
Dauer
1 Woche
Personen
Keine Personen ausgewählt

Bitte beachten

Ankunftszeit wurde nicht ausgewählt.
Es wurden keine Personen ausgewählt.
Vertrags- und Mietbedingungen