Ferienwohnung mit Meerblick direkt am Strand
Dünenstraße - 17419 - Ahlbeck (Seebad)
Objekt Nr.: 530-198462
2 Personen
Moderne Ferienwohnung in Ahlbeck mit Meerblick, nur 50 m vom Ostseestrand entfernt, inklusive Wintergarten und Tiefgaragenplatz.
-
Schlafzimmer 1
-
Badezimmer 1
-
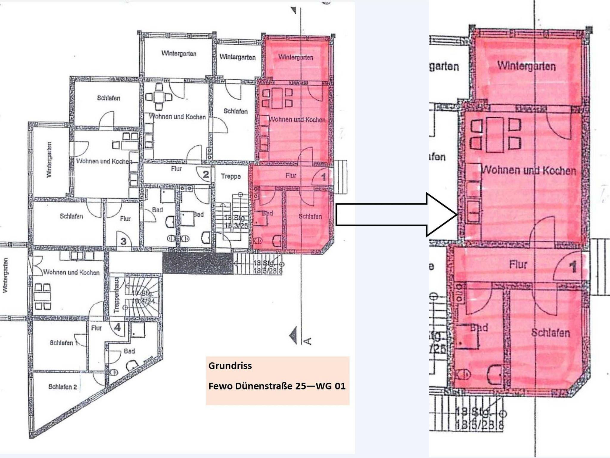
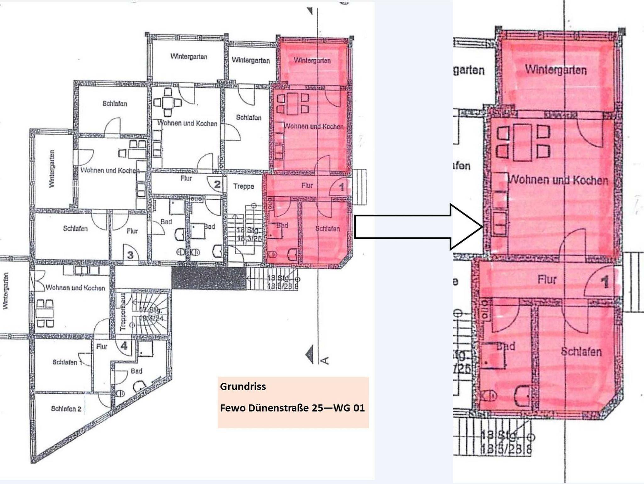
Wohnfläche 48 m²
-
Haustiere Nicht erlaubt
-
Kurzurlaub möglich Ja
-
Entfernung Wasser 50 m
-
Einkaufen 200 m
-
Internet Ja
-
Satelliten-/Kabel TV Ja
-
Wasserblick Ja
-
Geschirrspüler Ja
-
Nichtraucher Ja
Beschreibung
Ahlbeck, FEWO Meerblick 01 Haus Meerblick
Genießen Sie Ihren Urlaub mit Blick auf den Sandstrand von Ahlbeck, nur einen kurzen Spaziergang von der Seebrücke entfernt. In dieser Lage könnten Sie näher am Ostseestrand nicht sein - nur eine Minute trennt Sie vom feinen Ostseesand! Ihre liebevoll eingerichtete Ferienwohnung befindet sich im Erdgeschoss der 2017 sanierten Gründerzeitvilla Meerblick. Die Ferienwohnung Ostseestrand ist eine gemütliche 2-Raumwohnung (48m²), die ideal für zwei Personen geeignet ist und sich perfekt für einen Aufenthalt in den Kasierbädern anbietet.
Wenn Sie kurze Wege zur Flaniermeile und zum Ostseestrand schätzen, sind Sie hier genau richtig. Die komfortable Ferienwohnung verfügt über einen großzügigen verglasten Wintergarten, der Ihnen einen herrlichen Blick auf die Strandpromenade und den Ahlbecker Strand bietet. Der Wintergarten ist durch eine Glastür vom kombinierten Ess- und Wohnbereich abgetrennt. Sowohl im Wohnbereich als auch im Schlafzimmer erwartet Sie ein moderner Flachbild-TV. Das Schlafzimmer ist mit einem gemütlichen Doppelbett ausgestattet.
Unsere Gäste profitieren von kostenfreiem WLAN-Zugang. Der Zugang zur Wohnung erfolgt über einen separaten Eingang, wo sich auch eine 12m² große Terrasse gehört. Ein PKW-Stellplatz in der Tiefgarage steht Ihnen ebenfalls kostenfrei zur Verfügung. Für zwei Personen ist bereits je ein Wäschepaket im Preis enthalten, sodass Sie Ihre Betten bezogen vorfinden - inklusive eines Handtuchpakets. Im Wäschepaket sind zwei Geschirrtücher, ein Duschvorleger sowie pro Person jeweils ein Set aus Bettwäsche, einem kleinem und einem großen Handtuch enthalten. Sollten Sie zusätzliche Wäschepakete benötigen, können Sie diese bequem bei unserem Hausservicedienst bestellen. Bleiben Sie 14 Tage oder länger? Dann erhalten Sie auf Wunsch nach der ersten Woche ein weiteres Wäschepaket pro Person kostenfrei - bitte melden Sie dies im Voraus an.
Wir freuen uns auf Ihren Besuch!
Wenn Sie kurze Wege zur Flaniermeile und zum Ostseestrand schätzen, sind Sie hier genau richtig. Die komfortable Ferienwohnung verfügt über einen großzügigen verglasten Wintergarten, der Ihnen einen herrlichen Blick auf die Strandpromenade und den Ahlbecker Strand bietet. Der Wintergarten ist durch eine Glastür vom kombinierten Ess- und Wohnbereich abgetrennt. Sowohl im Wohnbereich als auch im Schlafzimmer erwartet Sie ein moderner Flachbild-TV. Das Schlafzimmer ist mit einem gemütlichen Doppelbett ausgestattet.
Unsere Gäste profitieren von kostenfreiem WLAN-Zugang. Der Zugang zur Wohnung erfolgt über einen separaten Eingang, wo sich auch eine 12m² große Terrasse gehört. Ein PKW-Stellplatz in der Tiefgarage steht Ihnen ebenfalls kostenfrei zur Verfügung. Für zwei Personen ist bereits je ein Wäschepaket im Preis enthalten, sodass Sie Ihre Betten bezogen vorfinden - inklusive eines Handtuchpakets. Im Wäschepaket sind zwei Geschirrtücher, ein Duschvorleger sowie pro Person jeweils ein Set aus Bettwäsche, einem kleinem und einem großen Handtuch enthalten. Sollten Sie zusätzliche Wäschepakete benötigen, können Sie diese bequem bei unserem Hausservicedienst bestellen. Bleiben Sie 14 Tage oder länger? Dann erhalten Sie auf Wunsch nach der ersten Woche ein weiteres Wäschepaket pro Person kostenfrei - bitte melden Sie dies im Voraus an.
Wir freuen uns auf Ihren Besuch!
Willkommen in dieser modernen, hellen 2-Raum-Nichtraucher-Ferienwohnung im Erdgeschoss einer sanierten Villa im weißen Landhausstil. Die Wohnküche ist mit einer Couch, einem Tisch und vier Stühlen ausgestattet und bietet Unterhaltung durch einen Flachbild-TV, ein Radio mit CD-Player und einen DVD-Player.
Die Küchenzeile verfügt über einen 4-Plattenherd, Mikrowelle, Geschirrspüler sowie Kaffeemaschine, Toaster und Wasserkocher. Der Kühlschrank hat ein großes Frostfach. Die harmonisch abgestimmte Inneneinrichtung umfasst Fliesen in Wohnküche, Schlafzimmer, Flur und Bad. Das Badezimmer ist mit Fenster, WC und ebenerdiger Dusche ausgestattet. Im Schlafzimmer finden Sie ein Doppelbett (2,0 m x 1,60 m) und einen Wäscheschrank.
Ein kostenfreier WLAN-Zugang sowie ein Tiefgaragenstellplatz stehen Ihnen zur Verfügung. Die Nebenkostenpauschale beinhaltet die Schlüsselübergabe durch den Hausmeister und die Kurkartenformulare. Haustiere sind in dieser Wohnung nicht erlaubt.
Genießen Sie Ihren Aufenthalt in dieser hellen 2-Raum-Ferienwohnung (48m²) im Erdgeschoss mit separatem Eingang. Die Wohnung befindet sich in bester Strandlage ? nur eine Minute bis zum feinen Ostseestrand.
Die Ausstattung umfasst einen Flachbild-TV, ein Radio mit CD-Player und einen DVD-Player sowie eine gut ausgestattete Küchenzeile mit 4-Plattenherd, Kühlschrank mit Frostfach, Mikrowelle, Geschirrspüler, Kaffeemaschine, Toaster und Wasserkocher. Ein Wintergarten bietet Ihnen einen herrlichen Blick auf den Ahlbecker Ostseestrand.
Die Inneneinrichtung ist harmonisch abgestimmt, und das Badezimmer verfügt über ein Fenster, WC und eine ebenerdige Dusche. WLAN ist inklusive, und im Flur sorgt eine Fußbodenheizung für zusätzlichen Komfort. Ein kostenfreier Tiefgaragenparkplatz steht ebenfalls zur Verfügung.
Die Küchenzeile verfügt über einen 4-Plattenherd, Mikrowelle, Geschirrspüler sowie Kaffeemaschine, Toaster und Wasserkocher. Der Kühlschrank hat ein großes Frostfach. Die harmonisch abgestimmte Inneneinrichtung umfasst Fliesen in Wohnküche, Schlafzimmer, Flur und Bad. Das Badezimmer ist mit Fenster, WC und ebenerdiger Dusche ausgestattet. Im Schlafzimmer finden Sie ein Doppelbett (2,0 m x 1,60 m) und einen Wäscheschrank.
Ein kostenfreier WLAN-Zugang sowie ein Tiefgaragenstellplatz stehen Ihnen zur Verfügung. Die Nebenkostenpauschale beinhaltet die Schlüsselübergabe durch den Hausmeister und die Kurkartenformulare. Haustiere sind in dieser Wohnung nicht erlaubt.
Genießen Sie Ihren Aufenthalt in dieser hellen 2-Raum-Ferienwohnung (48m²) im Erdgeschoss mit separatem Eingang. Die Wohnung befindet sich in bester Strandlage ? nur eine Minute bis zum feinen Ostseestrand.
Die Ausstattung umfasst einen Flachbild-TV, ein Radio mit CD-Player und einen DVD-Player sowie eine gut ausgestattete Küchenzeile mit 4-Plattenherd, Kühlschrank mit Frostfach, Mikrowelle, Geschirrspüler, Kaffeemaschine, Toaster und Wasserkocher. Ein Wintergarten bietet Ihnen einen herrlichen Blick auf den Ahlbecker Ostseestrand.
Die Inneneinrichtung ist harmonisch abgestimmt, und das Badezimmer verfügt über ein Fenster, WC und eine ebenerdige Dusche. WLAN ist inklusive, und im Flur sorgt eine Fußbodenheizung für zusätzlichen Komfort. Ein kostenfreier Tiefgaragenparkplatz steht ebenfalls zur Verfügung.
Vor Ort
Kurtaxe ist gesondert zu entrichten!
Kurtaxe ist gesondert zu entrichten!
Unsere Gästebewertungen Externe Bewertungen
Gesamte Ausstattung
-
Aktivität einrichtungen
-
Golf
-
Radfahren
-
-
Entfernungen
-
Zum Bahnhof750 m
-
Zum Bäcker200 m
-
Zum Geldautomaten/Bank200 m
-
Zum Golfplatz3,7 km
-
Zum Radweg10 m
-
Zum Restaurant100 m
-
Zum Schwimm-/Spaßbad1,7 km
-
Zum Strand50 m
-
Zum Supermarkt200 m
-
Zum Wanderweg10 m
-
Zum Zentrum200 m
-
Zur Badestelle/Gewässer50 m
-
Zur Bushaltestelle70 m
-
Zur Therme1,7 km
-
Zur Tourist-Information200 m
-
-
Grundeinrichtungen
-
Baujahr1896
-
Größe48 m²
-
Jahr renoviert2017
-
-
Kinder einrichtungen
-
Familienfreundlich
-
-
Serviceeinrichtungen
-
Backofen
-
Bettwäsche
-
Doppelbett
-
Dusche/WC
-
Fliesen-/Marmorboden
-
Fließend Wasser
-
Gefriermöglichkeit
-
Handtücher
-
Heizung
-
Haartrockner
-
Internet - WLAN
-
Kabel / Sat
-
Kaffeemaschine
-
Küche (offen)
-
Kühlschrank
-
Meerblick
-
Mikrowelle
-
Nichtraucher
-
Schlafzimmer
-
Spülmaschine
-
Tiere nicht erlaubt
-
Toaster
-
Toilettenpapier
-
TV
-
TV - Flachbild
-
Wasserkocher
-
-
Umliegende einrichtungen
-
Parkplatz
-
Tiefgarage
-
-
Unterkünfte
-
Allergikerfreundlich
-
Internet im öff. Bereich
-
Mit ÖPNV erreichbar
-
Nichtraucherhaus
-
Radfreundlich
-
Wanderfreundlich
-
Wintergarten
-
Wäscheservice
-
Kurzurlaub
Sie haben das ganze Jahr die Möglichkeit einen Kurzurlaub zu machen.
Prices and calendar
Kalender
Dauer
Personen
Preis
Zeitraum
- Ankunft
- Abreise
- Dauer
- 1 Woche
Personen
Keine Personen ausgewählt
Bitte beachten
Ankunftszeit wurde nicht ausgewählt.
Es wurden keine Personen ausgewählt.