Historisches Reetdachhaus mit Obstgarten nahe Strand
Strandweg - 17373 - Ueckermünde
Objekt Nr.: 530-313035
10 Personen
davon 2 Kinder (0-7 Jahre alt)
Historisches Reetdachhaus mit großem Obstgarten und Bauwagen nahe dem Haffstrand – ideal für Familien und Gruppen.
-
Schlafzimmer 4
-
Badezimmer 3
-
Wohnfläche 140 m²
-
Haustiere Nicht erlaubt
-
Kurzurlaub möglich Ja
-
Entfernung Wasser 200 m
-
Einkaufen 3.500 m
-
Sauna Ja
-
Internet Ja
-
Satelliten-/Kabel TV Ja
-
Kaminofen Ja
-
Eingezäunter Bereich Ja
-
Waschmaschine Ja
-
Geschirrspüler Ja
-
Nichtraucher Ja
-
Klimafreundlich Ja
Beschreibung
Historisches Reetdachhaus mit Bauwagen und großem Obstgarten, Denkmal ans Haff
Reetgedecktes Bauernhaus mit großem Obstgarten und direkter Nähe (2 min.) zum Haffstrand. Hier können bis zu 6 Erwachsene und 2 Kinder bis 7 Jahre ihren traumhaften Urlaub verbringen.
Weitere 1-2 Personen können im schwedenroten Bauwagen übernachten. Dieser steht Ihnen ab einer Buchung von 7 erwachsenen Personen kostenpflichtig zur Verfügung.
Das Kolonistenhaus aus der Zeit Friedrich des Großen ist zusammen mit Stallgebäude und dem Obstgarten als Ensemble unter Denkmalschutz gestellt und wurde von 2014 bis 2016 mit viel Liebe zum Detail und konsequent baubiologisch saniert. Die Lehm- und Kalkputze an den Wänden, das temperaturausgleichende Reetdach und die Wärmedämmung mit Hanfwolle sorgen für ein sehr ausgewogenes Raumklima.
Die historische Substanz bietet zu jeder Jahreszeit einen besonderen Rahmen für Ihren Urlaub, ganz gleich ob gemeinsam mit Freunden oder als Familie zusammen mit den Großeltern. Als Feriengast können sie nun die lange Geschichte des Hauses weiterschreiben, jeder Urlaub ein neues Kapitel.
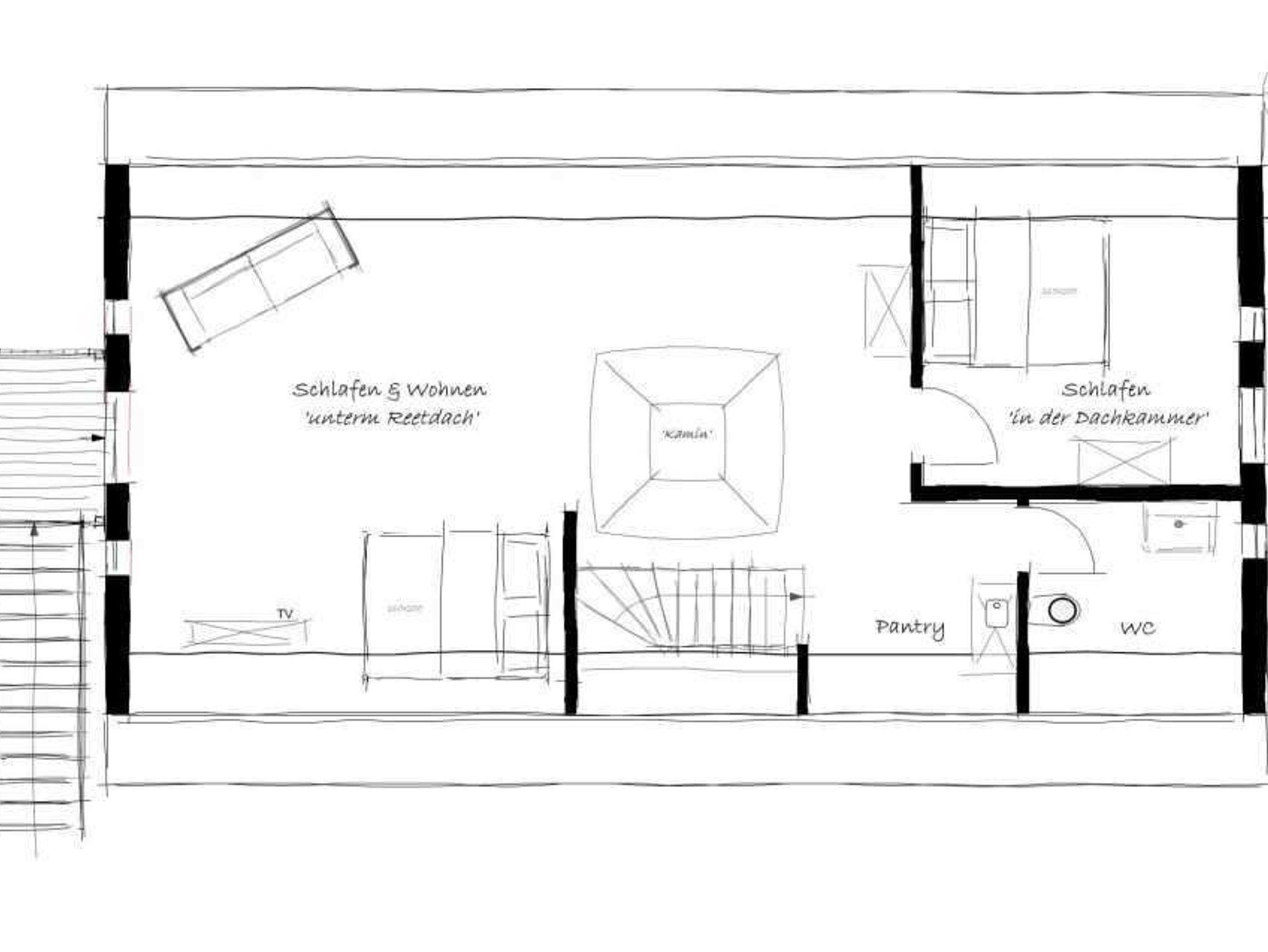
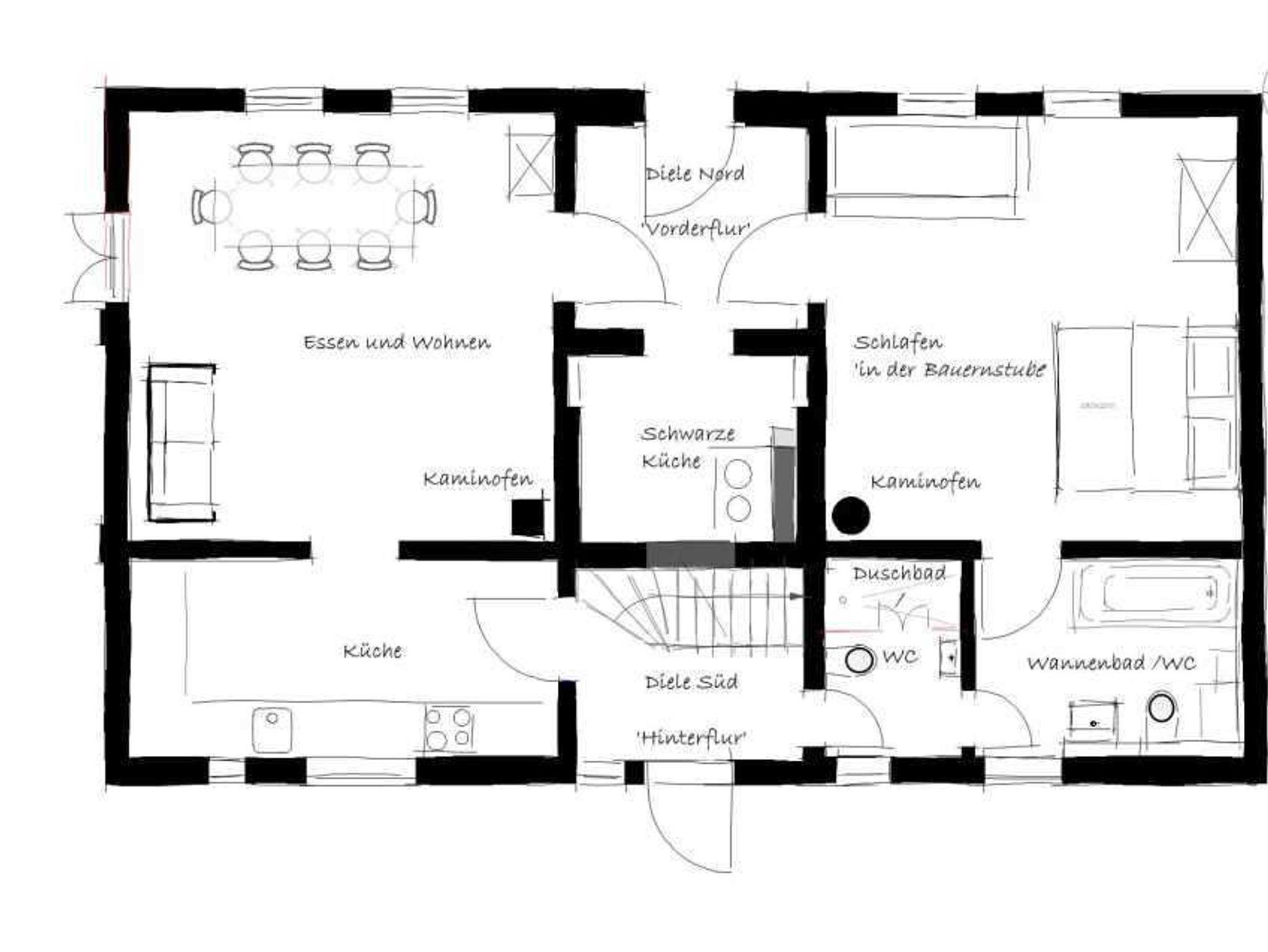
Auf 140 m² Wohnfläche erwarten Sie großzügige Aufenthaltsbereiche im Erdgeschoss und unter dem Dach. Zudem sorgen 3 separate Zimmer mit Doppelbetten für komfortable Schlaf- und Rückzugsmöglichkeiten für bis zu 6 Personen. Bei Bedarf gibt es nach Absprache noch Möglichkeiten zur Aufbettung für Kinder. Die Küche ist voll ausgestattet und der Esstisch groß, so dass auch ausgedehnten Schlemmereien nichts im Wege steht.
Zwei Kaminöfen sorgen für behagliche Wärme an kalten Tagen oder während der Winterzeit. Die Grundversorgung übernimmt aber eine Gaszentralheizung, so dass das Haus übers ganze Jahr durchgehend wohnlich ist. Spülmaschine, Waschmaschine und ein Zentralstaubsauger ergänzen den technischen Komfort. Im Sommer bietet der Garten (1700 m²) dann ausgiebige Sitz- und Aufenthaltsmöglichkeiten in Sonne und Schatten und lädt dazu ein, die Seele baumeln zu lassen.
Der Bauwagen ist komplett saniert und steht im Garten unter alten Obstbäumen. Auf 14 qm finden sie allen Komfort: ein Doppelbett (160x200), eine Küchenzeile mit Kühlschrank, Wasserkocher, Doppelherdplatte sowie ein kleines Bad mit Dusche und WC.
Die Dämmung und der Kaminofen ermöglichen auch Übernachtungen in den Übergangszeiten, eine separate Buchung in der Vor.und Nachsaison ist auf Anfrage möglich.
Die Saunabenutzung kann auf Wunsch kostenpflichtig hinzugebucht werden. Wünschen Sie dazu ein großes Saunatuch, können Sie dieses gern vor Ort: 4,- € pro Tuch/ pro Person dazubuchen.
Weitere 1-2 Personen können im schwedenroten Bauwagen übernachten. Dieser steht Ihnen ab einer Buchung von 7 erwachsenen Personen kostenpflichtig zur Verfügung.
Das Kolonistenhaus aus der Zeit Friedrich des Großen ist zusammen mit Stallgebäude und dem Obstgarten als Ensemble unter Denkmalschutz gestellt und wurde von 2014 bis 2016 mit viel Liebe zum Detail und konsequent baubiologisch saniert. Die Lehm- und Kalkputze an den Wänden, das temperaturausgleichende Reetdach und die Wärmedämmung mit Hanfwolle sorgen für ein sehr ausgewogenes Raumklima.
Die historische Substanz bietet zu jeder Jahreszeit einen besonderen Rahmen für Ihren Urlaub, ganz gleich ob gemeinsam mit Freunden oder als Familie zusammen mit den Großeltern. Als Feriengast können sie nun die lange Geschichte des Hauses weiterschreiben, jeder Urlaub ein neues Kapitel.
Auf 140 m² Wohnfläche erwarten Sie großzügige Aufenthaltsbereiche im Erdgeschoss und unter dem Dach. Zudem sorgen 3 separate Zimmer mit Doppelbetten für komfortable Schlaf- und Rückzugsmöglichkeiten für bis zu 6 Personen. Bei Bedarf gibt es nach Absprache noch Möglichkeiten zur Aufbettung für Kinder. Die Küche ist voll ausgestattet und der Esstisch groß, so dass auch ausgedehnten Schlemmereien nichts im Wege steht.
Zwei Kaminöfen sorgen für behagliche Wärme an kalten Tagen oder während der Winterzeit. Die Grundversorgung übernimmt aber eine Gaszentralheizung, so dass das Haus übers ganze Jahr durchgehend wohnlich ist. Spülmaschine, Waschmaschine und ein Zentralstaubsauger ergänzen den technischen Komfort. Im Sommer bietet der Garten (1700 m²) dann ausgiebige Sitz- und Aufenthaltsmöglichkeiten in Sonne und Schatten und lädt dazu ein, die Seele baumeln zu lassen.
Der Bauwagen ist komplett saniert und steht im Garten unter alten Obstbäumen. Auf 14 qm finden sie allen Komfort: ein Doppelbett (160x200), eine Küchenzeile mit Kühlschrank, Wasserkocher, Doppelherdplatte sowie ein kleines Bad mit Dusche und WC.
Die Dämmung und der Kaminofen ermöglichen auch Übernachtungen in den Übergangszeiten, eine separate Buchung in der Vor.und Nachsaison ist auf Anfrage möglich.
Die Saunabenutzung kann auf Wunsch kostenpflichtig hinzugebucht werden. Wünschen Sie dazu ein großes Saunatuch, können Sie dieses gern vor Ort: 4,- € pro Tuch/ pro Person dazubuchen.
Auf 140 m² Wohnfläche erwarten Sie großzügige Aufenthaltsbereiche im Erdgeschoss und unter dem Dach. Zudem sorgen 3 separate Zimmer mit Doppelbetten für komfortable Schlaf- und Rückzugsmöglichkeiten für bis zu 6 Personen. Bei Bedarf gibt es nach Absprache noch Möglichkeiten zur Aufbettung für Kinder. Die Küche ist voll ausgestattet und der Esstisch groß, so dass auch ausgedehnten Schlemmereien nichts im Wege steht.
Zwei Kaminöfen sorgen für behagliche Wärme an kalten Tagen oder während der Winterzeit. Die Grundversorgung übernimmt aber eine Gaszentralheizung, so dass das Haus übers ganze Jahr durchgehend wohnlich ist. Spülmaschine, Waschmaschine und ein Zentralstaubsauger ergänzen den technischen Komfort. Im Sommer bietet der Garten (1700 m²) dann ausgiebige Sitz- und Aufenthaltsmöglichkeiten in Sonne und Schatten und lädt dazu ein, die Seele baumeln zu lassen.
Ergänzend zum Ferienhaus können wir Ihnen noch einen schwedenroten Bauwagen als Übernachtungsmöglichkeit für 1-2 Personen anbieten. Der Wagen ist komplett saniert und steht im Garten unter alten Obstbäumen.
Auf 14 qm finden sie allen Komfort: ein Doppelbett (160x200), eine Küchenzeile mit Kühlschrank,Wasserkocher, Doppelherdplatte, sowie ein kleines Bad mit Dusche und WC. Ab einer Buchung von 7 Personen stellen wir ihnen den Bauwagen zur Verfügung.
Die Dämmung und der Kaminofen ermöglichen auch Übernachtungen in den Übergangszeiten, eine separate Buchung in der Vor- und Nachsaison ist auf Anfrage möglich.
Auf 140 m² Wohnfläche erwarten Sie großzügige Aufenthaltsbereiche im Erdgeschoss und unter dem Dach. Zudem sorgen 3 separate Zimmer mit Doppelbetten für komfortable Schlaf- und Rückzugsmöglichkeiten für bis zu 6 Personen. Bei Bedarf gibt es nach Absprache noch Möglichkeiten zur Aufbettung für Kinder. Die Küche ist voll ausgestattet und der Esstisch groß, so dass auch ausgedehnten Schlemmereien nichts im Wege steht.
Zwei Kaminöfen sorgen für behagliche Wärme an kalten Tagen oder während der Winterzeit. Die Grundversorgung übernimmt aber eine Gaszentralheizung, so dass das Haus übers ganze Jahr durchgehend wohnlich ist. Spülmaschine, Waschmaschine und ein Zentralstaubsauger ergänzen den technischen Komfort. Im Sommer bietet der Garten (1700 m²) dann ausgiebige Sitz- und Aufenthaltsmöglichkeiten in Sonne und Schatten und lädt dazu ein, die Seele baumeln zu lassen.
Ergänzend zum Ferienhaus können wir Ihnen noch einen schwedenroten Bauwagen als Übernachtungsmöglichkeit für 1-2 Personen anbieten.
Der Wagen ist komplett saniert und steht im Garten unter alten Obstbäumen. Auf 14 qm finden Sie allen Komfort: ein Doppelbett ( 160X200), eine Küchenzeile mit Kühlschrank, Wasserkocher, Doppelherdplatte sowie ein kleines Bad mit Dusche und WC. Sie können den Bauwagen zusammen mit unserem Ferienhaus buchen, dann haben sie insgesamt Platz für bis zu 8 Erw. die Dämmung und der Kaminofen ermöglichen auch Übernachtungen in den Übergangszeiten, eine separate Buchung in der Vor- und Nachsaison ist auf Anfrage möglich.
Zwei Kaminöfen sorgen für behagliche Wärme an kalten Tagen oder während der Winterzeit. Die Grundversorgung übernimmt aber eine Gaszentralheizung, so dass das Haus übers ganze Jahr durchgehend wohnlich ist. Spülmaschine, Waschmaschine und ein Zentralstaubsauger ergänzen den technischen Komfort. Im Sommer bietet der Garten (1700 m²) dann ausgiebige Sitz- und Aufenthaltsmöglichkeiten in Sonne und Schatten und lädt dazu ein, die Seele baumeln zu lassen.
Ergänzend zum Ferienhaus können wir Ihnen noch einen schwedenroten Bauwagen als Übernachtungsmöglichkeit für 1-2 Personen anbieten. Der Wagen ist komplett saniert und steht im Garten unter alten Obstbäumen.
Auf 14 qm finden sie allen Komfort: ein Doppelbett (160x200), eine Küchenzeile mit Kühlschrank,Wasserkocher, Doppelherdplatte, sowie ein kleines Bad mit Dusche und WC. Ab einer Buchung von 7 Personen stellen wir ihnen den Bauwagen zur Verfügung.
Die Dämmung und der Kaminofen ermöglichen auch Übernachtungen in den Übergangszeiten, eine separate Buchung in der Vor- und Nachsaison ist auf Anfrage möglich.
Auf 140 m² Wohnfläche erwarten Sie großzügige Aufenthaltsbereiche im Erdgeschoss und unter dem Dach. Zudem sorgen 3 separate Zimmer mit Doppelbetten für komfortable Schlaf- und Rückzugsmöglichkeiten für bis zu 6 Personen. Bei Bedarf gibt es nach Absprache noch Möglichkeiten zur Aufbettung für Kinder. Die Küche ist voll ausgestattet und der Esstisch groß, so dass auch ausgedehnten Schlemmereien nichts im Wege steht.
Zwei Kaminöfen sorgen für behagliche Wärme an kalten Tagen oder während der Winterzeit. Die Grundversorgung übernimmt aber eine Gaszentralheizung, so dass das Haus übers ganze Jahr durchgehend wohnlich ist. Spülmaschine, Waschmaschine und ein Zentralstaubsauger ergänzen den technischen Komfort. Im Sommer bietet der Garten (1700 m²) dann ausgiebige Sitz- und Aufenthaltsmöglichkeiten in Sonne und Schatten und lädt dazu ein, die Seele baumeln zu lassen.
Ergänzend zum Ferienhaus können wir Ihnen noch einen schwedenroten Bauwagen als Übernachtungsmöglichkeit für 1-2 Personen anbieten.
Der Wagen ist komplett saniert und steht im Garten unter alten Obstbäumen. Auf 14 qm finden Sie allen Komfort: ein Doppelbett ( 160X200), eine Küchenzeile mit Kühlschrank, Wasserkocher, Doppelherdplatte sowie ein kleines Bad mit Dusche und WC. Sie können den Bauwagen zusammen mit unserem Ferienhaus buchen, dann haben sie insgesamt Platz für bis zu 8 Erw. die Dämmung und der Kaminofen ermöglichen auch Übernachtungen in den Übergangszeiten, eine separate Buchung in der Vor- und Nachsaison ist auf Anfrage möglich.
Vor Ort
Die vereinbarte Kaution von 200 EUR ist bis spätestens 4 Wochen vor Reiseantritt zusammen mit der Restzahlung (siehe § 7) anzuweisen. Die Rückerstattung erfolgt innerhalb von 10 Tagen nach Ihrer Abreise auf Ihr Bankkonto, sofern das Mietobjekt wieder mängelfrei an uns übergeben wurde. Während der Mietzeit entstandene Schäden (dazu zählt u. a. auch ein stark erhöhter Reinigungsaufwand) werden mit dem hinterlegten Kautionsbetrag verrechnet. Bei Schäden, die den Kautionsbetrag überschreiten, erfolgt keine Rückerstattung. Zum weiteren Ausgleich des Schadens wird dann eine entsprechende Nachforderung an den Mieter gestellt.
Die vereinbarte Kaution von 200 EUR ist bis spätestens 4 Wochen vor Reiseantritt zusammen mit der Restzahlung (siehe § 7) anzuweisen. Die Rückerstattung erfolgt innerhalb von 10 Tagen nach Ihrer Abreise auf Ihr Bankkonto, sofern das Mietobjekt wieder mängelfrei an uns übergeben wurde. Während der Mietzeit entstandene Schäden (dazu zählt u. a. auch ein stark erhöhter Reinigungsaufwand) werden mit dem hinterlegten Kautionsbetrag verrechnet. Bei Schäden, die den Kautionsbetrag überschreiten, erfolgt keine Rückerstattung. Zum weiteren Ausgleich des Schadens wird dann eine entsprechende Nachforderung an den Mieter gestellt.
Unsere Gästebewertungen Externe Bewertungen
Gesamte Ausstattung
-
Aktivität einrichtungen
-
Radfahren
-
Reiten
-
-
Entfernungen
-
Zum (Kur-)Park/Wald300 m
-
Zum Arzt3,5 km
-
Zum Bahnhof4,5 km
-
Zum Bäcker400 m
-
Zum Geldautomaten/Bank3,5 km
-
Zum Golfplatz35 km
-
Zum Krankenhaus/Klinik9 km
-
Zum Nachbarn100 m
-
Zum Radweg200 m
-
Zum Restaurant300 m
-
Zum Strand200 m
-
Zum Supermarkt3,5 km
-
Zum Zentrum5 km
-
Zur Autobahn40 km
-
Zur Badestelle/Gewässer200 m
-
Zur Bushaltestelle300 m
-
Zur Tourist-Information5 km
-
-
Grundeinrichtungen
-
Baujahr1737
-
Größe140 m²
-
Jahr renoviert2016
-
-
Kinder einrichtungen
-
Familienfreundlich
-
Kleinkinderausstattung
-
-
Serviceeinrichtungen
-
Allergikerger. (tierfrei)
-
Backofen
-
Bad/WC
-
BADEWANNE
-
Balkon
-
Bettwäsche
-
Bügelbrett
-
Doppelbett
-
Dusche/WC
-
Gefriermöglichkeit
-
Gäste-WC
-
Handtücher
-
Heizung
-
Hochstuhl
-
Holz- oder Parkettböden
-
Haartrockner
-
Internet - WLAN
-
Kabel / Sat
-
Kaffeemaschine
-
Kamin/-ofen
-
Kissen
-
Kühlschrank
-
Mehrere Schlafzimmer
-
Nichtraucher
-
Rauchmelder
-
Reinigungsutensilien
-
Reise-/Kinderbett
-
Sauna
-
Schreibtisch
-
Separate Küche
-
Seperates Grundstück
-
Spülmaschine
-
Terrasse
-
Tiere nicht erlaubt
-
Toaster
-
Toilettenpapier
-
TV
-
TV - Flachbild
-
Waschmaschine
-
Wasserkocher
-
Zu fordern
-
-
Umliegende einrichtungen
-
Fahrradunterstellmöglichkeit
-
Garten zur Nutzung
-
Parkplatz
-
Sitzecke im Garten
-
Umzäuntes Grundstrück
-
-
Unterkünfte
-
100% Ökostrom
-
Allergikerfreundlich
-
Aufenthaltsraum
-
Bewusste Müllvermeidung
-
Energiespar-Beleuchtung
-
Fahrradraum abschließbar
-
Gemeinschaftssauna
-
Grillmöglichkeit
-
Internet im öff. Bereich
-
Klasse A Haushaltsgeräte
-
Kontaktloser Checkin/Checkout
-
Mit ÖPNV erreichbar
-
Nachhaltige Bauweise
-
Nichtraucherhaus
-
Radfreundlich
-
Sauna
-
Wanderfreundlich
-
Wäscheservice
-
Ökologische Reinigungsmittel
-
Kurzurlaub
Sie haben das ganze Jahr die Möglichkeit einen Kurzurlaub zu machen.
Prices and calendar
Kalender
Dauer
Personen
Preis
Zeitraum
- Ankunft
- Abreise
- Dauer
- 1 Woche
Personen
Keine Personen ausgewählt
Bitte beachten
Ankunftszeit wurde nicht ausgewählt.
Es wurden keine Personen ausgewählt.