Moderne Ferienwohnung mit Meerblick in Prora

Südstrand - 18609 - Binz (Ostseebad) Ot Prora

Objekt Nr.: 552-220845
Großzügige Ferienwohnung in Prora mit 3 Schlafzimmern, 2 Terrassen und Meerblick, nur 50 m vom Strand entfernt.
  • Schlafzimmer 3
  • Badezimmer 2
  • Wohnfläche 125 m²
  • Haustiere 1
  • Kurzurlaub möglich Ja
  • Einkaufen 800 m
  • Internet Ja
  • Geschirrspüler Ja
  • Nichtraucher Ja
  • Ladestation für Elektroauto Ja

Beschreibung

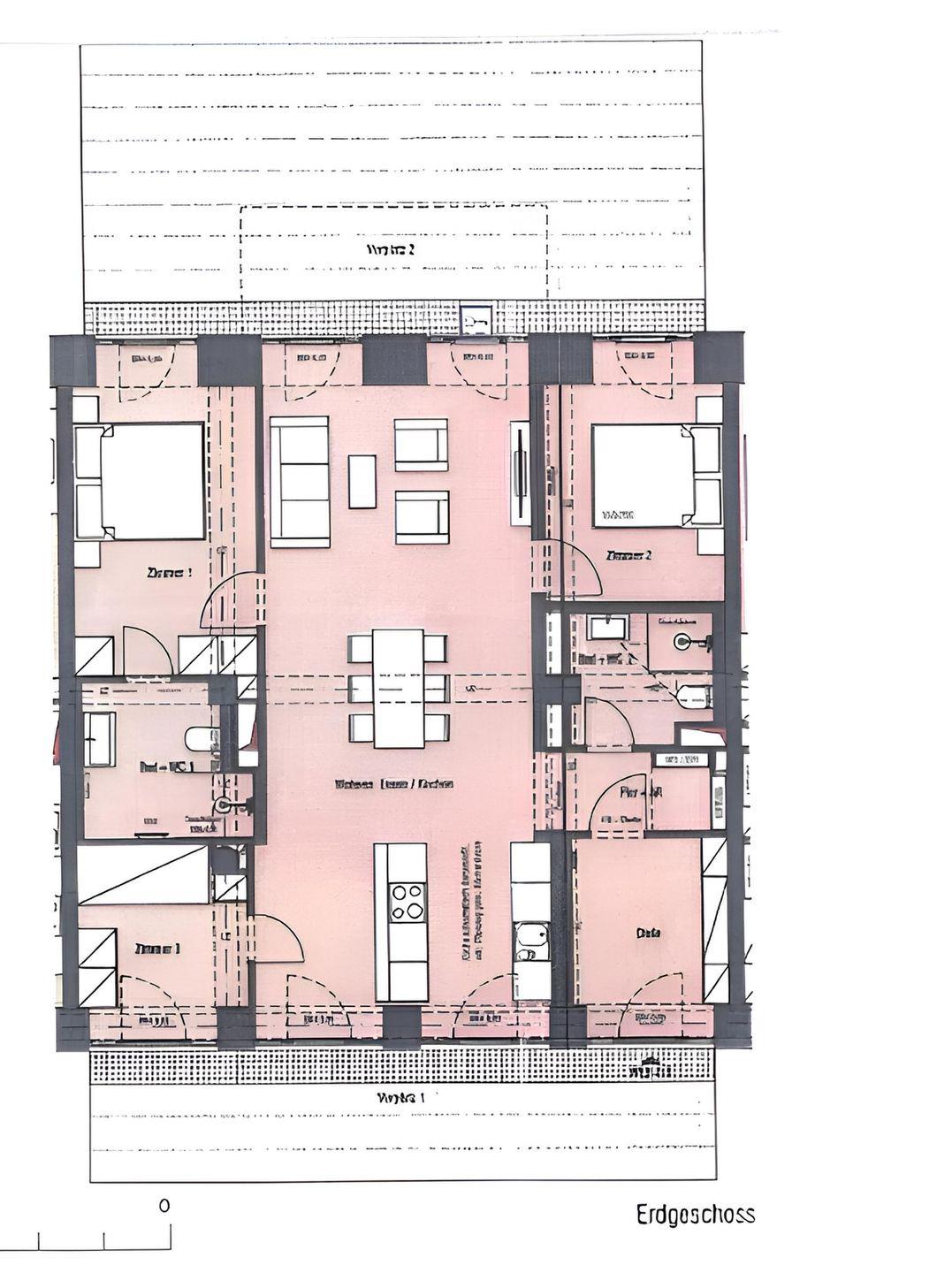
FeWo TREIBsand: 125m² Ferienwohnung mit 3 Schlafzimmern, 2 Terrassen & Meerblick

Im Haus Mönchgut erwartet Sie ein lichtdurchflutetes Refugium zwischen Dünen und Meer. Drei behagliche Schlafzimmer und zwei sonnige Terrassen – eine mit eigenem Strandkorb – schenken Raum für Ruhe und Augenblicke voller Leichtigkeit. Der Wohnbereich öffnet sich weit zur Natur, während die voll ausgestattete Küche und moderne Bäder für Komfort sorgen. Ein Ort, an dem Küstenwind, Wärme und Stille zu Ihrem Urlaubszuhause werden.

Haus Mönchgut, 1 Parkplatz mit E-Ladestation Die Räume im Einzelnen: - Schlafzimmer 1: Doppelbett (180x200), TV, Kleideschrank - Badezimmer 1: Regendusche, WC, Haartrockner - Schlafzimmer 2: Doppelbett (160x200), TV, Kleideschrank - Badezimmer 2: Regendusche, WC, Haartrockner - Schlafzimmer 3: Schlafsofa - lichtdurchfluteter Wohn-/Essraum - Wohnzimmer: Sofa, TV, Zugang zu den 2 Terrassen - Terrasse (Landseite) mit dem Strandkorb - Vollausgestattete Küche, Kaffeemaschine mit Filter - Aussicht: Dünenlandschaft, Meer - Fußbodenheizung - Internetanschluss (WLAN) inkl. - Staubsauger in der Wohnung Anmerkungen - Haustiere sind willkommen! - Rauchen ist nicht gestattet Zusätzliche Dienstleistungen, die vor Ort verfügbar sind und bei Bedarf beim Check-In oder später gebucht werden können: 1. Extra Bettwäsche 2. Extra Handtücher 3. Bettwäsche und Handtücher Wechsel während Ihres Aufenthaltes 4. Kinder-Hochstuhl 5. Kinder-Reisebett 6. Strandtücher 7. Zwischenreinigung in größeren Mengen, bitten wir vorab, bei Ihrer Buchung, um eine entsprechende Information. - Kosmetikspiegel - Hochwertiges Schlafsofa - hochwertige Siematic-Einbauküche

Raumaufteilung

  • Schlafzimmer, 2 Personen
    • Kleiderschrank
    • Doppelbett
  • Schlafzimmer, 2 Personen
    • Kleiderschrank
    • Doppelbett
  • Schlafzimmer, 1 Person
    • Einzelcouch

Unsere Gästebewertungen Externe Bewertungen

Keine eigene Gästebewertungen
4,8
17 externe Bewertungen
4,8
Februar 2026
5,0
Allgemein:
Was soll man sagen…Waren das vierte Mal in Prora, einfach nur top! ... Super Service, Ambiente und Lage. Das Team beantwortet auch im größten Stress jede Frage. Macht weiter so! weiterlesen
5,0
Allgemein:
Einfach top!
4,7
5,0
Allgemein:
Eine tolle Wohnung mit guter Austattung. In der Küche fehlte nichts. Sehr schön mit den beiden Terassen
5,0
Allgemein:
Super schöne und gut ausgestattete Ferienwohnung am traumhaften Strand von Prora. Für vier Personen mit zwei Hunden ideal. Mit fünf Personen (weiteres Zimmer mit einem Schlafplatz ist vorhanden) wäre es uns persönlich etwas zu eng gewesen. Dieses extra Zimmer haben wir jedoch gut nutzen können für ... unsere leeren Koffer, Hunde- und Fahrradutensilien etc. Besonders schön sind die zwei Terrassen der Wohnung. So konnten wir die Sonne den ganzen Tag genießen - insbesondere an den noch etwas kühleren Tagen (bei uns war es Anfang Mai). Danke auch an das nette Team von Prora.com, die vor Ort immer ansprechbar waren. Wir kommen auf jeden Fall nächstes Jahr wieder! weiterlesen
4,7
Allgemein:
Eine sehr schön eingerichtet Wohnung, alles da was macht braucht. ... Wir kommen gerne wieder. weiterlesen
4,0
Allgemein:
Super Wohnung. Haben uns sehr wohl gefühlt.
5,0
Allgemein:
Super Lage ... Wetter war toll weiterlesen
5,0
Allgemein:
Wunderbare Wohnung,kein Wunsch bleibt offen. ... Es währe einer der schönsten Strände auf Rügen,würde man ihn vom Seegrass befreien.Dieser stinkt erbärmlich und macht das Baden im Meer unmöglich. Daher werden wir nicht mehr unseren Urlaub in Prora verbringen. MfG W.Wedekind weiterlesen
4,7
Allgemein:
Vorab es war schön wie immer! Besonders der Service vor Ort ist immer lobend zu erwähnen. ... Zur Wohnung Treibsand ein paar kleine Hinweise. - WC-Deckel sollten nicht lose sein - Tiefkühlschrank regelmäßig abtauen, wenn man die Fächer vor lauter Eis nicht mehr aufbekommt macht ein Tiefkühlschrank wenig Sinn - der Kühlschrank ist leider für die mögliche Anzahl an Personen sehr klein, ein zusätzlicher Getränkekühlschrank wäre sehr hilfreich weiterlesen
4,7
Allgemein:
Die Wohnung ist sehr gemütlich eingerichtet. Wir hatten eine schöne Zeit in Prora. ... Anmerkung: Die Fenster waren leicht verdreckt. Bis das Warmwasser im Bad kam, hat es etwas gedauert. weiterlesen
5,0
4,7
Allgemein:
Sehr schöne helle Wohnung. ... Fanden schön das man eine Terrasse nach vorne und hinten hatten. Der Hund hat sich auch sehr wohl bei der Fußboden Heizung gefühlt :) Gerne wieder ?? weiterlesen
5,0
Allgemein:
Die Wohnung ist außergewöhnlich und liebevoll eingerichtet, die Küche ist top ausgestattet, die Auswahl an Literatur überlegt. In jeder Ecke gibt es etwas Schönes zu sehen und zu entdecken. Vielen Dank für den tollen Aufenthalt, wir haben es sehr genossen. Einfach wundervoll! ... Wir haben uns sehr wohlgefühlt und kommen gern wieder. Insgesamt sehr zu empfehlen. weiterlesen
4,7
5,0
Allgemein:
Sehr schöne Wohnung, alles ist vorhanden und wir würden es immer weiter Empfehlen.

Gesamte Ausstattung

  • Aktivitäten

    • Radfahren
  • Bad

    • Anzahl der Duschen
      2
    • Dusche
    • Gäste-WCs
      1
    • Haartrockner
    • Waschbecken
    • WC
  • Basic

    • Kinder willkommen
    • Nichtraucher
    • Quadratmeter
      125 m²
    • Zimmer
      4
  • Draußen

    • Anzahl der Parkplätze
      1
    • Aufladen von Elektroautos
    • Gartenmöbel
    • Privater P-Platz
    • Sonnenschirm
    • Terrasse
  • Entfernung

    • Entfernung Einkauf
      800 m
    • RestaurantEntfernung
      500 m
    • Strandentfernung
      50 m
  • Küche

    • Backofen
    • Gefrierfach
    • Kaffeemaschine
    • Kochutensilien
    • Küche
    • Kühlschrank
    • Microwelle
    • Spülmaschine
    • Teller
    • Toaster
    • Wasserkocher
  • Unterkunft

    • Anrichte
    • Anzahl der Fernseher
      3
    • Betten
      5
    • Doppelbetten
      2
    • Esstisch
    • Esszimmer
    • Fliegengitter
    • Fußbodenheizung
    • Heizung
    • Herd
    • Internet
    • Jalousie
    • Kleiderschrank
    • Radio
    • Rauchmelder
    • Schlafsofas für eine Person
      1
    • Schminkspiegel
    • Sofa
    • Spiegel
    • Staubsauger
    • TV
    • Warmes Wasser
    • WLAN
    • Wäscheständer

Kurzurlaub

Es besteht eine begrenzte Möglichkeit das ganze Jahr einen Kurzurlaub zu machen, typischerweise ausserhalb der Hochsaison.

Prices and calendar

Kalender

Ankunft
Nächster Monat
  • April 2026
    MoDiMiDoFrSaSo
    1412345
    156789101112
    1613141516171819
    1720212223242526
    1827282930
    19
  • Mai 2026
    MoDiMiDoFrSaSo
    18123
    1945678910
    2011121314151617
    2118192021222324
    2225262728293031
    23
   Verfügbarkeit am ausgewählten Datum prüfen
Frei
Nicht frei
   Ankunft möglich
Dauer
Personen

Preis

Zeitraum
Ankunft
Abreise
Dauer
1 Woche
Personen
Keine Personen ausgewählt

Bitte beachten

Ankunftszeit wurde nicht ausgewählt.
Es wurden keine Personen ausgewählt.
Vertrags- und Mietbedingungen