Moderne Ferienwohnung mit Ostseeblick und Strandnähe

Südstrand - 18609 - Binz (Ostseebad) Ot Prora

Objekt Nr.: 552-220849
Moderne Maisonette-Ferienwohnung mit Meerblick, zwei Balkonen und direktem Strandzugang in Binz-Prora.
  • Schlafzimmer 2
  • Badezimmer 2
  • Wohnfläche 96 m²
  • Haustiere Nicht erlaubt
  • Kurzurlaub möglich Ja
  • Einkaufen 800 m
  • Internet Ja
  • Satelliten-/Kabel TV Ja
  • Geschirrspüler Ja
  • Nichtraucher Ja
  • Ladestation für Elektroauto Ja

Beschreibung

FeWo Sunrise: Moderne 96m² Maisonette mit Ostseeblick, 2 Balkonen

Im Haus Zudar erwartet dich eine helle Ferienwohnung nur 50 m vom Meer entfernt. Zwei Schlafzimmer mit weiten Blicken zur Ostsee und zur stillen Binnenseite, ein offener Wohn- und Essbereich mit Panoramafenstern und ein Balkon über den Dünen schaffen Raum für ruhige Momente. Moderne Küche, zwei Bäder, WLAN und warme Böden begleiten deinen Aufenthalt – und der Strand liegt fast vor der Tür.

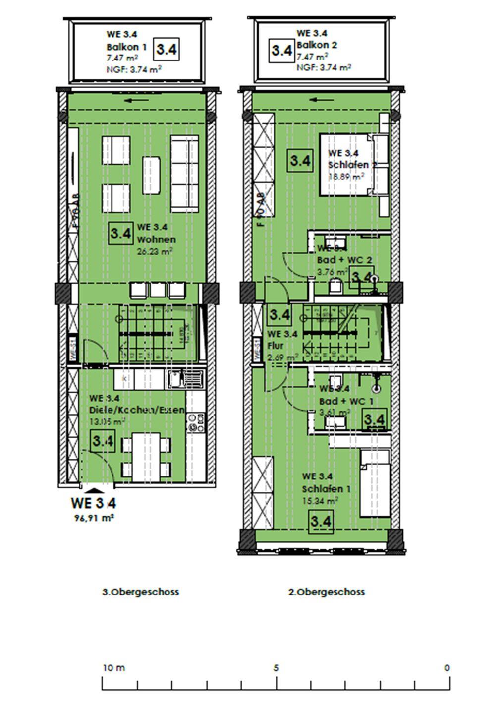
Haus Zudar, 1 Parkplatz mit E-Ladestation Die Räume im Einzelnen: - Schlafzimmer 1: Doppelbett (180 x 200), Kleiderschrank, Kommode, Smart-TV, Blick Binnenseite, Plissees - Schlafzimmer 2: Doppelbett (180 x 200), Kleiderschrank, Kommode, Smart-TV, Panoramafenster mit Ausgang zum Balkon, Blick auf die Ostsee - Badezimmer 1: Regendusche, WC, Handtuchhalter, Haartrockner - Badezimmer 2: Regendusche, WC, Handtuchhalter, Haartrockner - Wohnbereich/Essbereich: Ledercouch mit Tisch, 2 Lederschaukelsessel, Esstisch mit 4 Stühlen, Panoramafenster, Smart-TV, Ausgang zum Balkon - Vollausgestattete Küche: Krups-Kaffeevollautomat und Kaffeemaschine mit Filter - Aussicht: Dünenlandschaft, Meer - Internetanschluss (WLAN 100 MB) kostenfrei - Fußbodenheizung - Waschmaschine im Abstellraum Herzlich Willkommen Ein Plätzchen am Meer zu finden, an dem man die Seele baumeln lassen kann - nicht mehr und nicht weniger, wünschen sich doch alle im Urlaub. Blaues Wasser, weiße Strände, grünes Hinterland, so logieren Sie in einem traumhaft gestalteten Apartment, an der Ostküste Rügens, mit nur wenigen Schritten zum Meer. Die Ferienwohnung, im 3. Obergeschoss des Hauses Zudar liegend, ist eine moderne, mit 2 Schlafzimmern und 2 Bädern, ausgestattete Nichtraucherwohnung. Schon wenn Sie in die 96 m² große Wohnung eintreten, fühlen Sie sich wie im Urlaub. Sie werden gleich von einer modernen, sehr hochwertigen Küche, mit kleinem Tresen und 2 Barstühlen, in Empfang genommen. Wenn Sie Ihren Blick weiter geradeaus, Richtung Wohnbereich, schweifen lassen, haben Sie einen super Panoramablick auf die Ostsee. Der großzügige Balkon mit Sitzmöglichkeit für bis zu 4 Leuten, lädt zum Verweilen ein. Durch den seitlichen Sichtschutz sind Sie bestens geschützt vor ungewollten Blicken. Und sollte es abends ein wenig kühler werden, lädt der gemütliche Wohn-Essbereich Sie ein, Ihre Seele baumeln zu lassen. Im Untergeschoss finden Sie die 2 Schlafzimmer mit anliegenden Badezimmern, so dass ungestört geschlafen, und schon mal von einem unvergesslichen Urlaub geträumt werden kann. Der große Balkon im Untergeschoss lässt Sie das Meeresrauschen hören und die frische Ostseeluft um Ihre Nase wehen. Das Haus "Zudar" ist eines von 4 sogenannten Liegehäusern im Block III in Prora, welches unser bis hierher neustes "Strandjuwel" ist. Abweichend von den Regelhäusern gibt es hier eine besonders offene Gestaltung, mit einer modernen und transparenten Glasfassade zur Ostsee, sowie einer durchgängigen Balkonanlage. Anmerkungen - Haustiere sind nicht erlaubt. - Rauchen ist nicht gestattet. Zusätzliche Dienstleistungen, die vor Ort verfügbar sind und bei Bedarf beim Check-In oder später gebucht werden können: 1. Extra Bettwäsche 2. Extra Handtücher 3. Bettwäsche und Handtücher Wechsel während Ihres Aufenthaltes 4. Kinder-Hochstuhl 5. Kinder-Reisebett 6. Strandtücher 7. Zwischenreinigung In größeren Mengen bitten wir vorab, um eine entsprechende Information. Alle Fernsehgeräte sind Netflix tauglich Balkon 1: Esstisch mit 4 Stühlen Balkon 2: 2 Lounge - Sessel

Raumaufteilung

  • Schlafzimmer, 2 Personen
    • Kleiderschrank
    • Doppelbett
  • Schlafzimmer, 2 Personen
    • Kleiderschrank
    • Doppelbett

Unsere Gästebewertungen Externe Bewertungen

Keine eigene Gästebewertungen
4,7
8 externe Bewertungen
4,3
Allgemein:
Wir waren zu dritt in dieser Wohnung. Eine schöne große Unterkunft mit Blick gen Ostsee. Die elektrischen Geräte funktionierten einwandfrei und hochwertigen Utensilien (Porzellan von Kahla, Besteck von WMF) für die Küche waren ausreichend vorhanden. Fazit, wir haben einen schönen Urlaub verbracht.
4,7
Allgemein:
Eine sehr schöne Unterkunft und ruhige Lage....immer wieder gern.
5,0
5,0
Allgemein:
Wow, ist das mal eine tolle und charmante Ferienwohnung! Rundherum zum Wohlfühlen. Durch die Fußbodenheizung war es auch an recht kühlen Tagen sehr gemütlich. ... Die Fewo Sunrise besticht durch ihre moderne, sehr geschmackvolle und sehr hochwertige Einrichtung. Durch die bodentiefen Fenster über die gesamte Zimmerbreite sind die Räumlichkeiten in beiden Etagen angenehm hell. Natürlich waren die Fenster gut gedämmt und mit Vorhängen abdunkelbar, so dass wir sehr gut geschlafen haben. Dazu haben auch die große und äußerst bequeme Matratze (Boxspringmatratze) und die großen Kopfkissen beigetragen. Die dezent ausgewählte Bettwäsche war angenehm weich und duftend, so dass wir uns sofort wie zu Hause gefühlt haben. Sowohl die Möbel als auch alle elektronischen Geräte, Geschirr und übriges Haushaltequipment sind erstklassig und sehr stilvoll. Des Weiteren hat uns sehr gut gefallen, dass beide Balkone mit ansprechenden Sitzmöbeln und Tischen mit exquisiten schieferartigen Platten ausgestattet waren. Für gelegentliche Regentage ist in der Fewo mit drei großen Fernsehern mit großer Programmvielfalt, Videotext, Amazon-Prime-Video, YouTube etc. vorgesorgt. Man kann also auch getrennt fernsehen, wenn man dies will. Last but not least haben uns die komfortablen und erstklassigen Bäder begeistert. Die Duschen verfügen über einen ansprechenden, ebenfalls schieferarten Boden, der angenehm rutschfest ist (nicht zu unterschätzen!) und zusätzliche Regenwaldduschen. Alles in allem haben wir den Komfort und die geschmackvolle sowie hochwertige Einrichtung sehr genossen und werden sicher bald genau diese Fewo in Prora wieder buchen. weiterlesen
4,0
Allgemein:
Wohnung war bei Ankunft kalt . ... Im Bad fehlte Ablagefläche und ein Kosmetikspiegel. weiterlesen
4,7
4,7
Allgemein:
Hallo, die Wohnung war im Großen und Ganzen wirklich toll. Was wir vermisst haben, war mehr Funktionalität. Es fehlt vor allem in den Bädern an Abstellmöglichkeiten. Ein Seifenspender war da, aber kein Becher für die Zahnbürsten. Alle Kosmetik musste man in den Schubladen unterm Waschtisch verstauen, was natürlich schön ist, aber das ein oder andere möchte man ja doch lieber draußen stehen haben. Handtuchhalter sind nicht ausreichend, den Handtuchhalter zwischen Waschbecken und Klo empfanden wir als sehr unhygienisch. In den Schlafzimmern fehlt eine Hakenleiste und/oder ein zweiter Stuhl. Als Erwachsener möchte ich meine Kleidung gerne auf Augenhöhe hängen haben, erst recht wenn die Bügel so speziell sind. Der Wäscheständer im Abstellraum sollte bitte größer ausfallen. Die Vorhänge lassen leider alles Licht rein und halten auch nicht die Wärme ab, was bei dem fantastischen Wetter, welches wir hatten, zu tropischen Temperaturen führte, früh ab Sonnenaufgang. VG Ulrike Jockel
5,0
Allgemein:
Wir waren sehr zufrieden u.werden diese Fewo bestimmt wieder buchen. Das einzige was uns als Verbesserung einfällt: es würde von Vorteil wenn das Schlafzimmer ( Meerseite) besser abgedunkelt werden könnte...ansonsten war alles prima und wir haben uns sehr wohl gefühlt.

Gesamte Ausstattung

  • Aktivitäten

    • Radfahren
  • Bad

    • Dusche
    • Haartrockner
    • WC
  • Basic

    • Anzahl der Stockwerke
      2
    • Kinder willkommen
    • Nichtraucher
    • Quadratmeter
      96 m²
    • Zimmer
      3
  • Draußen

    • Aufladen von Elektroautos
    • Privater P-Platz
  • Entfernung

    • Entfernung Einkauf
      800 m
    • RestaurantEntfernung
      500 m
    • Strandentfernung
      50 m
  • Küche

    • Backofen
    • Gefrierfach
    • Kaffeemaschine
    • Küche
    • Kühlschrank
    • Spülmaschine
    • Toaster
    • Wasserkocher
  • Unterkunft

    • Aufzug
    • Balkon
    • Betten
      4
    • Bügelbrett
    • Bügeleisen
    • Digitales Fernsehen
    • Doppelbetten
      2
    • Esstisch
    • Fußbodenheizung
    • Heizung
    • Internet
    • Kleiderschrank
    • Rauchmelder
    • Safe
    • Schminkspiegel
    • Staubsauger
    • TV
    • Warmes Wasser
    • Waschmaschine
    • WLAN
    • Wäscheständer

Kurzurlaub

Es besteht eine begrenzte Möglichkeit das ganze Jahr einen Kurzurlaub zu machen, typischerweise ausserhalb der Hochsaison.

Prices and calendar

Kalender

Ankunft
Nächster Monat
   Verfügbarkeit am ausgewählten Datum prüfen
Frei
Nicht frei
   Ankunft möglich
Dauer
Personen

Preis

Zeitraum
Ankunft
Abreise
Dauer
1 Woche
Personen
Keine Personen ausgewählt

Bitte beachten

Ankunftszeit wurde nicht ausgewählt.
Es wurden keine Personen ausgewählt.
Vertrags- und Mietbedingungen