Familienfreundliche Ferienwohnung mit Meerblick

Südstrand - 18609 - Binz (Ostseebad) Ot Prora

Objekt Nr.: 552-220891
Gemütliche Ferienwohnung Ostseebrise mit Terrasse und Meerblick in Prora, nur 100 m vom Strand entfernt.
  • Schlafzimmer 2
  • Badezimmer 1
  • Wohnfläche 72 m²
  • Haustiere Nicht erlaubt
  • Kurzurlaub möglich Ja
  • Entfernung Wasser 100 m
  • Einkaufen 800 m
  • Sauna Ja
  • Internet Ja
  • Geschirrspüler Ja
  • Nichtraucher Ja
  • Ladestation für Elektroauto Ja

Beschreibung

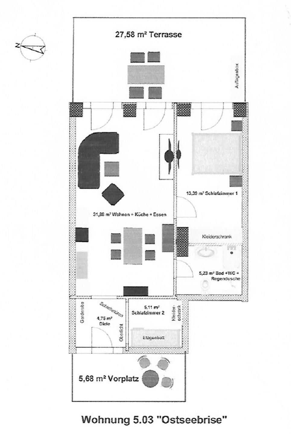
FeWo Ostseebrise: Familienfreundliche 72 m² FeWo mit Terrasse & 2 Schlafzimmern

Im Haus Arkona erwartet Sie eine liebevoll eingerichtete Ferienwohnung, nur 100 m vom Meer entfernt. Ein Schlafzimmer mit Doppelbett und ein Zimmer mit Etagenbett bieten Platz für kleine und große Gäste. Der Wohnbereich führt auf eine Terrasse mit Blick auf die Dünen. Fußbodenheizung, WLAN und eine moderne Küche sorgen für Komfort. Zur Wohnung gehören eine Waschmaschine, ein Parkplatz mit E-Ladestation sowie die Sky-Sauna mit Dachterrasse und Ostseeblick.

Haus Arkona, 1 Parkplatz mit E-Ladestation Die Räume im Einzelnen: - Schlafzimmer 1, Doppelbett (180x200), TV - Schlafzimmer 2, 1 Etagenbett (90x200) - Badezimmer: Regendusche, Haartrockner, WC - Wohnzimmer: Schlafsofa, TV (Netflix mit eigenen Zugangsdaten möglich),Zugang zur Terrasse - Terrasse: Sitzmöglichkeit mit Blick Richtung Meer - Vollausgestattete Küche: Kaffeemaschine mit Filter - Fußbodenheizung - kostenloser Internetanschluss (WLAN) - Waschmaschine im Abstellraum Highlight - Gemeinschaftssauna: Sky-Sauna 5.OG (mit dazugehöriger Rooftop-Terrasse) Erholen Sie sich bei gesunder Seeluft an der Ostseeküste Rügens in Prora mit vielen Freizeitmöglichkeiten und in malerischer Natur. Das Appartement "Ostseebrise" befindet sich im Erdgeschoss des Hauses Arkona und bietet Platz für bis zu vier Personen. Auf der großen Terrasse mit Blick auf die Dünenlandschaft können Sie das Rauschen des nur 100 m entfernten Meeres und eine frische Ostseebrise genießen. Diese Ferienwohnung besteht aus einem großzügigen Raum mit einem Wohn- und Essbereich und einer offenen Küche, zwei separaten Schlafzimmern und einem Bad. Im Wohnzimmer finden Sie eine Auswahl an Gesellschaftsspielen, eine bunte Mischung an Büchern sowie einen DVD-Player und DVDs - perfekt für verregnete Tage oder entspannte Abende. Sanfte Dünenlandschaften entlang des feinsandigen, kilometerlangen Strandes umgeben das Haus Arkona. Ein Highlight im Haus Arkona ist die Sky-Sauna im 5. Obergeschoss mit einer ON-TOP Terrasse, die einen Ausblick auf die Ostsee, dichte Buchenwälder und romantische Heideflächen bietet. Auf dieser Gemeinschafts-Dachterrasse können Sie die Sonnenstrahlen genießen oder sich einfach nur ausruhen und ein Buch lesen. Naturreservate, wie die berühmten Kreidefelsen und die Feuersteinfelder, laden zu ausgedehnten Wanderungen ein. Einen Besuch wert ist auf jeden Fall Binz. Das größte Seebad Rügens verzaubert mit seiner Bäderarchitektur und seinem idyllischen Charme. Anmerkungen - Haustiere sind nicht erlaubt. - Rauchen ist nicht gestattet. Zusätzliche Dienstleistungen, die vor Ort verfügbar sind und bei Bedarf beim Check-In oder später gebucht werden können: 1. Extra Bettwäsche 2. Extra Handtücher 3. Bettwäsche und Handtücher Wechsel während Ihres Aufenthaltes 4. Kinder-Hochstuhl 5. Kinder-Reisebett 6. Strandtücher 7. Zwischenreinigung Bei Bedarf von größeren Mengen bitten wir bei Ihrer Buchung um eine entsprechende Information. - Garderobenschrank

Raumaufteilung

  • Schlafzimmer, 2 Personen
    • Kleiderschrank
    • Doppelbett
  • Schlafzimmer, 2 Personen
    • Kleiderschrank
    • Etagenbett

Unsere Gästebewertungen Externe Bewertungen

Keine eigene Gästebewertungen
4,9
23 externe Bewertungen
5,0
März 2026
4,5
Februar 2026
5,0
Januar 2026
Allgemein:
Die Wohnung ist sehr gemütlich eingerichtet. Es ist alles da, was man braucht. Tolle Lage mit dem direkten Strandzugang. Alles top!
4,7
Allgemein:
Ein wie immer entspannender Urlaub an der Ostsee auch dank dieser sehr modernen, sauberen Ferienwohnung und geschichtsträchtiger Umgebung.
5,0
Allgemein:
Die Wohnung ist sehr gemütlich eingerichtet. Es ist alles da, was man im Urlaub braucht. Toller Service vor Ort und sehr freundliche Mitarbeiter. Die Lage in direkter Strandnähe ist einfach super.
5,0
5,0
Allgemein:
Tolle Wohnung!! Alles was man für einen erholsamen Urlaub braucht, war vorhanden. Wir kommen auf jeden Fall wieder.
5,0
5,0
Allgemein:
Mit der Ausstattung und dem Ambiente der Fewo waren wir sehr zufrieden. Ein Ort zum Wohlfühlen. Dadurch, dass es im Umfeld viele Möglichkeiten der Freizeitgestaltung gibt, kommt auch bei kühlerem Wetter keine Langeweile auf. ... Danke! weiterlesen
5,0
Allgemein:
Sehr schön und liebevoll ausgestattete Ferienwohnung. Alles da, was man für einen tollen Urlaub braucht.
5,0
5,0
Allgemein:
Tolle Ferienwohnung, es hat an nichts gefehlt.
5,0
Allgemein:
Die Wohnung ist geräumig, modern und sehr liebevoll eingerichtet. Die Lage zum Strand ist perfekt.
5,0
5,0
Allgemein:
Alles Top gerne wieder Danke
5,0
Allgemein:
Seit vielen Jahren machen wir auf der schönen Insel Rügen Urlaub. Viele unterschiedliche Unterkünfte haben wir kennengelernt. Die mit Abstand beste ist die Ferienwohnung "Ostseebrise". All unsere Erwartungen wurden erfüllt: 80m bis zum Strand, mehr als das übliche Inventar in der Wohnung, prima ... Betten, große Terrasse und, und, und... Zu dieser Jahreszeit sind zwar viele Restaurants geschlossen (das wussten wir), aber überraschenderweise hatte das Cafe "Kaffeebrise" im Nachbarhaus doch geöffnet. Wir empfehlen die Wohnung sehr, sehr gerne weiter. Wir kommen mit Sicherheit bald wieder. weiterlesen
4,7
5,0
5,0
4,7
Allgemein:
Eine Klimaanlage würde schön gewesen da es leider sehr warm war.
5,0
5,0
5,0

Gesamte Ausstattung

  • Aktivitäten

    • Radfahren
  • Bad

    • Anzahl der Duschen
      1
    • Dusche
    • Haartrockner
    • Waschbecken
    • WC
  • Basic

    • Baujahr
      2019
    • Kinder willkommen
    • Nichtraucher
    • Quadratmeter
      72 m²
    • Zimmer
      3
  • Draußen

    • Anzahl der Parkplätze
      1
    • Aufladen von Elektroautos
    • Gartenmöbel
    • Privater P-Platz
    • Sonnenschirm
    • Terrasse
  • Entfernung

    • Entfernung Einkauf
      800 m
    • MeerEntfernung
      100 m
    • RestaurantEntfernung
      20 m
    • Strandentfernung
      100 m
  • Küche

    • Backofen
    • Gefrierfach
    • Kaffeemaschine
    • Kochutensilien
    • Küche
    • Kühlschrank
    • Microwelle
    • Rührgerät
    • Spülmaschine
    • Teller
    • Toaster
    • Wasserkocher
  • Unterkunft

    • Anzahl der Fernseher
      2
    • Aufzug
    • Betten
      4
    • Bücher
    • Bügelbrett
    • Bügeleisen
    • CD Gerät
    • Doppelbetten
      1
    • DVD
    • DVDs
    • Esstisch
    • Etagenbett
      1
    • Fliegengitter
    • Fußbodenheizung
    • Ganzkörperspiegel
    • Heizung
    • Herd
    • Internet
    • Jalousie
    • Kleiderschrank
    • Lounge-Sitzgelegenheiten
    • Möglichkeit zur Raumverdunkelung
    • Radio
    • Rauchmelder
    • Sauna
    • Schlafsofas
      1
    • Sessel
    • Sitzgelegenheiten im Esszimmer
    • Sofa
    • Spiegel
    • Spiele
    • Staubsauger
    • TV
    • Warmes Wasser
    • Waschmaschine
    • WLAN
    • Wohnzimmer
    • Wäscheständer

Kurzurlaub

Es besteht eine begrenzte Möglichkeit das ganze Jahr einen Kurzurlaub zu machen, typischerweise ausserhalb der Hochsaison.

Prices and calendar

Kalender

Ankunft
Nächster Monat
   Verfügbarkeit am ausgewählten Datum prüfen
Frei
Nicht frei
   Ankunft möglich
Dauer
Personen

Preis

Zeitraum
Ankunft
Abreise
Dauer
1 Woche
Personen
Keine Personen ausgewählt

Bitte beachten

Ankunftszeit wurde nicht ausgewählt.
Es wurden keine Personen ausgewählt.
Vertrags- und Mietbedingungen