Komfortable Ferienwohnung mit direktem Strandzugang

Südstrand - 18609 - Binz (Ostseebad) Ot Prora

Objekt Nr.: 552-220919
Moderne Ferienwohnung in Prora mit Strandzugang, Balkon, Terrasse und WLAN, ideal für entspannte Tage an der Ostsee.
  • Schlafzimmer 2
  • Badezimmer 1
  • Wohnfläche 100 m²
  • Haustiere 1
  • Kurzurlaub möglich Ja
  • Einkaufen 800 m
  • Geschirrspüler Ja
  • Nichtraucher Ja

Beschreibung

FeWo Steife Brise: FeWo 100 m² – 2 Schlafzimmer, Strandzugang, Balkon & Terrasse

Im Haus Wittow erwartet dich eine helle Ferienwohnung nur 50 m vom Meer entfernt. Zwei Schlafzimmer – eines zur See, eines zum Land – schenken Ruhe, während der Wohnbereich zur Terrasse über den Dünen führt. WLAN, Streaming, warme Böden und eine voll ausgestattete Küche begleiten deinen Aufenthalt. Eine eigene Waschmaschine sorgt für Komfort, und der Weg zum Strand beginnt direkt vor der Tür.

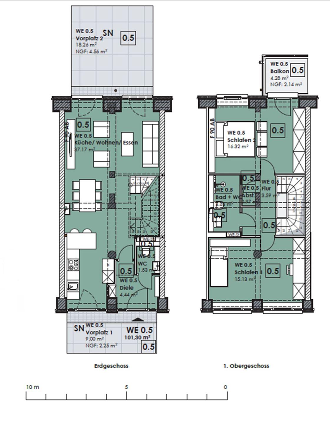
Haus Wittow, 1 Parkplatz Die Räume im Einzelnen - 1. OG: - Schlafzimmer 1 (Seeseite): 1 Doppelbett (180x200), Kleiderschrank, TV, Zugang zum Balkon - Balkon mit Sitzmöglichkeit, Blick Richtung Meer - Schlafzimmer 2 (Landseite): 1 Doppelbett (180x200), Kleiderschrank, TV - Badezimmer: Regendusche, WC, Waschbecken, Haartrockner Die Räume im Einzelnen - EG: - Wohn/Essbereich: Sofa, Sitzbereich, Essbereich, Flach-TV,( Achtung: Internetfernseher, nur mit der Zattoo App möglich, kein Kabel -TV-Empfang !!!!), Zugang zur Terrasse - Terrasse: Sitzmöglichkeit mit Blick auf Dünenlandschaft - Vollausgestattete Küche, Kaffeemaschine mit Filter, Mikrowelle - Gäste WC - Internet Glasfaser + WLAN inkl. - Netflix und Amazon Prime Zugang steht frei zur Verfügung - Fußbodenheizung - Waschmaschine in der Wohnung - direkter Strandzugang Kilometer langer Sandstrand mit unbegrenztem Blick über Wellen bis zum Horizont, feinem weißen Sand unter nackten Fußsohlen, viel Sonnenschein am Tag und glitzernden Sternen am Nachthimmel. Unsere Gäste schätzen - egal zu welcher Jahreszeit – das Farbenspiel der Natur, verschiedene Pfade für lange Spaziergänge mit Hunden, kulturelle Angebote, diverse Möglichkeiten für die Freizeitgestaltung bei jedem Wetter, Einkaufsmöglichkeiten für den täglichen Bedarf und gute heimische und internationale Küche. PRORA ist ein Ortsteil von Binz – Deutschlands schönstem Ostseebad. Unsere Ferienwohnung befindet sich im Block III in dem ehemaligen KdF- Seebad Rügen. Die Sanierung begann 2016 und wurde 2023 mit der Fertigstellung der Außenanlagen mit Pkw-Stellplätzen größtenteils mit E-Ladesäulen und Fahrradabstellräumen beendet. Unsere Gäste erhalten bei Anreise die Schlüssel und alle wichtigen Informationen zur Ferienwohnung vor Ort durch das Team von PRORA.COM. Anmerkungen - Haustiere sind erlaubt. - Rauchen ist nicht gestattet. Zusätzliche Dienstleistungen, die vor Ort verfügbar sind und bei Bedarf beim Check-In oder später gebucht werden können: 1. Extra Bettwäsche 2. Extra Handtücher 3. Bettwäsche und Handtücher Wechsel während Ihres Aufenthaltes 4. Kinder-Hochstuhl 5. Kinder-Reisebett 6. Strandtücher 7. Zwischenreinigung In größeren Mengen bitten wir vorab, um eine entsprechende Information.

Raumaufteilung

  • Schlafzimmer, 2 Personen
    • Kleiderschrank
    • Doppelbett
  • Schlafzimmer, 2 Personen
    • Kleiderschrank
    • Doppelbett

Unsere Gästebewertungen Externe Bewertungen

Keine eigene Gästebewertungen
4,9
34 externe Bewertungen
5,0
März 2026
Allgemein:
Liebes Prora.com Team vielen Dank für die schöne Zeit in der Ferienwohnung „Steife Brise“ in Groda in der Binsenbucht auf Rügen. Wir haben unseren Aufenthalt sehr genossen. Die Wohnung war sehr sauber und gepflegt, sodass wir uns von Anfang an wohlgefühlt haben. Besonders gefallen hat uns die ruhige Lage und die wunderschöne Natur in der Umgebung. Hier kann man wirklich abschalten und die Landschaft der Insel genießen. Der Weg zum Strand ist sehr angenehm und lädt zu regelmäßigen Spaziergängen ein. Besonders empfehlenswert ist die Erdgeschosswohnung, da man ostseeseitig praktisch direkt vor der Tür mit einem Spaziergang beginnen kann. Wir bedanken uns für den angenehmen Aufenthalt und freuen uns, dass auch viele weitere Besucher diesen schönen Ort entdecken können.
5,0
Allgemein:
Eine sehr geschmackvolle und hochwertige Wohnung. Wir waren begeistert und sagen Danke für ein paar unvergessliche Urlaubstage. Wir kommen wieder! Vielen Dank auch an den Vermieter. Hervorzuheben ist auch der herzliche Empfang bei Prora.Com. Die ganze Über und Abgabe der Schlüssel funktionierte ... einwandfrei. weiterlesen
5,0
Allgemein:
Wie immer waren wir sehr zufrieden, mit allem. Wir kommen wieder.
4,3
Allgemein:
FeWo Seemannsgarn in PRORA ... -positiv: Bügeleisen zur Nutzung, Sauna sehr geräumig, Badewanne großzügig, Zugang Strand super praktisch mit Hunden, Parkplatz vor der Tür -am Eingang sind nur Vorhänge vorhanden, dadurch ist es sehr dunkel im Raum, denn bei geöffneten Vorhängen kann jeder Spaziergänger bis auf den Esstisch schauen ->Rollos sind defintiv hier angerachter -Seifenspender in einem Bad defekt (bei Sauna) -das Tiefkühlfach war verschmutzt -ein Fach in der Kühlschranktür war defekt -die Dusche ist stark verschmutzt / stark verschimmelt, der obere Duschkopf war so stark verkalkt, dass kein Wasser raus kam (wurde durch uns behoben) -der Tisch war nicht abgewischt und voller Sand (wurde durch uns behoben) -die Küchenfronten waren verschmutzt, die Griffe verklebt (wurde durch uns behoben) Nach einer Endreinigung verlange ich mehr Sauberkeit und allgemein eine bessere Instandsetzung der Wohnung. Auch wenn es vielleicht nur Kleinigkeiten sind-preislich liegt die Wohnung im gehobenen Segment und das kann alles einfach abgeschafft werden. weiterlesen
5,0
Allgemein:
Wir waren wie immer begeistert und hatten einen wunderschönen Urlaub. Die Sauna ist bei jedem Wetter empfehlenswert und absolut erholsam. Die Wohnung ist sehr schön eingerichtet und alles ist sauber und neu. Wir werden auf jeden Fall wiederkommen.
5,0
Allgemein:
Wir haben uns wieder sehr wohl gefühlt. Die Wohnung war sehr komfortabel eingerichtet es hat an nichts gefehlt. Die Lage ist auch top, man fällt von der Terrasse und ist in ein paar Schritten am Strand. Wir werden auf jeden Fall Wiederholungstäter wie die letzten 3mal schon. Prora ist immer eine ... Reise wert. Vielen Dank für den tollen Service, weiter so. ? weiterlesen
4,0
5,0
Allgemein:
Hallo, ... sehr schön ausgestattete Wohnung. Sehr freundliche Mitarbeiter. sehr gern wieder. Mag nicht zu viel loben, sonst möchten viele Urlauber diese Wohnung. War eine wirklich tolle Unterkunft!!!!!!! weiterlesen
5,0
Allgemein:
Sehr schöne Ferienwohnung / tolle Einrichtung / alles top. Wir kommen gerne wieder.
5,0
Allgemein:
Danke für den tollen Urlaub. Der Urlaub fing schon im Servicebüro an, sehr nettes freundliches und kompetentes Personal. Die Wohnung selbst lässt keine Wünsche offen, alles sehr sauber und gepflegt. Die Einrichtung ist sehr schön und komfortabel. Einzig die Kopfkissen sind sehr hart und wirklich ... gewöhnungsbedürftig. Die Lage ist einfach perfekt, sehr kurze Wege zum Hundestrand/Strand. Rundum ein gelungener Urlaub für uns mit Hund. Wir kommen ganz sicher wieder nach Prora und in diese Wohnung. Dankeschön und bis hoffentlich bald mal wieder. weiterlesen
4,7
Allgemein:
Wir waren begeistert von der Wohnung und kommen nächstes Jahr wieder. Das einzige was nicht so schön war sind die ganzen Spinnweben unter den Stühlen und in den Ecken.
4,7
Allgemein:
Tolle Ferienwohnung, hoher Standard, Preis für eine Woche etwas hoch, aber es war ja Haupsaison, nur die Terrassenmöbel würden wir beanstanden, die haben bei diesem Niveau Ihre Zeit hinter sich. Natürlich zu erwähnen, der kurze Weg zum Strand.
4,7
Allgemein:
Die Unterkunft war wunderschön. Sie ist hoch- ... wertig ausgestattet, gemütlich, sehr sauber und mit viel Liebe zum Detail eingerichtet. Besonders die Leinwände mit den Figuren aus der Muppets Show haben uns gefallen. Sie verleihen der Wohnung ihren ganz eigenen Charme. Unser einziger Verbesserungs- vorschlag wäre, dass der Eigentümer öfter nachschaut, ob alles vollständig ist bzw. alle Geräte funktionsfähig sind. Wir empfehlen die Unterkunft auf jeden Fall weiter. weiterlesen
5,0
5,0
Allgemein:
Wir haben 2 tolle Wochen mit fantastischen Wetter erlebt . Die Wohnung hat genau unseren Geschmack getroffen. ... Es war alles da was man braucht . Vielleicht sollte man mal über Fliegen Gitter vor den Fenstern nachdenken . Allerdings konnte das Erscheinungsbild der Terasse in keinster Weise mit der hochwertigen Einrichtung der Wohnung mithalten . Da hätte man sich etwas bequemeres vorgestellt . Werden aber auf jeden Fall nochmals wiederkommen. weiterlesen
4,7
Allgemein:
Eine tolle, perfekt ausgestattete Wohnung die keine Wünsche offen lässt. Abgerundet durch eine super nette, kompetente Dame vor Ort im Büro von Prora.com. Wir kommen gerne wieder.
5,0
Allgemein:
Perfekte Ferienwohnung. Hier stimmt einfach alles.
4,7
5,0
5,0
Allgemein:
Sehr schöne Ferienwohnung in guter Ostseelage. Personal vor Ort einfach super. ... Leider funktioniert das Fernsehen über die "Zatto App" nur selten. Diesen Mangel sollte man wirklich abstellen ist ärgerlich. weiterlesen
4,0
5,0
Allgemein:
Weihnachten in Prora, kurz entschlossen und die Wohnung Seemannsgarn gebucht. Wir wurden herzlich vom Prora Team begrüßt. An dieser Stelle nochmals ein großes Dankeschön, dass ihr immer für uns da seid und mit Rat und Tat flink zur Seite steht. Eine sehr geräumige Wohnung mit allem Komfort sowie ... einer schönen Sauna. Uns hat es an nichts gefehlt, wir kommen auf jeden Fall wieder. weiterlesen
4,7
Allgemein:
Die Wlan Anbindung ist sehr schlecht, vorallem wenn der Fernseher (Zattoo) darüber genutzt wird. Die Küchenausstattung könnte, um bestimmte Dinge, wie Eierbecher, Schnapsgläser, Kaffeautomaten erweitert werden. Ansonsten war es ein interessanter schöner Herbsturlaub.
5,0
5,0
5,0
Allgemein:
Eine Klimaanlage hätte die Unterkunft perfekt gemacht. Vielen Dank nochmal an das Team. Hat alles sehr gut geklappt. Wenn wir wiederkommen, dann bestimmt noch mal in diese Wohnung „Hühnergott“. Es hat uns sehr gut bei Ihnen gefallen. Für uns auf Rügen die erste Adresse.
5,0
Allgemein:
Team Prora.com sehr empfehlenswert, nett, zuvorkommend, helfend und super freundlich.
5,0
5,0
5,0
Allgemein:
Sehr gute Kommunikation mit Prora.com. Egal ob Telefon, Email oder direkt vor Ort.
5,0
5,0
Allgemein:
1 Rolle Toilettenpapier bei Ankunft für 2 WC‘‘s ist indiskutable, Abwaschlappen wurde auf eine minimale Grüße zugeschnitten
5,0
5,0

Gesamte Ausstattung

  • Aktivitäten

    • Radfahren
  • Bad

    • Gäste-WCs
      1
  • Basic

    • Anzahl der Stockwerke
      2
    • Kinder willkommen
    • Nichtraucher
    • Quadratmeter
      100 m²
    • Zimmer
      3
  • Draußen

    • Gartenmöbel
    • Privater P-Platz
    • Terrasse
  • Entfernung

    • Entfernung Einkauf
      800 m
    • RestaurantEntfernung
      500 m
    • Strandentfernung
      50 m
  • Küche

    • Backofen
    • Gefrierfach
    • Kaffeemaschine
    • Küche
    • Kühlschrank
    • Microwelle
    • Spülmaschine
    • Toaster
    • Wasserkocher
  • Unterkunft

    • Balkon
    • Betten
      4
    • Doppelbetten
      2
    • Esstisch
    • Fliegengitter
    • Fußbodenheizung
    • Heizung
    • Kleiderschrank
    • Rauchmelder
    • Staubsauger
    • TV
    • Warmes Wasser
    • Waschmaschine
    • WLAN
    • Wäscheständer

Kurzurlaub

Es besteht eine begrenzte Möglichkeit das ganze Jahr einen Kurzurlaub zu machen, typischerweise ausserhalb der Hochsaison.

Prices and calendar

Kalender

Ankunft
Nächster Monat
   Verfügbarkeit am ausgewählten Datum prüfen
Frei
Nicht frei
   Ankunft möglich
Dauer
Personen

Preis

Zeitraum
Ankunft
Abreise
Dauer
1 Woche
Personen
Keine Personen ausgewählt

Bitte beachten

Ankunftszeit wurde nicht ausgewählt.
Es wurden keine Personen ausgewählt.
Vertrags- und Mietbedingungen