Ferienwohnung nahe Strand und Radwege in Koserow
Förster-Schrödter-Straße - 17459 - Koserow
Objekt Nr.: 530-272503
4 Personen
Moderne Ferienwohnung in Koserow nahe Strand und Radwegen, ideal für Familien und Erholung am Meer.
-
Schlafzimmer 2
-
Badezimmer 1
-
Wohnfläche 45 m²
-
Haustiere 1
-
Kurzurlaub möglich Ja
-
Entfernung Wasser 500 m
-
Einkaufen 500 m
-
Internet Ja
-
Satelliten-/Kabel TV Ja
-
Eingezäunter Bereich Ja
-
Geschirrspüler Ja
-
Nichtraucher Ja
Beschreibung
Koserow Förster-Schrödter-Str. FeWo 17, WE 17 FSS
Wir heißen Sie in unserer Ferienanlage auf Usedom im Ostseebad Koserow recht herzlich Willkommen! Erholung und Entspannung finden Sie in unseren liebevoll und modern eingerichteten Ferienwohnungen. Das Ostseebad Koserow bietet viele Aktivitäten, die alle zu Fuß erreichbar sind. Zum Strand und zu den bekannten historischen Koserower Salzhütten, aus dem 19 Jahrhundert, sind es nur ca. 8 Gehminuten. Erleben Sie Usedom im schönen Ostseebad Koserow.
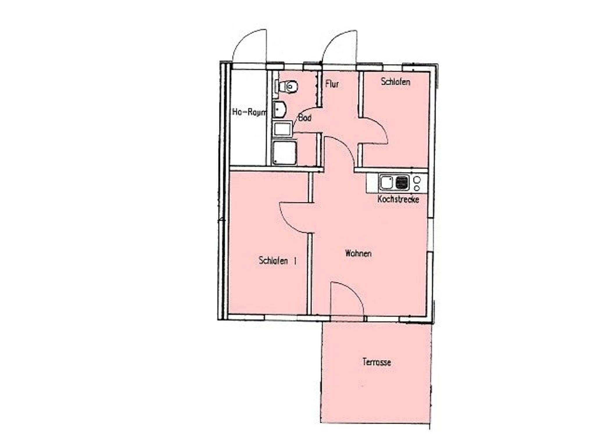
3-Zimmer Ferienwohnung im Erdgeschoss einer liebevoll angelegten Ferienanlage. Die Ferienwohnung ist im Wohnbereich ausgestattet mit einer gemütlichen Couch und einer offenen Küche mit Essbereich.
~
ZIMMER:
1 Schlafzimmer mit Doppelbett (ca. 1,80 m x 2,00 m) und Schrank
1 Gästezimmer mit Doppelstockbett (je ca. 0,90 m x 2,00 m), Kinderreisebett
1 Wohnraum mit Küchenzeile
1 Terrasse mit Gartenmöbeln
1 Duschbad mit WC
1 PKW- Stellplatz- Nr. 17
1 Abstellschuppen inkl. 2 Fahrrädern 26
~
BELEGUNG:
4 Personen
~
AUSSTATTUNG:
Gut ausgestattete Küche mit Wasserkocher, Geschirr, Besteck, Gläser, Mikrowelle, Kaffeemaschine, Toaster, Kühlschrank und einem Geschirrspüler.
Wohnraum mit Panasonic Flachbild-TV mit ca. 80cm Bilddiagonale, Internet-WLAN
~
HAUSTIERE:
Maximal 1 kleiner Hund bis zu einer Größe von ca. 30 cm und gegen eine Gebühr von 30,00 € zugelassen.
Innerhalb der Anlage besteht Leinenpflicht.
~
ACHTUNG:
- Es stehen zwei Fahrräder zur kostenlosen Nutzung zur Verfügung. Die Nutzung der Fahrräder erfolgt auf eigene Gefahr.
- Die Gäste können kostenfrei WLAN nutzen.
Hier handelt es sich um freiwillige Zusatzleistungen, also keine im reiserechtlichen Sinne zugesicherte Eigenschaft der Ferienwohnung. Mietminderung kann demnach bei Ausfall nicht geltend gemacht werden.
~
SONSTIGES:
- Nichtraucherwohnung
- Bettwäsche kann vor Ort für 15,-€ und Handtücher für 12,-€ pro Person ausgeliehen werden (Angaben ohne Gewähr bzgl. Preiserhöhungen)
- Geschirrhandtücher sind selbst mitzubringen
~
Zusätzliche Preise
+ Kaution 50,-€ vor Ort
+ Kurtaxe vor Ort
+ 30,-€ Hundegebühr bei Bedarf
+ Endreinigung und Buchungsgebühr wird automatisch im ausgewiesenen Gesamtpreis mit einberechnet
~
Schlüsselübergabe:
Rezeption - Oberförsterweg 12, Zempin
Anreise von 15.00 bis 18.00 Uhr und Abreise zu 10:00 Uhr
Die vor Ort zu zahlenden Leistungen sind direkt bei Anreise/Schlüsselübergabe zu begleichen.
Es sind nur Zahlungen mit Bargeld möglich (keine Kartenzahlung).
~
ZIMMER:
1 Schlafzimmer mit Doppelbett (ca. 1,80 m x 2,00 m) und Schrank
1 Gästezimmer mit Doppelstockbett (je ca. 0,90 m x 2,00 m), Kinderreisebett
1 Wohnraum mit Küchenzeile
1 Terrasse mit Gartenmöbeln
1 Duschbad mit WC
1 PKW- Stellplatz- Nr. 17
1 Abstellschuppen inkl. 2 Fahrrädern 26
~
BELEGUNG:
4 Personen
~
AUSSTATTUNG:
Gut ausgestattete Küche mit Wasserkocher, Geschirr, Besteck, Gläser, Mikrowelle, Kaffeemaschine, Toaster, Kühlschrank und einem Geschirrspüler.
Wohnraum mit Panasonic Flachbild-TV mit ca. 80cm Bilddiagonale, Internet-WLAN
~
HAUSTIERE:
Maximal 1 kleiner Hund bis zu einer Größe von ca. 30 cm und gegen eine Gebühr von 30,00 € zugelassen.
Innerhalb der Anlage besteht Leinenpflicht.
~
ACHTUNG:
- Es stehen zwei Fahrräder zur kostenlosen Nutzung zur Verfügung. Die Nutzung der Fahrräder erfolgt auf eigene Gefahr.
- Die Gäste können kostenfrei WLAN nutzen.
Hier handelt es sich um freiwillige Zusatzleistungen, also keine im reiserechtlichen Sinne zugesicherte Eigenschaft der Ferienwohnung. Mietminderung kann demnach bei Ausfall nicht geltend gemacht werden.
~
SONSTIGES:
- Nichtraucherwohnung
- Bettwäsche kann vor Ort für 15,-€ und Handtücher für 12,-€ pro Person ausgeliehen werden (Angaben ohne Gewähr bzgl. Preiserhöhungen)
- Geschirrhandtücher sind selbst mitzubringen
~
Zusätzliche Preise
+ Kaution 50,-€ vor Ort
+ Kurtaxe vor Ort
+ 30,-€ Hundegebühr bei Bedarf
+ Endreinigung und Buchungsgebühr wird automatisch im ausgewiesenen Gesamtpreis mit einberechnet
~
Schlüsselübergabe:
Rezeption - Oberförsterweg 12, Zempin
Anreise von 15.00 bis 18.00 Uhr und Abreise zu 10:00 Uhr
Die vor Ort zu zahlenden Leistungen sind direkt bei Anreise/Schlüsselübergabe zu begleichen.
Es sind nur Zahlungen mit Bargeld möglich (keine Kartenzahlung).
Vor Ort
Kaution 50,-Euro, ortsübliche Kurtaxe, auf Wunsch kann Bettwäsche vor Ort für 15,-Euro p.P. und Handtücher für 12,-Euro ausgeliehen werden
Kaution 50,-Euro, ortsübliche Kurtaxe, auf Wunsch kann Bettwäsche vor Ort für 15,-Euro p.P. und Handtücher für 12,-Euro ausgeliehen werden
Unsere Gästebewertungen Externe Bewertungen
Gesamte Ausstattung
-
Aktivität einrichtungen
-
Radfahren
-
-
Entfernungen
-
Zum (Kur-)Park/Wald500 m
-
Zum Bahnhof1 km
-
Zum Bäcker500 m
-
Zum Geldautomaten/Bank500 m
-
Zum Radweg500 m
-
Zum Strand500 m
-
Zum Supermarkt500 m
-
Zum Wanderweg500 m
-
Zum Zentrum500 m
-
Zur Autobahn39 km
-
Zur Badestelle/Gewässer500 m
-
Zur Bushaltestelle500 m
-
Zur Tourist-Information500 m
-
-
Grundeinrichtungen
-
Baujahr2006
-
Größe45 m²
-
-
Kinder einrichtungen
-
Familienfreundlich
-
-
Serviceeinrichtungen
-
Bad/WC
-
Doppelbett
-
Dusche
-
Dusche/WC
-
Etagenbett
-
Gefriermöglichkeit
-
Haustiere erlaubt oder auf Anfrage
-
Heizung
-
Hochstuhl
-
Haartrockner
-
Internet - WLAN
-
Kabel / Sat
-
Kaffeemaschine
-
Kissen
-
Küche (offen)
-
Kühlschrank
-
Mehrere Schlafzimmer
-
Mikrowelle
-
Nichtraucher
-
Rauchmelder
-
Reise-/Kinderbett
-
Schlafsofa
-
Seife
-
Spülmaschine
-
Terrasse
-
Tiere auf Anfrage
-
Toaster
-
Toilettenpapier
-
TV
-
TV - Flachbild
-
Wasserkocher
-
-
Umliegende einrichtungen
-
Fahrradunterstellmöglichkeit
-
Parkplatz
-
Umzäuntes Grundstrück
-
-
Unterkünfte
-
Internet im öff. Bereich
-
Nichtraucherhaus
-
Radfreundlich
-
Wanderfreundlich
-
Kurzurlaub
Es besteht eine begrenzte Möglichkeit das ganze Jahr einen Kurzurlaub zu machen, typischerweise ausserhalb der Hochsaison.
Prices and calendar
Kalender
Dauer
Preis
Zeitraum
- Ankunft
- Abreise
- Dauer
- 1 Woche
Personen
Bis zu 4 Personen
Bitte beachten
Ankunftszeit wurde nicht ausgewählt.